なんとカーテン・照明・エアコン付き!今なら間に合う!3月入居可能なミハマホームの新築物件を8軒一気にご紹介【ひらつー不動産】
あっという間に2015年に入ってから1ヶ月以上が経ちました!!戸建てをお考えの方でそろそろ新生活に向けてお家探しを急いでやらないと・・・という方に朗報です
今回はミハマホーム株式会社さんから『今なら間に合う!3月入居可能物件』を
どどんっ!!と8軒ご紹介します
こんなイベントもやってますよ~(*・ω・)ノ

では、じゃんじゃん紹介していきまーすっ
今回はミハマホーム株式会社さんから『今なら間に合う!3月入居可能物件』を
どどんっ!!と8軒ご紹介します
カーテン・照明・エアコン付きってめちゃいいじゃないですか~
価格は、現地でスタッフさんにお問い合わせください!!
こんなイベントもやってますよ~(*・ω・)ノ
今から紹介する中から
「ヴィーレくずは」「オリティア樟葉」「シエルテくずは」で開催!!
「ヴィーレくずは」「オリティア樟葉」「シエルテくずは」で開催!!
毎週土・日・祝10:00~18:00
DX妖怪ウォッチ零式や特大オラフぬいぐるみが当たる
当てくじ抽選会
「ヴィーレくずは」「オリティア樟葉」「シエルテくずは」の詳しい場所は記事内でチェックしてくださいねでは、じゃんじゃん紹介していきまーすっ
①プラリア枚方中宮3号地
土地・建物セット価格
2,956万円(税込)

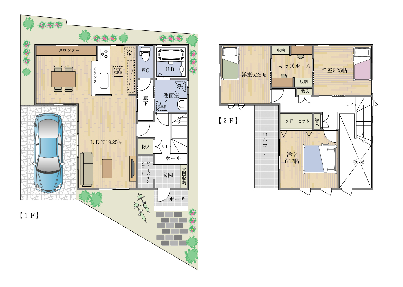
間取り↓

地図ではここ↓
枚方市中宮東之町37ー1
★便利な玄関収納でベビーカーやゴルフバッグをラクラクしまうことができます
★キッチンから裏庭に出られ、家事効率が上がります!!
★2階には南向きの明るいワイドバルコニーがあります
・・・プラリア中宮、他の物件のお部屋はこんな感じ




詳しくはコチラをご覧ください!!
プラリア中宮のひらつー記事
ミハマホーム プラリア中宮HP
②ヴィーレくずは7号地
土地・建物セット価格
2,886万円(税込)

間取り↓


地図ではここ↓
枚方市招提南3丁目3

リビング横に畳コーナーがあるので、夏はごろ~んとお昼寝・冬はこたつでほっこりできます。

オリティア樟葉のひらつー記事① ②
ミハマホーム オリティア樟葉のHP
⑦シエルテくずは 22号地
(杉造りの家)
土地・建物セット価格
3,006万円(税込)

撮影時は外構工事中でしたが、現在は完成しています。
間取り↓

地図ではここ↓
枚方市招提元町1ー28

明るいリビング。

リビング横にはキッズスペースがあります!
壁はなんとホワイトボードになっていて、落書きができちゃいます

2階の洋室は子ども達の成長に合わせて仕切ることも可能
詳しくはコチラをご覧ください!!
シエルテくずはのひらつー記事
ミハマホーム シエルテくずはHP
シエルテくずはからもう1軒!!
⑧シエルテくずは23号地
土地・建物セット価格
3,176万円(税込)

撮影時は外構工事中でしたが、現在は完成しています。
間取り↓


21帖の広々リビング!!


2階の真ん中には絨毯のキッズリビングがあり、こんな感じでごろ寝もできます

ひろーいロフトもあります!!
一気にどどんっ!!と8軒、ご紹介しましたがいかがでしたかー??
ひらつーで紹介した物件もあるので、そちらは もう一度記事をじっくり見てみて下さいねー
▼営業担当者さんからのコメント
この物件についてのお問い合わせは御浜住宅株式会社/ミハマホーム株式会社へ!

072-868-0036
営業時間 9:00〜18:00 定休日/水曜日
「ひらつーで3月入居可能物件の記事を見た」とお伝えいただくと話が早いと思います!
(※すでに販売が終了している場合もありますのでご了承ください)
◆各分譲地の公式サイト
「プラリア枚方中宮」
「ヴィーレくずは」
「プラリア枚方南」
「オリティア樟葉」
「シエルテくずは」
----------
【ひらつーパートナーズ】【ひらつー不動産】についてのお問い合わせはこちらから!
土地・建物セット価格
2,956万円(税込)

間取り↓

地図ではここ↓
枚方市中宮東之町37ー1
★便利な玄関収納でベビーカーやゴルフバッグをラクラクしまうことができます
★キッチンから裏庭に出られ、家事効率が上がります!!
★2階には南向きの明るいワイドバルコニーがあります
・・・プラリア中宮、他の物件のお部屋はこんな感じ




詳しくはコチラをご覧ください!!
②ヴィーレくずは7号地
土地・建物セット価格
2,886万円(税込)

間取り↓


地図ではここ↓
枚方市招提南3丁目3

リビング横に畳コーナーがあるので、夏はごろ~んとお昼寝・冬はこたつでほっこりできます。

ダイニングとキッチンの間にある飾り棚スペースがおしゃれ
白い壁にナチュラルテイストな柄が今流行りのDIY感がでています!

2階にはこんな可愛い壁紙がある洋室があります
詳しくはコチラをご覧ください!!
ヴィーレくずはのひらつー記事
ミハマホーム ヴィーレくずはHP
ヴィーレくずはからはもう1軒!!
③ヴィーレくずは8号地
土地・建物セット価格
3,014万円(税込)

間取り↓



広々としたリビング。

リビング横にはキッズスペースがあります

2階ホール部分にはこんなカウンターがあるので、読書やお勉強スペースにどうぞ!!
詳しくはコチラをご覧ください!!
ヴィーレくずはのひらつー記事
ミハマホーム ヴィーレくずはHP
④プラリア枚方南2号地
土地・建物セット価格
3,374万円(税込)

間取り↓

地図ではここ↓
枚方市茄子作3丁目37

玄関部分はたか~い吹き抜け!!入った瞬間おお~ってなること間違いなし

大きな窓があり、明るい印象のリビング。

2階キッズルームはまるで秘密基地!!
詳しくはコチラをご覧ください!!
プラリア枚方南のひらつー記事
ミハマホーム プラリア枚方南HP
⑤オリティア樟葉6期21号地
(太陽光発電搭載)

地図ではここ↓
枚方市西招提町1237-9
★ダイニング上部は吹き抜けになっているので、明るく開放的な気分で食事を楽しめます。まるでレストランみたい
★ウッドデッキがあるので、お友達をよんでバーベキューしたり子ども達の遊び場にもできます

詳しくはコチラをご覧ください!!
オリティア樟葉のひらつー記事① ②
ミハマホーム オリティア樟葉のHP
オリティア樟葉からはもう1軒!!
⑥オリティア樟葉6期22号地
(杉造りの家)

2階にはこんな可愛い壁紙がある洋室があります
詳しくはコチラをご覧ください!!
ヴィーレくずはからはもう1軒!!
③ヴィーレくずは8号地
土地・建物セット価格
3,014万円(税込)

間取り↓



広々としたリビング。

リビング横にはキッズスペースがあります

2階ホール部分にはこんなカウンターがあるので、読書やお勉強スペースにどうぞ!!
詳しくはコチラをご覧ください!!
④プラリア枚方南2号地
土地・建物セット価格
3,374万円(税込)

間取り↓

地図ではここ↓
枚方市茄子作3丁目37

玄関部分はたか~い吹き抜け!!入った瞬間おお~ってなること間違いなし

大きな窓があり、明るい印象のリビング。

2階キッズルームはまるで秘密基地!!
詳しくはコチラをご覧ください!!
⑤オリティア樟葉6期21号地
(太陽光発電搭載)
土地・建物セット価格
4,536万円(税込)

間取り↓4,536万円(税込)


地図ではここ↓
枚方市西招提町1237-9
★ダイニング上部は吹き抜けになっているので、明るく開放的な気分で食事を楽しめます。まるでレストランみたい
★ウッドデッキがあるので、お友達をよんでバーベキューしたり子ども達の遊び場にもできます

オリティア樟葉は45坪以上の敷地・道路6.8m以上・住戸間2m以上!!
見ての通り、かなーり広々しております
詳しくはコチラをご覧ください!!
オリティア樟葉からはもう1軒!!
⑥オリティア樟葉6期22号地
(杉造りの家)
土地・建物セット価格
4,485万円(税込)

間取り↓

★ガーデニングやバーベキューを楽しめる庭とテラスがあります
★リビング上部は吹き抜けになっており、2階にいる家族ともコミュニケーションをとることができます
・・・オリティア樟葉、他の物件のお部屋はこんな感じ




詳しくはコチラをご覧ください!!
4,485万円(税込)

間取り↓

★ガーデニングやバーベキューを楽しめる庭とテラスがあります
★リビング上部は吹き抜けになっており、2階にいる家族ともコミュニケーションをとることができます




詳しくはコチラをご覧ください!!
⑦シエルテくずは 22号地
(杉造りの家)
土地・建物セット価格
3,006万円(税込)

撮影時は外構工事中でしたが、現在は完成しています。
間取り↓

地図ではここ↓
枚方市招提元町1ー28

明るいリビング。

リビング横にはキッズスペースがあります!
壁はなんとホワイトボードになっていて、落書きができちゃいます

2階の洋室は子ども達の成長に合わせて仕切ることも可能
詳しくはコチラをご覧ください!!
シエルテくずはからもう1軒!!
⑧シエルテくずは23号地
土地・建物セット価格
3,176万円(税込)

撮影時は外構工事中でしたが、現在は完成しています。
間取り↓


21帖の広々リビング!!


2階の真ん中には絨毯のキッズリビングがあり、こんな感じでごろ寝もできます

ひろーいロフトもあります!!
詳しくはコチラをご覧ください!!
シエルテくずはのひらつー記事
一気にどどんっ!!と8軒、ご紹介しましたがいかがでしたかー??
ひらつーで紹介した物件もあるので、そちらは もう一度記事をじっくり見てみて下さいねー
▼営業担当者さんからのコメント
それぞれの物件の販売価格については、現地スタッフまでお問い合わせください!!
…ということは、そういうことですね!!
ぜひ、価格交渉してみてください(*゚∀゚)っ!!
この物件についてのお問い合わせは御浜住宅株式会社/ミハマホーム株式会社へ!
営業時間 9:00〜18:00 定休日/水曜日
「ひらつーで3月入居可能物件の記事を見た」とお伝えいただくと話が早いと思います!
(※すでに販売が終了している場合もありますのでご了承ください)
◆各分譲地の公式サイト
「プラリア枚方中宮」
「ヴィーレくずは」
「プラリア枚方南」
「オリティア樟葉」
「シエルテくずは」
----------
【ひらつーパートナーズ】【ひらつー不動産】についてのお問い合わせはこちらから!
カテゴリ : ひらつー不動産(分譲) ひらつー不動産(戸建て)
コメント投稿欄閉鎖のお知らせ









