どうも、花粉症がいよいよ本格化してまいりましたカトゥー@ひらつーです。

さて、今回ご紹介するのは築36年の一軒家のクセのありすぎるリノベーション!
手がけたのはひらつーに何度も登場してもらっている、桜丘にある
ちなみに皆さんは「築36年の家」と聞いてどんなイメージを思い浮かべるでしょうか?

時の流れを感じる外観…(リノベ前のBefore写真)

桜丘にある「フォワードBHL」の藤倉社長(左)と「優デザイン一級建築士事務所」の濱崎さん(右)
二組のプロがタッグを組んだ、驚きいっぱい “5層の家” リノベーションをさっそくご紹介していきましょうー!
(2層目/全5層)

玄関からのファーストビューがこちら。白い壁と柔らかい雰囲気のフローリングです。

右手には大容量シューズボックス。お出かけ前の身だしなみチェックもできる姿見がついています。
靴をぬいであがると…

な・ん・と!上階の天井までの高さの吹き抜けになっています。開放感抜群!
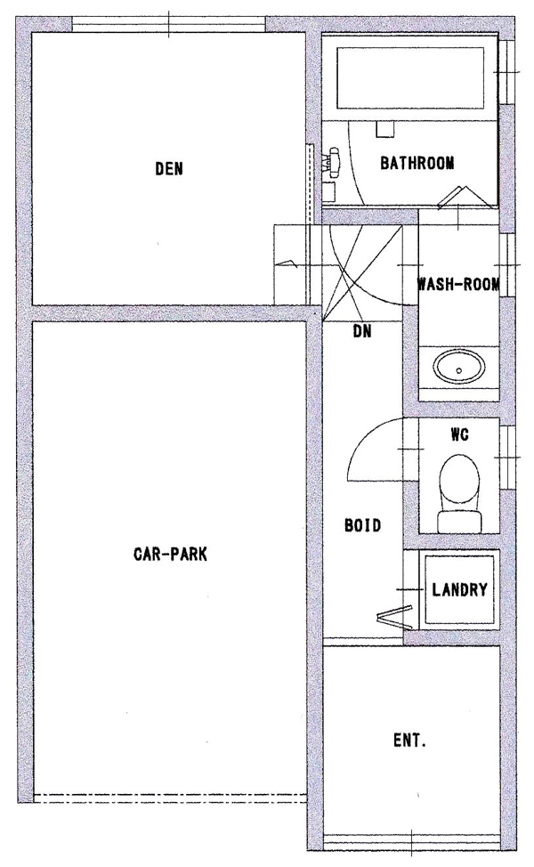
廊下部分には水回りが大集合。

廊下一番手前から洗濯機置場、お手洗い。

一番奥の扉をあけると洗面にお風呂。すべて新しく、そして快適に使えるようにリフォームされています。
廊下の奥から玄関の方を向くとこんな感じです。
それでは5段ほどの階段をあがって写真右上の扉のお部屋へ向かいましょう。
(3層目/全5層)
続いてリビング・ダイニング・キッチンを見ていきましょう。
間取図はこんな感じです↑
こちらがメインルーム。写真中央の白い扉が先ほどご紹介した廊下につながります。
キッチンと対面して電子レンジを置いたりできるスペースがあります。上は可動式の棚です。
アクセントクロスの部分には冷蔵庫が入るスペースが。リビングから見た時に隠れるように工夫されています。
(4層目/全5層)
こちらはリビングからのステップをあがった所にあるNOOK(片隅)スペース。上階にあがるアクセントになっています。
棚側から振り返るとこんな感じ。右は上階へ上がる階段。廊下の吹き抜けともつながっており、窓からはリビングが見えています。
(5層目/全5層)
階段をあがって最上階には3部屋あります。
雨が降っても屋根があるので安心。半透明なので日差しも気持ちよく降り注ぎます。
(1層目/全5層)
「実は廊下の奥にはこんなスペースがあるんですよ?」と濱崎さんが案内してくれた先には…
写真中央が降りてきた階段。電源もたくさん確保してあるので、シアタールームにするもよし、趣味の部屋にするもよし、納戸に使うもよし、と使い方自由なスペースです。
1層目には駐車場もあります。大事なお車もシャッターの中なので安心ですね。
ディスカウントセンター ジャパン枚方田口店(→店舗ページ)までは約160m
Cafeレストラン ガスト枚方田口店(→店舗ページ)まで約400m
国道一号線に出れば飲食店なども充実している、便利な立地にあります。
3月11(土) 12(日)はオープンハウス
以上、クセのある『5層の家』のリノベーションをご紹介してまいりましたがいかがでしたか?
私カトゥーも実際に見に行ってとても驚いたので、気になったアナタにはぜひ実際に足を運んでご覧いただきたいところ。
そんなアナタに朗報!
オープンハウス開催!
日時
3月11日(土) 12日(日)
時間
10:00〜16:00
場所
枚方市田口4丁目22付近(→Googleマップ)
※駐車場はございませんので近隣コインパーキング等をご利用ください。
お問い合わせ
0120-075-901(フォワードBHL)
ぜひご覧いただきたい面白いリノベーションができたので、お気軽に遊びに来てください!
皆さまのお越しをお待ちしています!
| 価格 | 1,490万円 |
| 所在地 | 枚方市田口4丁目22 |
| 土地権利 | 所有者 |
| 土地面積 | 49.40m²(公簿) |
| 建物面積 | 86.94m² |
| 階建 / 階 | 地上2階地下1階建 |
| 間取り | 4LDK |
| 設備 | 都市ガス・電気・上水道・下水道 |
| 接道状況 | 西 4.7m 私道 接面5.4m |
| 用途地域 | 第2種中高層住居専用地域 |
| 建ぺい率 | 60% |
| 容積率 | 200% |
| 引渡時期 | 相談 |
| リノベーション | 2017年2月 外壁塗装。水廻機器全部新調交換(キッチン、風呂、洗面、便器、給湯器)、フロアー・内装クロス全て交換新調。階段架け替え。リビング増築。 |
| リフォーム | 2017年2月 内装全面・外装一部 外壁塗装。水廻機器全部新調交換(キッチン、風呂、洗面、便器、給湯器)、フロアー・内装クロス全て交換新調。 |
| 広告有効期限 | 平成29年3月末日 |






