今回はひらつー初登場の野村不動産株式会社より、
PROUD SEASON枚方東山
(プラウドシーズン ひらかたひがしやま)
をご紹介します![]()
今回ご紹介するおうちを特にオススメしたいのはこんな方!
半分以上当てはまったら、最後まで目が離せませんよ〜![]()
今回は「戸建てのおうちを見てみたい!」という現在マンションにお住まいの主婦 Iさんと息子さんのダイヤくんにモニターとして一緒に参加していただいてご紹介いたします!
Iさん「今マンションに住んでいるんですが、戸建ても見てみたくて。今日はとても楽しみです!」
はじめに簡単に概要を説明します!
「プラウドシーズン枚方東山」は野村不動産株式会社が手がける昨年完成した全23戸の高級感溢れる分譲地。樟葉駅から車・バスで12分という近い場所にありながら、とても閑静な住宅街にあります。
▽地図ではこちら
枚方市東山2丁目
あえて少し傾斜をつけて迫力があるようにしてあるんだとか。電柱も木っぽい色で自然に感じられます。全戸優しい色の外壁で統一されており、冬でも植栽が彩り豊かで高級感があるまちなみですね![]()
飽きがこない、とはまさにこのこと![]()
▽区画図
全23戸中残すところ6戸!ピンク色のところが現在販売中ですべて間取りが違います。2階建て、3階建ても選べますよ〜(▶︎それぞれの間取りはこちら)
ではお待たせしました!今回ご紹介するのはこちら〜


おうちの前に車が1台停められます。ポストがある門柱もかっこいい!あちこちに植栽が植えられ冬でも枯れないように手入れされています。
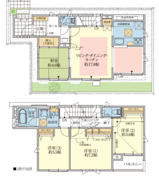
▽間取り図はこちら
(※クリックで拡大)
では、Iさんと一緒に早速中を見て行きましょう!
ダイヤくんおりこうさん〜![]()

まず玄関には天井までたっぷり入るシューズクローゼットがあります。扉裏の傘収納もスマート!
中に進むと、どーんとLDK!(15.8帖)
リビングの奥は、左からお風呂等の水回り・キッチン・ダイニング。
ここで上、見上げちゃいますか?!
・
・
・
この家の中心、リビングのソファにIさんに座っていただきました。
どうですかっ??
Iさん「1階全体が一つの空間のようで一体感が感じられます!」
また、この日は外の気温が5度ぐらいでとても寒い日だったのですが、お部屋に入るとぽかぽか
何のおかげかと言うとエアコンやストーブではなく、床暖房!家中が快適な気温で保たれていました。
ダイヤくんもニコニコ〜
ごきげんさんでした![]()
ソファに座ると見える正面の大きな窓。
カーテンがありません!網戸もついてる・・・?!
まず網戸はこれでついてます!でもそう見えないですよね!?
というのは「クリアネット」と言って通常よりもうんと細かい網目になっているから見えにくかったんですね。それだけでもお部屋が明るくなります。
そしてお隣のお家の小さな窓が見えていますが、中までは見えません。また、向こうからもこちらの中は見えません。
(家の横面)
そう、野村不動産のお家はお隣同士の窓が決して重ならないように目線の高さを変えたり磨りガラスにしてプライバシーを守っています。なのでカーテンがなくても外から中を見られることがないんですね![]()
これって住んでみないとわからないことですが、意外と生活に密接に関わってきます。

ちなみにリモコン付きシャッターが標準でついているので、防犯面も安心![]()
続いてキッチンです!
大きな食器棚や冷蔵庫を置いても充分な広さが保てる空間![]()

換気扇はホーロー整流板付きレンジフードファン。
「高捕集設計」で、3方向の風速がなんと2.5倍!強力に換気してくれます。
こちらのキッチンはタカラスタンダードのホーローシステムキッチン。火に強く傷がつきにくく汚れが落ちやすく磁石がくっつく、とっても優秀なキッチンです。
三口ガスコンロ・ボタン一つで浄水に切り替わる浄水器内臓水栓も嬉しい!

さらに床下収納もあって、保存食や調味料もしっかり保管できます。

キッチンとダイニングの間の壁にはモニター付きドアホンと埋め込みのホワイトボードが付けられています。家族への伝言を残しておけます。
さらに家を守ってくれるSECOM(セコム)の機械も標準でついているので施工料金が不要!(※ランニングコストは自己負担となります。)
ダイニングとキッチンは繋がっているので・・・
仕事帰りの疲れた旦那さんが料理中の奥さまの顔を見ながらごはんが食べられる、幸せ設計
こんなにかわいらしい奥さんが待ってくれてたら毎日飛んで帰りたくなりますね
キュンキュン

続いて和室(4.5帖)。押入と便利な埋め込み棚がありたっぷり収納できます。

湿気が溜まりやすい押入。中板の奥に1センチ程度の隙間があえてあけてあり、通気性を良くしてあります。住む人の気持ちがよくわかってる、細やかな気配りが嬉しいですね![]()

キッチン・ダイニング・リビングどこにいても和室がよく見えるので、安心して子どもを遊ばせられます!
続いてキッチン横の水回り。
明るい洗面スペースとお風呂です。
水回りが集まっているのと家事が楽チン♪
ナチュラルテイストで優しい雰囲気のお風呂。ステップ付きで長時間冷めにくい浴槽になっているので長風呂派も大満足。
床はさっとスポンジで洗うだけですぐに汚れが落ちるリクシルのフロア素材を使用しているのでお掃除もラクラク♪

一番上は綿棒やコットンなど細かいものをスッキリ収納できるスペースも。Iさんも「これいい!」と驚いていました!

中に電源があるので電動歯ブラシやパパのひげ剃りなども充電しながらきれいに収納できます。

下も広い収納スペース。上の照明の光が棚の下に届くようになっているので棚の中が明るいんです!!見やすくてビックリしました。
洗面とお風呂の手前の壁にも埋め込み収納棚があって「これは便利!」とIさんも感動![]()

ダイヤくんのお洋服やタオルもたっぷり入りますね♪
では続いて2階へいきます!
今話題のリビング内階段なので、子ども・旦那さんが帰ってきたときに自分の部屋に直行!ではなく必ず家族と顔を合わせられます![]()
吹抜けの家で2階に上がってまず見たいのは、やっぱりこの景色ですよね。
上から吹抜け!高い〜!!
では続いて主寝室(8.0帖)
まず思うのは、広くて明るい!!
ご近所の窓から中が見えないようになっているのでカーテン要らずですっきりしています。

窓からは日光がサンサンと差すので、ぽかぽかあったかいです
Iさんも幸せそう。

バルコニーは奥行きがあってふとんもたっぷり干せますし、観葉植物を育てたりすることもできます。
主寝室には大きな2.2帖のウォークインクローゼットもあります。
作り付けの仕切りがあるので収納しやすい優秀デザイン![]()

「今日はこれがいいんちゃう〜?」毎日旦那さんの服を選んであげるのも楽しくなりそう![]()

さらにもう一つドアの後ろにも収納棚がありました!
細かなデッドスペースも活用する抜かりなさに、Iさんもびっくり![]()
続いて、洋室(5.3帖)
バルコニーとクローゼットがあります。シンプルで飽きがこない使いやすそうなお部屋です。子どもの成長や人数にあわせて、いろんな用途に使えそうです。

廊下にも埋込棚があり、2階にもトイレがあります(左のドア)。
最後はこちらの洋室(5.0帖)
明るい!そして右の白いはしごは何だ〜!!

明るい理由は、I様の笑顔のおかげ・・・というだけではなく(笑)天窓があるからなんです!
せっかくなのでIさんに上ってもらいました。
「こわい〜!」と言いながらもサクサク上るIさん。

Iさん「広いです!まだ奥があってたっぷり収納できます!っていうかここで寝られますよ!」
かわいらしすぎて、何枚も写真を撮ってしまいました(笑)
![]() |
![]() |
後ほどおさや@ひらつーも上らせてもらいましたが、電源もあって本当にここで住めそうでした♪
そして2階の細やかな配慮はこちらです。
![]() |
![]() |
左)固定電話ってどこに置くか困りますよね!階段上がってすぐのみんなが取れる場所にあります。電源もあってありがたい。
右)照明のスイッチのカバーを開けると、電源に早変わり!一般的な低い位置の電源はいちいちしゃがまないとさせないの、で掃除機のときなど面倒ですよね。これなら腰を痛めません!
「2×4(ツーバイフォー)工法」と言って、床・天井・壁の6面体を1単位とみなして空間を構成することで、外部からの荷重を分散させて受け止める強さと柱のない住空間を実現した丈夫な作り方だそう!
野村不動産の物件はこの安全な『2×4(ツーバイフォー)工法』を取り入れています。
間取りがとてもよかったです。
特にリビングと和室、キッチン、ダイニングが一つに繋がっていて一体感があって、家族が顔を合わせて過ごせることがすごくステキだと思いました。
ここに住みたい!と思いました
Iさん、ご協力ありがとうございました!
※ちなみに、今回ご紹介しました14号地は成約済みとなりました。
さらにスカイバルコニーがあるお家もあると伺ったので、2号地もちょこっと見せていただきました![]()

広いお庭では家族でBBQなんかも出来ます!周りから見えないように高めの壁があるので、友達を呼んでも楽しいですね。

3階のスカイバルコニーがこちら!気持ちいい!!暖かくなったらハンモックを用意してのんびり休日を過ごしたくなりますね〜。

はしごで上れる小屋裏収納もあります!(普段はしごは上に格納されています。)
こちらも収納内に照明・電源があるので便利です。
以上、14号地とちょびっとだけ2号地をご紹介しました!
・・・もっと見たくなりましたよね(笑)が今回はここまでです!
気になる方はぜひ現場を見に行ってみてくださいね![]()
〜バスでの行き方〜
京阪樟葉駅くずはモール前のバスロータリーからバスに乗ります。

バス停「中の池公園」でおります。中の池公園バス停は、緑の屋根が目印です。
バス停を降りると分譲地まで徒歩2分!目印は東山郵便局。
少し樟葉駅側に戻ると東山郵便局がありますので、その角を山側に向かうとすぐに右手に「プラウドシーズン枚方東山」が現れます。

見学希望の方はまずはこちらのインフォメーションまでお越し下さい!

サークルK徒歩1分。中の池公園のバス停のすぐ近くにあります。駐車場が広いので便利。
![]() |
![]() |
お花がいっぱい咲いていて、子ども達が楽しく遊べる遊具もたくさんあります。

極楽湯徒歩1分。
休日はゆっくりリラックス!極楽湯で販売している九十九堂のクリームパンが美味しいのでおすすめ!
くずはモールにもニトリモールにも車ですぐに行けるのが嬉しいですね!
ニトリモール関連記事
その他の周辺環境についてはこちらのページをご覧ください!
【物件概要】
| 物件名 | プラウドシーズン枚方東山 |
| 販売時期 | 先着順販売中 |
| 所在地 | 大阪府枚方市東山2丁目37番5他(地番) |
| 交通情報 | 京阪本線 「樟葉」駅 中の池公園バス約10分 中の池公園バス停より 徒歩2分 |
| 種別 | 一戸建て |
| 用途地域 | 第一種中高層住居専用地域 |
| 総戸数 | 23戸 |
| 道路 | 4.7m~8.0m |
| 私道負担 | なし |
| 設備・仕様 | 大阪ガス、関西電力、公共下水道 |
| 販売戸数 | 6戸 |
| 敷地面積 | 82.81㎡ ~ 108.61㎡ |
| 延床面積 | 95.11㎡ ~108.64㎡ |
| 間取り | 3LDK + S ~ 4LDK |
| 構造規模 | 木造(2×4) (地上2階・3階建て) 地上2階 |
| 建築確認番号 | 第KKK01500579号他 |
| 販売価格 | 39,900,000円 ~ 53,900,000円 |
| 建物竣工時期 | 平成28年1月下旬 |
| 入居時期 | 即入居可 |
| 売主 | 野村不動産株式会社 |
| 設計・施工 | 西武建設株式会社 |
| 土地権利/借地権種類 | 所有権 |
| 備考 | ※規模/2階建:21戸、3階建:2戸 |
今回初めてご紹介しました野村不動産のおうち、いかがだったでしょうか![]()
![]()
高級感があるだけではなく、住む人の立場になって考えられた細やかな気配りや、機能的にも耐震面でも安心で、申し分がないステキな物件でした!
恵まれた静かな環境で、飽きがこないずっと長く住める家で暮らしてみませんか?
残り6邸、人気のエリアですので気になる方はお早めにお問い合わせください![]()
・野村不動産株式会社(公式サイト)
・プラウドシーズン枚方東山(公式サイト)
野村不動産株式会社
土日祝:10時〜18時
定休日:水・木曜日
「ひらつーで”プラウドシーズン枚方東山“の記事をみた」とお伝えいただくと話が早いと思います!
(すでに販売が終了している場合もありますのでご了承ください)


























