こんにちは!みか@ひらつーです
ひらつーコラボの時間がやってきました!
(※ひらつーコラボとは、枚方のいろんなお店や企業とひらつーで一緒におもしろ記事を作っていこうという企画です。)今回コラボするのは、枚方家具団地でアルミケースやアタッシュケースを製造販売されているアクテック株式会社 さんです!!
アクテック株式会社さんのおもしろい製品については、以前カズマ@ひらつーが紹介しています!
事務所に入ると、製品がズラリ!!

これらの写真を見ていただいてもわかるように、アクテック株式会社さんの製品はすべてオーダーメイド!
従来のカメラ、精密機器などを収納するアルミケースのみならず、趣味の世界などマニアックな製品を収納するアルミケースにも力を入れていらっしゃいます!!

従来のカメラ、精密機器などを収納するアルミケースのみならず、趣味の世界などマニアックな製品を収納するアルミケースにも力を入れていらっしゃいます!!

そこで!!!せっかくのコラボ、みか@ひらつーもお客さんとしてオーダーメイドさせていただくことにしました!
何を作ろうか悩んだ末、『デジタルカメラケース』に決定!



何を作ろうか悩んだ末、『デジタルカメラケース』に決定!



みか@ひらつーが普段使っているカメラはこれ↓↓↓
今回のコラボでは、そのデジカメケースが出来上がるまでの過程を全3回のシリーズものとしてみなさんにお届けしたいと思います
第1回目は、打ち合わせの様子をレポートします!
オーダーメイドを依頼したい場合は、電話やメール、または直接事務所に行って営業担当の方に相談するところから始まります(HPでスピード見積もり もしてくれます) 。そして連絡を蜜にとりながらこちらの要望をいろいろ伝え、製品仕様を決めていきます。その後、アクテック株式会社さんから製品のイメージ画像と見積もりが送られてきます。今回のレポートはここまでです。(お届けまでの流れはコチラ!)
オーダーメイドを依頼したい場合は、電話やメール、または直接事務所に行って営業担当の方に相談するところから始まります(HPでスピード見積もり もしてくれます) 。そして連絡を蜜にとりながらこちらの要望をいろいろ伝え、製品仕様を決めていきます。その後、アクテック株式会社さんから製品のイメージ画像と見積もりが送られてきます。今回のレポートはここまでです。(お届けまでの流れはコチラ!)それでは写真で紹介していきましょう!!

「こんな風にしたい!」と要望を熱く語るみか@ひらつー
望遠レンズやバッテリーなどの付属品と一緒に保管できる大きめのケースというのはありますが、みか@ひらつーがこだわったのは、このカメラだけが入る小さめ軽めのショルダーケース!!まずは基本の型を決め、続いてコーナー樹脂、色、取っ手、錠前、ケース内のスポンジ、ゴム脚、アルミ板、ポケットの有無、肩ベルト、重さなどについてサンプルを見つつ細かに決めていきます。
「こんなに小さなアタッシュケースは初めて!」とみか@ひらつーと同じように目をキラキラさせているスタッフのみなさんがとても印象的でした
この日の打ち合わせは終了し、5日後送られてきた画像がコチラ↓↓↓
この画像が送られてきた際に、ボックスかアタッシュどちらのタイプにするのかと、板の色を最終決定しました。白い板のアタッシュタイプに決定!!
さらにその6日後イメージイラストが送られてきました!
なんかかわいくないですかぁ~~

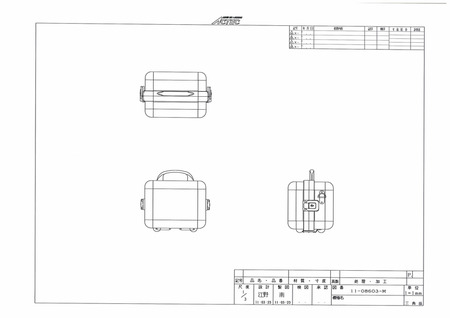
今回作っていただくケースはアクテック株式会社さんにとっても初の試みということで、上の紙サンプルとイラストを作成していただきました。通常はほとんど下にある図面(白黒の線画)を作成されるそうです。
これでやり取りは無事終了。製作に入ります。ここで概算価格が出ました!
★アタッシュケースタイプ:15,225円
★ボックスタイプ:14,175円
出来上がりがめちゃくちゃ楽しみです!





次回第2回目は製造工程の様子をお伝えしたいと思います!実際にみか@ひらつーが工場に足を運び、我が子が誕生するまでの過程をおさめてきます!

みなさんも出来上がりまでどうぞ見守ってください!!

所在地:〒573-0102 大阪府枚方市長尾家具町3-10-10
TEL:072-857-0898
FAX:0120-898-001
E-mail:actec@actec1972.co.jp








カメラ自体もしっかり保護できて、なおかつ持ち運びしやすく、かわいいケースを求めていたのです!














