※この記事は再アップ記事です。
どうも、カトゥー@ひらつーです。

さて、今回は星丘に完成した長期優良住宅化工事を行った「リノベーション物件」をご紹介します。
地図ではこちら↓
住所は枚方市星丘2丁目26-1です。
手がけたのはひらつーに何度も登場してもらっている、桜丘にある

水回り工事やリフォームをはじめ、住宅のことならなんでも相談できる「フォワードBHL」と「優デザイン一級建築士事務所」がタッグを組んだ第二弾のリノベーション物件!

機能は新築・価格は中古の物件の魅力を、フォワードBHLの藤倉社長と枚方つーしんキャラクターの「ぼしひこくん」の二人に紹介してもらことにしましょう。
どうもフォワードBHLの藤倉です。昔、ぼしひこくんとこのやり取りやったよね?
やった! …っけ? …忘れた。
忘れたんかいな! まぁええけど(笑)今回は価格は中古・機能は新築…いや、新築以上といえる物件を紹介していくで。
言い過ぎたらアカンで〜。最近広告も色々厳しいから(いやらしい微笑)
いやいや、ホンマにすごいからちょっと見てみて。今回のポイントはざっくり言うと以下の2つ。
住宅診断士(ホームインスペクター)の診断済み!耐震性・省エネ性などを向上させた長期優良住宅化リノベーション!
安心ポイント2
入居後5年間はJIOの住宅かし保険(→詳しくはこちら)に加入しているので、万が一補修が必要になった場合でも安心!
ようわからんけどすごそうやな。
中古住宅の購入ってやっぱりお客さんも不安が多いと思うから、そのあたりを徹底的に解消したんよ。
ほな、実際にみせてもらお。

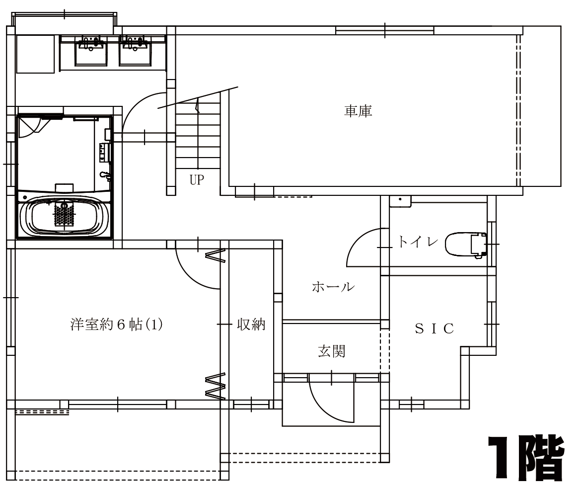
こちらが1階の間取図。では玄関から見ていくことにしましょう。

めっちゃ新築っぽいやん!
外壁の塗替えはもちろん、外構もしっかりやらせてもらったよ。ほら、入って入って!

玄関入って右側にはシューズ イン クローゼットを作ってあるよ。靴をたくさん持ってる人も、アウトドアグッズとかベビーカーとかも置ける場所になってるで。
窓があるのもええね。

続いて玄関右奥にはお手洗い。スペースは広くとって、洗面台に飾り棚もつけてるよ。
棚ええな。マンガでも並べよ。
枚方市史とか並べなさいよ、枚方のキャラなんやから。

枚方市史
オレの魅力って、こういう枠にハマらんところやと思わへん?
それはさておきこっちも見て。

お! 車やん!
1階の階段横の扉を開けると車庫につながるインナーガレージになってるんよ。ガレージでの作業なんかもゆっくりできるし、使い方は色々できると思うで。

外から見たらこんな感じやね。電動シャッターやから開閉もラクラクやで。
電動ええね!
続いてやってきたのは1階の6帖洋室。

キレイやけどまぁふつうやん。
もっとしっかり見てよ。

クローゼットの中に窓ついてる! これは珍しいんちゃう?
これはリフォーム前の窓を活かした形やね。ほかにもしっかり見てよ。
居室の窓は全て2重窓にして、防音対策・省エネ対策もしてるんやで。
織姫ちゃんのオレに対する心の窓も二重窓なんかなぁ…(注:ぼしひこくんは交野のおりひめちゃんに片思いをしています)
それは知らんけど、この二重窓はいいよ!
冷たいなぁ〜。
冷たい? 残暑厳しいからよかったやんか!
・・・・・・。
続いて二人がやってきたのは洗面所↓
ここも広い窓があってええやん。
ここはリノベーション前はキッチンやったから、その窓をそのまま利用してるんよ。
ふつうのお風呂よりも大きい1620サイズ(160cm X 200cm)にしてるから、かなりゆったり入ってもらえるよ。
広いお風呂、誰と入ろかな…なんて♪
ここ買ってくれたらアヒルのおもちゃくらいつけるよ!
・・・。恋するオトコが隠してる気持ち、わかってへんなぁ〜
「隠してる」で思い出したけど、この家も隠れた部分にこだわってるんやで。
あと、最初にも説明したけど住宅診断士(ホームインスペクター)にしっかり見てもらって診断書も出してもらってるし、購入後も5年間住宅かし保険があるから安心して住んでもらえるよ!
…強引に家の説明にもってったな。
いいパスやったで!
・・・どうも。
その前に…
ここが1階から2階にあがる階段の途中にある6帖の洋室やね。
階段の途中にあるのが、なんかカッコええな。
天井もカッコいいやろ?高さを加えて、さらにダウンライトにしてるから広さも感じてもらえると思うで。
階段を登りきってやってきたのは2階。まずは右の6帖洋室を見ていきましょう。
壁の一面だけアクセントクロスを取り入れてるんよ。
なかなか憎らしい演出やな。
じゃあメインルームとなるLDK行こか!
キッチンカウンターの下には収納力たっぷりの備え付け棚があります。
ズドンと抜けてて広々してるな〜
シンプルでなおかつ過ごしやすい工夫をしてるんやけど、わかる?
う〜ん、枚・かた男(ひら・かたお)の唄がエンドレスで流れるとか?
枚方つーしん所属 さすらいの唄人形
枚・かた男(ひら・かたお)
・・・僕は好きやけど、過ごしやすいかどうかは人によると思うで(苦笑)
正解はコレ↓
写真じゃちょっとわかりづらいんやけど、二重ガラス+二重窓、つまり三重のガラスで外と隔てられてるから、防音対策・省エネ対策もバッチリやねん。
三重の窓? お伊勢さんパワーで安心やな!
さんじゅうやで、さんじゅう窓。
この部屋もダウンライトをたくさん取り入れてるから、すっきりとした空間になってるのも魅力やと思うよ。
盛りだくさんやな。
開放感あって気持ちいいな〜
スペースも広々やから、ゆっくり洗濯ものも干してもらえると思うよ。最後にもうひと部屋紹介するで。
ここまで登ったし、しゃあなしやで!
ここは隠れ家っぽいな〜。
収納もあるから、ぼしひこくんのオトコの隠れ家にどう? 住所も”星” 丘やし。
ホンマや!うまいこと言うな藤倉さん。
ありがとう! じゃあ2,380万円ね!
こんなええトコはひらつー読者さんに買ってもらわんと。
今日はじめてうまいこと言うたな。
そうそう、はじめてうまいこと言えたわ…ってコラー!
以上、リノベーションにより生まれ変わった長期優良住宅化リノベーション物件をご紹介してきましたが、いかがでしたか?
住宅診断士(ホームインスペクター)の診断済み!耐震性・省エネ性などを向上させた長期優良住宅化リノベーション!
安心ポイント2
入居後5年間はJIOの住宅かし保険(→詳しくはこちら)に加入しているので、万が一補修が必要になった場合でも安心!
2つの安心に支えられたコチラの物件の見学は随時受付中!
気になった方はぜひ「ひらつーで星丘のリノベ物件みた!」とお気軽にお電話してみてくださいねー!(フリーダイヤル:0120-075-901 / 営業時間 9:00〜18:00 )
| 価格 | 2,380万円 |
| 所在地 | 枚方市星丘2丁目26-1 |
| 土地権利 | 所有権 |
| 土地面積 | 77.33m² (公簿) |
| 建物面積 | 119.03m² (壁心) |
| 建物構造 | 木造 / 3階建 |
| 間取り | 4LDK |
| 設備 | 都市ガス・電気・上水道・下水道 |
| 接道状況 | 角地 ( 南 5.4m 私道 間口9.2m ) ( 東 5.5m 私道 間口7.9m ) |
| 用途地域 | 第一種中高層住居専用地域 |
| 建ぺい率 | 60% |
| 容積率 | 200% |
| 引渡時期 | 即時 |
| 設備 |
公営水道、都市ガス、下水、専用バス、専用トイレ、追焚機能、シャワー付洗面化粧台、温水洗浄便座、浴室1.6×2.0M以上、洗面所独立、クローゼット、シューズインクローゼット、フローリング、バルコニー、 室内洗濯機置場 |
| 評価書 証明書 保証書 |
建設住宅性能評価書(既存住宅)、インスペクション(建物検査)報告書、修繕・点検の記録、瑕疵保険(国交省指定)による保証付、瑕疵保証(不動産会社独自)付 |
リフォーム・リノベーションなど、お家のご相談なら何でもお任せ下さい!
大阪府知事免許(1)第57037号
◇営業時間
※ひらつー不動産のお問い合わせはコチラから



