空き家・空き地を活用してみませんか?リノベ・リフォーム・建替えで持て余した土地や建物を収益物件に!【ひらつー不動産】
おはようございます、おさや@ひらつーです。
早速ですが、
現在空き家・空き地などを持っているけれど
活用できずに困っている方、
これから親の相続などで取得予定だけど
どうやって活用していけば良いか分からない…
という方はいらっしゃいませんか?
どうにかしたいと思っても、
誰に何をどうお願いすればいいか分かりづらいですよね。
そして、分からないから何だか怖い…
今回の記事は、そんな方にぜひ読んでいただきたいです
初めまして、ミハマ企画の山口です!
ミハマ企画はひらつーにもよく出ている「ミハマホーム株式会社/御浜住宅株式会社」ファミリーの新会社で主に、賃貸/管理・土地活用・空き家対策などを行っています。
例えば、
▽マンションリノベーション
こちらは築40年以上の分譲マンション。
【BEFORE】以前はこんな感じでした。
![枚方ハイツ①[1]-2](http://livedoor.blogimg.jp/hiratsu/imgs/2/d/2d740ae8-s.jpg)
【AFTER】

こんなに美しく!!
LDKは壁をぶち抜いてこんなにひろびろ!!

新築同様のお部屋が完成しました!!
続いてこちらのおうちは通称テラスハウス!
▽賃貸アパート

こちらは以前、駐車場でしたがステキな賃貸アパートに生まれ変わりました!!
↓MAP
枚方市西牧野3丁目25-33(グリーンハイツ西牧野)
こちらで来週末に見学相談会も開催します!
見学会&相談会開催概要
というような形で、「家・土地を持っているが、それをどうにかしたい人」と「家・土地がなく、探している人」の悩みを両方解決するのが私たちの仕事です。
一度整理すると、このような感じです。
「家・土地を持っているが、それをどうにかしたい人」
・どうしようもない空き家がある
・どうしようもない空き地がある
・微妙な駐車場がある
・一戸建て(or 分譲マンション)を売って(or 貸して)、引っ越したい
など






「家・土地がなく、探している人」
・賃貸マンションを探してる
・お手頃な新築一戸建て住宅を探してる
・お手頃でかつキレイでオシャレな分譲マンションを探してる
などをお探しの方にご紹介します!
収益を生み出すところも含めて、最初から最後までまるごとお任せできるのがありがたいですね!もうちょっと具体例が見たいです!
早速ですが、
現在空き家・空き地などを持っているけれど
活用できずに困っている方、
これから親の相続などで取得予定だけど
どうやって活用していけば良いか分からない…
という方はいらっしゃいませんか?
どうにかしたいと思っても、
誰に何をどうお願いすればいいか分かりづらいですよね。
そして、分からないから何だか怖い…
三大分からない
!
・活用するためにどれくらいお金(時間)がかかるか分からない!
・活用して本当に収益になるのかどうか分からない!
・安心して頼める業者が分からない!
・活用するためにどれくらいお金(時間)がかかるか分からない!
・活用して本当に収益になるのかどうか分からない!
・安心して頼める業者が分からない!
今回の記事は、そんな方にぜひ読んでいただきたいです
新会社ミハマ企画は、
不動産のいろんなお悩み解決します!
不動産のいろんなお悩み解決します!
初めまして、ミハマ企画の山口です!ミハマ企画はひらつーにもよく出ている「ミハマホーム株式会社/御浜住宅株式会社」ファミリーの新会社で主に、賃貸/管理・土地活用・空き家対策などを行っています。
例えば、
▽マンションリノベーション
こちらは築40年以上の分譲マンション。
【BEFORE】以前はこんな感じでした。
![枚方ハイツ①[1]-2](http://livedoor.blogimg.jp/hiratsu/imgs/2/d/2d740ae8-s.jpg)
これが・・・!




こんなに美しく!!
LDKは壁をぶち抜いてこんなにひろびろ!!

新築同様のお部屋が完成しました!!
続いてこちらのおうちは通称テラスハウス!
▽賃貸アパート

こちらは以前、駐車場でしたがステキな賃貸アパートに生まれ変わりました!!
↓MAP
枚方市西牧野3丁目25-33(グリーンハイツ西牧野)
こちらで来週末に見学相談会も開催します!
2017年10/28(土)・10/29(日)
10:00~17:00
10:00~17:00
・雨天決行
・車で来場OK。
・予約不要。
・牧野駅から徒歩6分程度です。
・ご希望の場合は牧野駅まで迎えにいきますのでお電話ください。
TEL 072-868-0065
・予約不要。
・牧野駅から徒歩6分程度です。
・ご希望の場合は牧野駅まで迎えにいきますのでお電話ください。
TEL 072-868-0065
というような形で、「家・土地を持っているが、それをどうにかしたい人」と「家・土地がなく、探している人」の悩みを両方解決するのが私たちの仕事です。一度整理すると、このような感じです。
・どうしようもない空き家がある
・どうしようもない空き地がある
・微妙な駐車場がある
・一戸建て(or 分譲マンション)を売って(or 貸して)、引っ越したい
など
それを
ミハマ企画が、予算・条件・広さなどをお伺いして、
・空き家を解体して、建替える
・空き家をリノベーションする
・空き地に賃貸(販売)物件を建てる(管理・アフターサービスもできます)
などなどベストな方法をご提案し、責任を持って施工します。
・空き家を解体して、建替える
・空き家をリノベーションする
・空き地に賃貸(販売)物件を建てる(管理・アフターサービスもできます)
などなどベストな方法をご提案し、責任を持って施工します。
さらに
それを
それを
・賃貸マンションを探してる
・お手頃な新築一戸建て住宅を探してる
・お手頃でかつキレイでオシャレな分譲マンションを探してる
などをお探しの方にご紹介します!
収益を生み出すところも含めて、最初から最後までまるごとお任せできるのがありがたいですね!もうちょっと具体例が見たいです!
もちろんです!!では事例を3つ見ていただきましょう!!
ご紹介する事例3つ!
ケース1:空き家→建替えで、新築分譲一戸建てに変身!
ケース2:分譲マンション→新築さながらリノベーション!
ケース3:駐車場→テラスハウス(賃貸アパート)に変身!
ケース1:空き家→建替えで、新築分譲一戸建てに変身!
ケース2:分譲マンション→新築さながらリノベーション!
ケース3:駐車場→テラスハウス(賃貸アパート)に変身!
早速ひとつめ!
ケース1、空き家→建替えで、新築分譲一戸建てに変身!
こちらは以前、古い一戸建ての空き家だったんです。それを建替えて、こんなおうちになりました!

場所はこちら。
MAP
枚方市片鉾本町12-7

角地にあるので光が2方向から入ってくるため、中はとても明るいです。

(※クリックで拡大)

玄関まわりもすっきり美しく。おじゃましまーす!

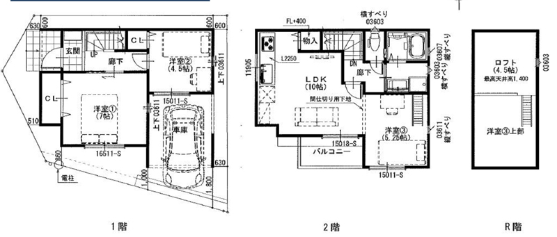
1階は寝室(7帖)・子ども部屋(4.5帖)です。
2階にLDK・水回りがあります。

キッチン・リビング・ダイニングと、洋室が一体になっていて、広々とした空間。(LDK10帖・洋室5.25帖)

特長はこちらのロフトです!(4.5帖)
↓上の様子

広々としていて、窓もあり明るい空間になっています!収納としても使えますし、電源もあるので子ども部屋や書斎としても使えます。

続いてキッチン。右端にキッチンパントリーもあって、便利!

バルコニーもあります。

枚方市内でたくさんの家を建て続けているミハマホームファミリーだからこそできる、この価格とクオリティです。

〜その他〜
・20坪・北西角地・採光・通風良好
・建物には10年保証・土地には20年保証
・35年ローン返済の場合、月々59,035万円(ボーナスなし)
・20坪・北西角地・採光・通風良好
・建物には10年保証・土地には20年保証
・35年ローン返済の場合、月々59,035万円(ボーナスなし)
続いてはこちら。
ケース2、分譲マンション→新築さながらリノベーション!7階

↓場所はこちら。
MAP
「枚方ハイツ」の7階にその部屋があります。

エレベーターがあるので日常生活は楽チンです。

こちらがそのお部屋!では、おじゃましますー!

おお〜!!築40年のマンションとは思えないきれいさです。
↓間取り図

①17帖の広々リビングです。間仕切りで1LDKから2LDKにも変更可能。
②玄関横の棚もリニューアル。ナチュラルな雰囲気になっています。
③水回りすべて改装済みです。パナソニック製のキッチン、浴室洗面台です。
どどん!広いLDK!(17.27帖)

もとは2部屋だったのを壁をぶち抜いて広いLDKにリノベーション。

パナソニックのキッチンです。もちろん新品!三口のガスコンロもあります。

奥のスペースには冷蔵庫を格納できます。

大きな南向きの窓で、明るく開放感があります。

奥のスペースは収納にしても良し、キッズスペースにしても良し、趣味のスペースにしても良し!

ベランダも広く洗濯物も布団もたっぷり干せます。

玄関すぐ横にもう一部屋、寝室があります。(5帖)

お風呂・トイレ・洗面スペースもキレイにリノベーションされています!

駆け足ですいませんが、次がラストです!
ケース3、駐車場→テラスハウス(賃貸アパート)に変身!
こちらが通称「テラスハウス」です!同じ間取りで2軒の賃貸。1軒はすでに成約済みです。

牧野駅から徒歩6分、45坪の土地に木造2階建て。
場所はこちら。
↓MAP
枚方市西牧野3丁目25-33(グリーンハイツ西牧野)
間取り図(2戸)、駐車場もあります。

(※クリックで拡大)
向かって左側のおうちを見せてもらいました!
↓LDKはこちら!(13.15帖)



↓気になるキッチンを見ていきます!

対面型のキッチンは奥行きがしっかり取ってあります。

収納もたっぷりあります。3口のIHです。

保存食や掃除用具などいろいろ収納できるキッチンパントリーもあります。
リビング内階段・対面キッチン・キッチンパントリー。
「あったらいいな」が揃っているファミリー向けの新しい賃貸アパートです。

ちなみに、お風呂は追い炊きも可能。
続いて2階の寝室(6帖)

壁一面の大きなクローゼット。

室内で洗濯物が干せるように、物干竿をかけるフックもついています。これは嬉しい!

バルコニーもありますのでもちろんこちらにも洗濯物が干せます。

家の正面は広大な田園風景。窓からの景色がバツグンです!!
子ども部屋(5.42帖)


さらに2階にはたっぷり収納ができる、嬉しい納戸もあります!

以上、3つの事例をご紹介しました!
いかがでしたか?イメージわきましたでしょうか。
よくわかりました!どうしようもなかった空き家・空き地だった場所が、見事に新しい価値ある収益物件に生まれ変わっていましたね。
キッチンパントリーや物干竿のフックなど、一般的な賃貸物件にはあまりないような細やかな心くばりがあったところが印象的でした!

以上、3つの事例をご紹介しました!いかがでしたか?イメージわきましたでしょうか。
よくわかりました!どうしようもなかった空き家・空き地だった場所が、見事に新しい価値ある収益物件に生まれ変わっていましたね。キッチンパントリーや物干竿のフックなど、一般的な賃貸物件にはあまりないような細やかな心くばりがあったところが印象的でした!
ありがとうございます!その心くばりは長年ミハマホームで経験を積んできた新社長のアイデアがなんですよ。最後にご紹介したテラスハウスで、来週末実際に中を見られる見学相談会を開催します。実際におうちを見ていただくことで、空き家や空き地がどうなっていくのか、イメージがしやすくなると思います。
10/28(土),29(日)に
牧野のテラスハウス見学会&相談会開催!行き方
牧野のテラスハウス見学会&相談会開催!行き方

牧野駅で降りて、徒歩6分程度でテラスハウスに到着します。

牧野駅前のローソン横の道をまっすぐ奥に進んで行くと、右手にあります。

向かいには田んぼが広がっています。
↓MAP
枚方市西牧野3丁目25-33(グリーンハイツ西牧野)
2017年10/28(土)・10/29(日)
10:00~17:00
10:00~17:00
・雨天決行
・車で来場OK。
・予約不要。
・牧野駅から徒歩6分程度です。
・ご希望の場合は牧野駅まで迎えにいきますのでお電話ください。
TEL 072-868-0065
・予約不要。
・牧野駅から徒歩6分程度です。
・ご希望の場合は牧野駅まで迎えにいきますのでお電話ください。
TEL 072-868-0065
もちろん、上でご紹介した物件に住んでみたい!という方も参加OKです!
最後に、ミハマ企画について

今年平成29年4月から会社の体制が変わり、
・御浜住宅株式会社
・ミハマホーム株式会社
・御浜建設株式会社
・ミハマ企画株式会社
の4つの会社になりました。
つまり、ミハマにご相談いただければ、
売りたい!貸したい!借りたい!買いたい!など
不動産にまつわることはほとんど何でも解決できます。
その中で、今回ご紹介した「ミハマ企画」では、古くなって使えなくなったり価値が下がってしまった建物に手を加えたりつくり直したりすることで、新たな価値を生み出していきます。
その中で、今回ご紹介した「ミハマ企画」では、古くなって使えなくなったり価値が下がってしまった建物に手を加えたりつくり直したりすることで、新たな価値を生み出していきます。

ちなみに今回ご紹介した以外にも様々な活用を行っています。例えば、敷地面積が広い場合は大きなマンションを建てることも可能です。長い目で見て大きな収入源にしていくことができます!
場所によっては、工事車両の関係で家を建てるのが難しい場所もあるかもしれませんが、出来る・出来ないに関わらず、土地の大きさや周辺の状況を見てベストなご提案をさせていただきます。
持ち余している不動産をお持ちの方、これを機に活用してみませんか?
ぜひ、気軽にご相談ください。持ち余している不動産をお持ちの方、これを機に活用してみませんか?
お待ちしてます!!
☎072-868-0065
〒573-1126大阪府枚方市上島東町14番1号
営業時間/9:00〜18:00 定休/水曜日
お問い合わせの際は「ひらつーで”ミハマ企画”の記事を見た」と是非お伝え下さい!
ーーーー
【ひらつー不動産】についてのお問い合わせはこちらから!ーーーー
カテゴリ : ひらつー不動産 ひらつー不動産(リノベーション)
コメント投稿欄閉鎖のお知らせ








