蹉跎(さだ)東小学校まで徒歩1分!省エネと制震もバッチリ!家族が快適に暮らせるスマートでエコなお家【ひらつー不動産】
こんにちは、シュン@ひらつーです。
お家を選ぶ際に重要なのは、やはり快適に暮らせるということですよね

今回ご紹介するのは最寄りの小学校が分譲地の目の前!
そして断熱材や制震もバッチリなお家です

サンユー都市開発の
スマートエコステージ枚方翠香園
コチラの分譲地にある2つのモデルハウス
区画は全部で27区画。

今回はピンクで色を付けた23号地と24号地のモデルハウスをご紹介します!
今回スマートエコステージ枚方翠香園を案内してくれるのは、

前回の記事に引き続き、サンユー都市開発お客様窓口の中山さん。
特技はカンフー
今回ご紹介するのはスマートエコステージ枚方翠香園の2つのモデルハウスです。
なによりの特徴が、コチラの分譲地、目の前に小学校があるんです!

徒歩1分のところに枚方市立蹉跎(さだ)東小学校があります!
目の前が小学校だと、登下校も安心
ではでは今回のモデルハウスはどんなおウチなのか、さっそく見せてもらいましょー

まずご紹介するのは24号地のモデルハウス。
そして今回も前回と同様、

中山さんの娘(という設定)のメルちゃんと一緒にお送りします
コチラのおウチは4LDK。
土地面積は125.31㎡と広々したおウチです。

コチラは1階の間取り。
それではおじゃましまーす!

黒が基調の扉が印象的な広々とした玄関。

玄関収納はシューズクローゼットに加え、土間収納も備えてあります。
通販で買った水などわざわざ動かすのって結構大変なので、配達してもらってそのまま収納し、使う時に1本ずつ使えば女性でも楽ちんですね
玄関を上がって、奥の扉を開けると、

そこには約19.25帖のLDKが広がります。
さらに奥にある和室の戸を開けると、約23.75帖の広ーい空間になりますよ。
南側に大きな窓もあるので、明るい光が差し込む中、ご家族でゆったりと過ごせるお部屋になっています

和室側からLDKを見るとこんな感じ。

リビングの頭上には間接照明も設置されているので大人の落ち着いた雰囲気の空間を演出してくれます。
また、道路側の窓は高い位置に設置されているので外の目線も気にならないように配慮されていますよ。

コチラが約4.5帖の和室。
縁の無いモダンなデザインの畳を使用しています。

リビングの横には何かと便利なファミリークローゼットが設けられています。
コートを掛けておいたり、急な来客のときにパパッと片付けられるので重宝しそうですね

キッチンはコチラも黒が基調で落ち着いた雰囲気。
収納もしっかりありますし、もちろん食洗機を完備しているので、忙しいママを支えてくれます。

キッチンのとなりには洗面・バスルーム。
そしてコチラの洗面室にはある特徴が…

廊下側とキッチン側の両方に扉があり、ぐるりと回遊できるようになっているんです。
生活の動線に配慮したママに嬉しいつくりになっています。
では続いては2階をご紹介。

コチラが2階の間取り。

約6.18帖の洋室(左)と約5帖の洋室(右)。

メルちゃんを寝かしつける中山さん。
コチラの2部屋は子供部屋にピッタリですよ!
そしてコチラが約7帖の主寝室 ↓

リビングと同じく間接照明が備え付けられていて、大人な雰囲気の寝室になっています。

主寝室には大容量のウォークインクローゼットを完備。
夫婦の洋服をバッチリ仕舞えるのはもちろん、メルちゃんとかくれんぼだってできますよ!笑

そして何より、主寝室のバルコニーからは蹉跎(さだ)東小学校が丸見え!
学校まで目と鼻の先なので、安心ですね
いかがでしたか?広々LDKに、生活動線まで考えられたコチラのおウチ。
広いリビングで家族でまったり過ごすのもいいですよね〜!
ではでは続けてもう一邸のモデルハウスを見ていきましょう

続いてご紹介するのは23号地のモデルハウス。

コチラのおウチも先ほどと同じく4LDK。駐車スペースは2台停められるようになっています。

コチラが1階の間取り図。
それではさっそくおじゃまします!

コチラは先ほどとは違い、明るい木目調の戸が特徴。

もちろん玄関収納もたっぷり備え付けられていますよ

コチラは約15.25帖のLDKです。
コンパクトに収まった過ごしやすい広さになっています

リビング側から見るとこんな感じ。

子供と一緒にのんびりリラックスして過ごせますよ

コチラは約4.5帖の和室。

キッチンの真横に位置しているので子供の遊び部屋にピッタリ。
ご飯を作りながらでも子供の様子を見守れます。

コチラはキッチン。
食洗機が付いているのはもはや当たり前ですね。

キッチンからはリビング・ダイニングを一望できるので、お料理をしながらでもお子さんの様子をしっかり見守ることができますよ

キッチンの後ろ側には洗面室。

そしてバスルーム。
水回りが一ヶ所にまとめられているので、毎日の家事の負担が少なくてすみます。
家事動線も短くて済むので、子育てもしやすくなっていますよ。
では続いては2階を見ていきましょう。

2階への階段はリビングに設置されているので、家族が毎日必ず顔を合わせるようになっています。

2階の間取り図はコチラ。

約5.4帖の洋室(左)と約5.9帖の洋室(右)

コチラは約7帖の主寝室。
アクセントクロスがオシャレな、夫婦の寝室にピッタリのお部屋になっています。
さらにコチラのバルコニーは、

約5.9帖の洋室とも繋がっています。
メルちゃん待て待て〜!(← 鬼ごっこ中)
いかがでしたか?水回りがまとめられていたり、リビング階段であったり、生活動線に配慮されたおウチでしたね!
どちらのモデルハウスもとっても過ごしやすいおウチでどっちにしようか悩んじゃいますね!
コチラのモデルハウス2邸は家具付きで販売中となっております!!
また、年内入居も可能なので、4月からの新学期に間に合います♪
気になった方はぜひぜひコチラまでお問い合わせくださいねー!
スマートエコステージ枚方翠香園の物件にはまだヒミツがあるんです!
それは…
スマートでエコな暮らしができる家なんです!(ドヤッ)
シュン:そ、そのままじゃないですか…!笑
断熱材や制震ユニットなどを標準装備していて、より快適に過ごせるおウチになっているんです。
おわかりいただけましたか?
快適に生活するための設備がバッチリ整っていますよ
ではここからはスマートエコステージ枚方翠香園の周辺の環境をご紹介します!
▶︎ 枚方市立蹉跎(さだ)東小学校

徒歩わずか1分の目と鼻の先に最寄りの小学校があります。
▶︎ 京阪 光善寺駅

最寄りの光善寺駅までは約1040m。
▶︎ サボイ香里ヶ丘味道館

分譲地から約760mのところにあります。
▶︎ 翠香園ふれあい公園

分譲地から約280mのところにある公園。
以前ひらつーでもシュン@ひらつーが親子で遊んできた公園です。
この他にもスマートエコステージ枚方翠香園のHPで周辺の施設について詳しく紹介されているのでコチラもご覧ください!
スマートエコステージ枚方翠香園への行き方はコチラ

光善寺駅から、香里ヶ丘高校などがある、グリーンバレー通りの方へ進み「蹉跎(さだ)小学校下」の交差点を左折します。

左折してまっすぐ進むと翠香園ふれあい公園に突き当たるので右折します。

そのまま道なりに進み、上記のY字路を左へ進みます。

そのまま矢印のほうへ道なりに進んでいきます。

すると蹉跎(さだ)東小学校が見えてくるので、もうゴール目前。

スマートエコステージ枚方翠香園に到着です!
カーナビで「枚方市翠香園町30-1」と検索してください。
地図だとコチラ

いかがでしたか?
快適さと暮らしやすさ、そして安心と安全が備わったスマートエコステージ枚方翠香園。
気になった方は、ぜひ一度見学しに足を運んでみてくださいねー!
前回の記事で告知させてもらっていた、

9月のけやきマルシェに出店していたサンユー都市開発さん。

オリジナルのエコバッグ作りは子供たちに大人気
途切れることなくず〜っと子供たちであふれていました。

みんな夢中で自分だけのオリジナルバッグを作っていましたよ。
実は先月に続き、10月のけやきマルシェにも出店してくれますよー!
今月はハロウィンということで、オリジナルのお面づくりのワークショップです ♪
■物件概要


サンユー都市開発では、今回ご紹介したスマートエコステージ枚方翠香園以外にも、
パークヒルズ枚方香里ヶ丘、プレミアムアリーナ長尾の計3ヶ所の分譲地を展開しています。
今後もひらつーでドンドンご紹介していく予定なのでお楽しみにー
お問い合わせはコチラまで

前回の記事に引き続き、サンユー都市開発お客様窓口の中山さん。
特技はカンフー
今回ご紹介するのはスマートエコステージ枚方翠香園の2つのモデルハウスです。なによりの特徴が、コチラの分譲地、目の前に小学校があるんです!

徒歩1分のところに枚方市立蹉跎(さだ)東小学校があります!
目の前が小学校だと、登下校も安心
ではでは今回のモデルハウスはどんなおウチなのか、さっそく見せてもらいましょー
生活動線もバッチリ!
広々LDKのおウチ
広々LDKのおウチ

まずご紹介するのは24号地のモデルハウス。
そして今回も前回と同様、

中山さんの娘(という設定)のメルちゃんと一緒にお送りします
コチラのおウチは4LDK。土地面積は125.31㎡と広々したおウチです。

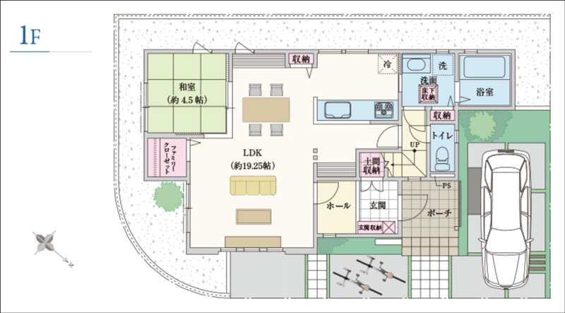
コチラは1階の間取り。
それではおじゃましまーす!

黒が基調の扉が印象的な広々とした玄関。

玄関収納はシューズクローゼットに加え、土間収納も備えてあります。通販で買った水などわざわざ動かすのって結構大変なので、配達してもらってそのまま収納し、使う時に1本ずつ使えば女性でも楽ちんですね
玄関を上がって、奥の扉を開けると、

そこには約19.25帖のLDKが広がります。
さらに奥にある和室の戸を開けると、約23.75帖の広ーい空間になりますよ。南側に大きな窓もあるので、明るい光が差し込む中、ご家族でゆったりと過ごせるお部屋になっています

和室側からLDKを見るとこんな感じ。

リビングの頭上には間接照明も設置されているので大人の落ち着いた雰囲気の空間を演出してくれます。また、道路側の窓は高い位置に設置されているので外の目線も気にならないように配慮されていますよ。

コチラが約4.5帖の和室。
縁の無いモダンなデザインの畳を使用しています。
リビングの横には何かと便利なファミリークローゼットが設けられています。コートを掛けておいたり、急な来客のときにパパッと片付けられるので重宝しそうですね

キッチンはコチラも黒が基調で落ち着いた雰囲気。収納もしっかりありますし、もちろん食洗機を完備しているので、忙しいママを支えてくれます。

キッチンのとなりには洗面・バスルーム。
そしてコチラの洗面室にはある特徴が…

廊下側とキッチン側の両方に扉があり、ぐるりと回遊できるようになっているんです。生活の動線に配慮したママに嬉しいつくりになっています。
では続いては2階をご紹介。

コチラが2階の間取り。

約6.18帖の洋室(左)と約5帖の洋室(右)。

メルちゃんを寝かしつける中山さん。
コチラの2部屋は子供部屋にピッタリですよ!そしてコチラが約7帖の主寝室 ↓

リビングと同じく間接照明が備え付けられていて、大人な雰囲気の寝室になっています。
主寝室には大容量のウォークインクローゼットを完備。夫婦の洋服をバッチリ仕舞えるのはもちろん、メルちゃんとかくれんぼだってできますよ!笑

そして何より、主寝室のバルコニーからは蹉跎(さだ)東小学校が丸見え!学校まで目と鼻の先なので、安心ですね
いかがでしたか?広々LDKに、生活動線まで考えられたコチラのおウチ。広いリビングで家族でまったり過ごすのもいいですよね〜!
ではでは続けてもう一邸のモデルハウスを見ていきましょう
コンパクトにまとまった
家事も子育てもしやすいおウチ
家事も子育てもしやすいおウチ

続いてご紹介するのは23号地のモデルハウス。

コチラのおウチも先ほどと同じく4LDK。駐車スペースは2台停められるようになっています。
コチラが1階の間取り図。
それではさっそくおじゃまします!

コチラは先ほどとは違い、明るい木目調の戸が特徴。

もちろん玄関収納もたっぷり備え付けられていますよ
コチラは約15.25帖のLDKです。コンパクトに収まった過ごしやすい広さになっています

リビング側から見るとこんな感じ。

子供と一緒にのんびりリラックスして過ごせますよ
コチラは約4.5帖の和室。

キッチンの真横に位置しているので子供の遊び部屋にピッタリ。ご飯を作りながらでも子供の様子を見守れます。

コチラはキッチン。
食洗機が付いているのはもはや当たり前ですね。

キッチンからはリビング・ダイニングを一望できるので、お料理をしながらでもお子さんの様子をしっかり見守ることができますよ
キッチンの後ろ側には洗面室。

そしてバスルーム。
水回りが一ヶ所にまとめられているので、毎日の家事の負担が少なくてすみます。家事動線も短くて済むので、子育てもしやすくなっていますよ。
では続いては2階を見ていきましょう。

2階への階段はリビングに設置されているので、家族が毎日必ず顔を合わせるようになっています。
2階の間取り図はコチラ。

約5.4帖の洋室(左)と約5.9帖の洋室(右)

コチラは約7帖の主寝室。
アクセントクロスがオシャレな、夫婦の寝室にピッタリのお部屋になっています。さらにコチラのバルコニーは、

約5.9帖の洋室とも繋がっています。メルちゃん待て待て〜!(← 鬼ごっこ中)
いかがでしたか?水回りがまとめられていたり、リビング階段であったり、生活動線に配慮されたおウチでしたね!どちらのモデルハウスもとっても過ごしやすいおウチでどっちにしようか悩んじゃいますね!
コチラのモデルハウス2邸は家具付きで販売中となっております!!
また、年内入居も可能なので、4月からの新学期に間に合います♪
気になった方はぜひぜひコチラまでお問い合わせくださいねー!
快適に暮らせる設備!
スマートエコステージ枚方翠香園の物件にはまだヒミツがあるんです!それは…
スマートでエコな暮らしができる家なんです!(ドヤッ)
シュン:そ、そのままじゃないですか…!笑
断熱材や制震ユニットなどを標準装備していて、より快適に過ごせるおウチになっているんです。1、高性能グラスウール断熱材「Aclear(アクリア)」を使用。

2、床部分には耐熱性・耐火性に優れた断熱材「フェノールフォーム」を使用。

3、地震の揺れを最大70%吸収する制震ユニット「MIRAIE(ミライエ)」を標準装備。

4、環境配慮・省エネルギーの「Low-E複層ガラス」を採用。

5、太陽光発電などでエネルギーを創り、蓄電池や高断熱化によって消費エネルギーを減らす「ZEH(ゼッチ)」に対応。(オプション)


2、床部分には耐熱性・耐火性に優れた断熱材「フェノールフォーム」を使用。

3、地震の揺れを最大70%吸収する制震ユニット「MIRAIE(ミライエ)」を標準装備。

4、環境配慮・省エネルギーの「Low-E複層ガラス」を採用。

5、太陽光発電などでエネルギーを創り、蓄電池や高断熱化によって消費エネルギーを減らす「ZEH(ゼッチ)」に対応。(オプション)

おわかりいただけましたか?快適に生活するための設備がバッチリ整っていますよ
家のまわりはどんな感じ?
ではここからはスマートエコステージ枚方翠香園の周辺の環境をご紹介します!
▶︎ 枚方市立蹉跎(さだ)東小学校

徒歩わずか1分の目と鼻の先に最寄りの小学校があります。
▶︎ 京阪 光善寺駅

最寄りの光善寺駅までは約1040m。
▶︎ サボイ香里ヶ丘味道館

分譲地から約760mのところにあります。
▶︎ 翠香園ふれあい公園

分譲地から約280mのところにある公園。
以前ひらつーでもシュン@ひらつーが親子で遊んできた公園です。
この他にもスマートエコステージ枚方翠香園のHPで周辺の施設について詳しく紹介されているのでコチラもご覧ください!
どうやって行くの?
スマートエコステージ枚方翠香園への行き方はコチラ

光善寺駅から、香里ヶ丘高校などがある、グリーンバレー通りの方へ進み「蹉跎(さだ)小学校下」の交差点を左折します。

左折してまっすぐ進むと翠香園ふれあい公園に突き当たるので右折します。

そのまま道なりに進み、上記のY字路を左へ進みます。

そのまま矢印のほうへ道なりに進んでいきます。

すると蹉跎(さだ)東小学校が見えてくるので、もうゴール目前。

スマートエコステージ枚方翠香園に到着です!
カーナビで「枚方市翠香園町30-1」と検索してください。
地図だとコチラ

いかがでしたか?
快適さと暮らしやすさ、そして安心と安全が備わったスマートエコステージ枚方翠香園。
気になった方は、ぜひ一度見学しに足を運んでみてくださいねー!
けやきマルシェの様子
前回の記事で告知させてもらっていた、

9月のけやきマルシェに出店していたサンユー都市開発さん。

オリジナルのエコバッグ作りは子供たちに大人気
途切れることなくず〜っと子供たちであふれていました。

みんな夢中で自分だけのオリジナルバッグを作っていましたよ。
実は先月に続き、10月のけやきマルシェにも出店してくれますよー!
今月はハロウィンということで、オリジナルのお面づくりのワークショップです ♪
〜おもしろ!ジャックオランタンお面をつくろう!〜
*作業時間:15分~20分程度
*参加費:無料
*対象年齢:未就学児〜中学生まで
オリジナル仮装グッズを作ろう!自分だけのジャックオランタンお面を完成させてみてくださいね♪カボチャの写真カードを切り抜いて、いろいろなパーツを貼り付けたり穴をあけたりしてデコレーション!オリジナルのおもしろ!ジャックオランタンをつくろう!
ぜひぜひけやきマルシェにも足を運んでくださいねー!


サンユー都市開発では、今回ご紹介したスマートエコステージ枚方翠香園以外にも、
パークヒルズ枚方香里ヶ丘、プレミアムアリーナ長尾の計3ヶ所の分譲地を展開しています。
今後もひらつーでドンドンご紹介していく予定なのでお楽しみにー
お問い合わせはコチラまで
「ひらつーで"スマートエコステージ枚方翠香園"の記事を見た」とお伝えいただくと話が早いと思います!
----------
【ひらつーパートナーズ】【ひらつー不動産】についてのお問い合わせはこちらから!
カテゴリ : ひらつー不動産(分譲) ひらつー不動産(戸建て)
コメント投稿欄閉鎖のお知らせ









