浴室にミストサウナが付いてて「あったかいんだからぁ〜♪」春は桜、秋はコスモスがすぐそこにある家。レオグランデコージー【ひらつー不動産】
こんにちは
枝豆は大豆の未成熟なものだということを、最近カズマ@ひらつーに教えられて初めて知りました、ふろ@ひらつーです。
今回のひらつー不動産は、そんなおいしい枝豆の中でも、黒枝豆が収穫できる枚方市宗谷にある高橋開発株式会社さんのモデルハウス
全22区画の分譲地
1,990万円から買える
レオグランデコージー
のご紹介です

▶レオグランデコージー 公式サイト

枝豆は大豆の未成熟なものだということを、最近カズマ@ひらつーに教えられて初めて知りました、ふろ@ひらつーです。
今回のひらつー不動産は、そんなおいしい枝豆の中でも、黒枝豆が収穫できる枚方市宗谷にある高橋開発株式会社さんのモデルハウス
全22区画の分譲地
1,990万円から買える
レオグランデコージー
のご紹介です

▶レオグランデコージー 公式サイト
地図ではこちら

JR学研都市線「津田」駅からアルプラザ枚方店のある国道307号線を進み、穂谷方面へ向かいます。

関西外国語大学、学研都市キャンパスのすぐ近くにある京阪バス「穂谷口」下車徒歩5分。

セブンイレブンやローソンが左手に見えてすぐのところ。

「枚方東消防署氷室出張所」の手前の道を入ってちょうど出張所の裏手にあるのが・・・
こちら。レオグランデコージーです
レオグランデコージーの最大の魅力は、30坪を越える全22区画の土地付き一戸建てが、なんと1,990万円〜買えちゃうんです
どのようなお家になっているのでしょうか!
今日はその中から、モデルハウスと建売住宅をご紹介したいと思います
まずはこちら

玄関側から。

裏手にガレージ2台分完備。

お邪魔しまーす
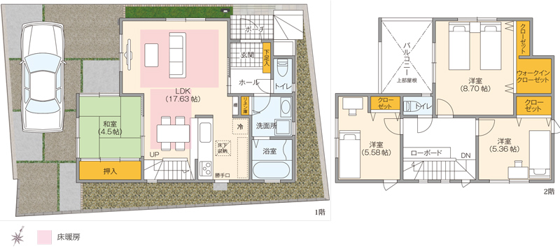
12号地の【間取り】はこちら


右側にシューズクローゼット。
シューズクローゼットの扉には鏡もついています

背が高いタイプで、ブーツも長靴もたっぷり収納できます。

リビング手前にはお手洗い。
そして、いよいよLDKへ・・・

じゃーーーん!!

右を向くと、くつろぎのリビング

左を向くと、ダイニングとキッチン

どうでしょう!
LDKは17.85帖。
リビングとダイニング部分の2箇所は床暖房となっています
そしてリビングの横にある、3枚の引き戸を開ければ・・・

和室が登場

こちらの和室は4.5帖。
仕切らなくてもLDKの一角として使えそうです。リビングで家族の賑やかな声を聞きながらゴロンと横になって休憩もいいですね
和室からも会話が弾みそう
キッチンは、こちら。

タカラスタンダードのシステムキッチン。


収納力はもちろん、低騒音の食洗機や、ハイパーガラスコートコンロ。
表面がガラス質なので、吹きこぼれも拭き掃除でお手入れ簡単!衝撃にも強いそう

キッチンの後ろにはパントリーもあります!
位置的にリビングからも近くて、洗面所の隣にあるので、食品以外で本や書類なんかを収納してもいいですね
つづいて、このパントリーの隣にあるのが

洗面所とバスルームです。

洗面台の横にはリネン庫。
家族のパジャマやタオル・洗剤もたっぷり収納。

バスルームはこちら。
なんと、ミストサウナなんかも楽しめる機能が付いているんです
ものすごく冷え込む日は、温かいお風呂とミストサウナでポッカポカになりたい
さらにさらに!!

天井についているこのスピーカーから音楽も楽しめるんですよー

この浴室音響システムは、浴室の外でiPodなどの音源機器をつないで、浴室内に装備されたスピーカーにて再生することができます。お風呂でサウナと音楽。セレブ〜
それでは、階段を上って2階へ向かいます。


上がるとすぐに見えるドア3つ。

一番手前はお手洗いです。
そして、お隣のお部屋は主寝室。

こちらは7.66帖。

反対側から見ると、こんな感じ。
向こうに見えているのは、便利な便利な例の収納。

ウォークインクローゼット
我が家には無いというのに、毎回毎回当たり前のようにあります。
しかもこの主寝室、ウォークインクローゼットだけじゃないんです

あそこに見えているのは・・・?

なんとなんと、カウンター付きの2.78帖の書斎

パパの趣味スペースや、ママのメイクアップスペースとしても使えそう
そして、この書斎にはドアがついているので、

こちら側からも入れます。
わざわざベット側から回らなくても直接入れるので、本当に使える作業スペースになりそう
そして、次は洋室へ移動します。

2つの洋室の手前。
気になる両開きの扉があります。

開くと、こんな収納庫となっていました
わずかなスペースも有効に
こんなちょっとしたことで、かなり便利になるものですよね
そして、こちらが右側の洋室。


5.81帖。

お隣の洋室は5.86帖です。

2つの洋室の間は、このように3枚の引き戸で仕切られていて、成長に合わせて部屋をつないでおくことも、区切ることも出来ます。
そして、思春期にはたまーに

パパが「買い物いく?」と話しかけてきたり

ママに突然「何してんの?」と扉をあけられて、慌てて何かを隠したり隠さなかったり(笑)
以上、12号地のほどよくゆったり。そして、嬉しい機能満載なモデルハウスでした
お次はこちら。


ガレージはお家の横にあります。
↓ 間取りはこちら

それでは、さっそく玄関を開けて入ってみましょう!

ドアを開けると、目の前にふろ(@ひらつー)。
もう一度。
ドアを開けると、目の前にふろ(@ひらつー)。

分かったかなぁ〜?
つまり・・・
ドアを開けると、目の前に風呂!

そうなんです
玄関のドアを開けて正面に、洗面所とバスルーム。
なんなら、玄関入ってスライディングしても行けそうです
(洗面所のドアさえ開けていれば)

そんな滑り込み可能なお風呂はこちら。
レオグランデコージーの給湯器は、少ないガス使用量で熱効率のよいエコジョーズなんです
家計にも環境にも嬉しいですね

そして、お手洗いはお風呂の手前にありました。
続いて、LDKはこちら



12号地同様、機能的なキッチンの向こうに見える勝手口を開けると・・・

目の前に桜の木


外大の学研都市キャンパスの通りに面しているので、桜並木になっています。
春が楽しみですね〜


キッチンのカウンターは飾り棚にもなります。

「あちらの方からです」という、”バーで知り合った”ごっこ。
それよりカトゥー@ひらつー、ナイス角度
ナイスフィット

和室はこちら。
収納がとっても広いんです
窓からの採光も明るくて、気持ちいいです
そして、2階へ上がるとホールにこんなスペースが!

これは、ブックシェルフ
家族の本はもちろん、おもちゃや、ランドセル・教科書置き場なんかにも使えそう!

ブックシェルフの正面にあるのは、主寝室。


収納がこれまた広いんです
棚もあるので、かさばるカバンや帽子なんかも十分収納できますね
そして、この19号地ならではのバルコニーがこちら。

なんと屋根付き!

照明付き

バルコニーにわざわざ雨よけの屋根を付けなくても、洗濯物が濡れる心配もありません。
水栓も付いているので、キャンプに使ったテントや寝袋なんかもここで干せてしまえそうです
そのほか、2つの洋室からは


桜並木が眺められるようになっています。

夏には葉桜としても楽しめそうですね
最後にご紹介するのはこちらの建売住宅。

7号地です。
↓ 間取りはこちら


玄関を開けると、こちらにも大容量のシューズクローゼット。
LDKはこちら。

7号地はこれまで見たモデルハウスよりも深めなブラウン色。
艶感が際立ってます。

反対側から。

和室はこのようになっています。
引き戸があるので、もちろん仕切れます。

キッチンはこちら。
もちろん先にご紹介したモデルハウス同様、充実した機能はバッチリ
そして、キッチンの向こうには洗面所・バスルームと続いていますが、ちょっと回り道したいと思います。

その入口がこちら。リビングの大きな窓の横にある引き戸。

入ってみると、左側面にこんな大きな収納庫。
私なら下の方に、扇風機や加湿器などの季節もので重い物を入れておきたい!
ファンヒーターなんかも収納しておきたい!!
そして、この収納庫の前のドアを開けると、

洗面所があります。

洗面台の正面には、たっぷり入るリネン庫。
そして、正面に見える扉の向こうが、先ほどご紹介したキッチンとなっているので、洗面所への入り口は先ほどの収納庫側と合わせて2箇所ということです

そして、こちらがバスルーム。
ダークブラウンの壁が目を惹きます。高級感もありますね〜
続いて、2階へ上がってみます


2階には、洋室が2つ・主寝室・お手洗いがあります。

左手前の洋室。

お隣は主寝室。

収納もたっぷり。片方に季節の布団や、客布団なんかも収納していけそう。

こちらのバルコニー。

圧迫感がなくて、気持ちよく布団も干せそうです
そして、この主寝室の前にあるのが、

両開きの収納と、引き戸になっているお手洗い。
そして、一番奥にある洋室へ入ってみると・・・

ちょっと、通路になっている。通称「壁ドン」に最適通路
右側には大きなクローゼット収納があります。
(※壁ドンとは・・・男性が女性を壁際に追い詰めて手を壁にドンと突く行為の名称で2014年ユーキャン新語・流行語大賞のトップテンに選ばれました。)

入って振り返ってみると、こんな感じの収納。
すごい!主寝室並みのクローゼット

こちらも主寝室として使えそう!
子ども部屋にするには勿体無いくらいです

こちらの部屋にも小さめなバルコニーがありました
以上、宗谷にあるレオグランデコージーのモデルハウスと建売住宅をご紹介しましたが、いかがでしたか?
ここから車で数分、徒歩でも十分行ける距離に、10月に収穫祭で賑わうコスモス畑があります。
【枚方フォト】にも、毎年コスモス畑の開花をたくさんご投稿いただいていますが、本当にキレイです。
実は、収穫祭にはふろ@ひらつーも何度も行っていて、めっちゃおいしい黒枝豆をたくさん収穫しに行っていますよ〜

子どもたちも毎年楽しみにしている行事です
春には桜、秋にはコスモス。四季を楽しめる自然に囲まれながらの生活に憧れの方。自然もほしいけど、充実した機能も欲しいというちょっと欲張りな方。ミストサウナと音響設備のあるお風呂で気持ちよく「あったかいんだからぁ♪」と熱唱してみたい方!是非お問い合わせ下さい
▶スタッフさんからのメッセージ
■物件概要

072-808-4000
営業時間/AM10:00〜PM8:00(毎週水曜日定休)
「ひらつーで"レオグランデコージー"のモデルハウスの記事を見た」とお伝えいただくと話が早いと思います!
(すでに販売が終了している場合もありますのでご了承ください)
■「レオグランデコージー」公式サイト
■ 高橋開発株式会社 公式サイト
----------
【ひらつー不動産】についてのお問い合わせはこちらから!

JR学研都市線「津田」駅からアルプラザ枚方店のある国道307号線を進み、穂谷方面へ向かいます。

関西外国語大学、学研都市キャンパスのすぐ近くにある京阪バス「穂谷口」下車徒歩5分。

セブンイレブンやローソンが左手に見えてすぐのところ。

「枚方東消防署氷室出張所」の手前の道を入ってちょうど出張所の裏手にあるのが・・・

こちら。レオグランデコージーです
レオグランデコージーの最大の魅力は、30坪を越える全22区画の土地付き一戸建てが、なんと1,990万円〜買えちゃうんです

どのようなお家になっているのでしょうか!
今日はその中から、モデルハウスと建売住宅をご紹介したいと思います
まずはこちら
12号地 4LDK+ガレージ2台付(30.52坪)

玄関側から。

裏手にガレージ2台分完備。

お邪魔しまーす

12号地の【間取り】はこちら


右側にシューズクローゼット。
シューズクローゼットの扉には鏡もついています


背が高いタイプで、ブーツも長靴もたっぷり収納できます。

リビング手前にはお手洗い。
そして、いよいよLDKへ・・・


じゃーーーん!!

右を向くと、くつろぎのリビング

左を向くと、ダイニングとキッチン

どうでしょう!
LDKは17.85帖。
リビングとダイニング部分の2箇所は床暖房となっています
そしてリビングの横にある、3枚の引き戸を開ければ・・・

和室が登場

こちらの和室は4.5帖。
仕切らなくてもLDKの一角として使えそうです。リビングで家族の賑やかな声を聞きながらゴロンと横になって休憩もいいですね
和室からも会話が弾みそう
キッチンは、こちら。

タカラスタンダードのシステムキッチン。


収納力はもちろん、低騒音の食洗機や、ハイパーガラスコートコンロ。
表面がガラス質なので、吹きこぼれも拭き掃除でお手入れ簡単!衝撃にも強いそう


キッチンの後ろにはパントリーもあります!
位置的にリビングからも近くて、洗面所の隣にあるので、食品以外で本や書類なんかを収納してもいいですね
つづいて、このパントリーの隣にあるのが

洗面所とバスルームです。

洗面台の横にはリネン庫。
家族のパジャマやタオル・洗剤もたっぷり収納。

バスルームはこちら。
なんと、ミストサウナなんかも楽しめる機能が付いているんです
ものすごく冷え込む日は、温かいお風呂とミストサウナでポッカポカになりたい
さらにさらに!!

天井についているこのスピーカーから音楽も楽しめるんですよー


この浴室音響システムは、浴室の外でiPodなどの音源機器をつないで、浴室内に装備されたスピーカーにて再生することができます。お風呂でサウナと音楽。セレブ〜

それでは、階段を上って2階へ向かいます。


上がるとすぐに見えるドア3つ。

一番手前はお手洗いです。
そして、お隣のお部屋は主寝室。

こちらは7.66帖。

反対側から見ると、こんな感じ。
向こうに見えているのは、便利な便利な例の収納。

ウォークインクローゼット
我が家には無いというのに、毎回毎回当たり前のようにあります。
しかもこの主寝室、ウォークインクローゼットだけじゃないんです


あそこに見えているのは・・・?

なんとなんと、カウンター付きの2.78帖の書斎
パパの趣味スペースや、ママのメイクアップスペースとしても使えそう
そして、この書斎にはドアがついているので、

こちら側からも入れます。
わざわざベット側から回らなくても直接入れるので、本当に使える作業スペースになりそう

そして、次は洋室へ移動します。

2つの洋室の手前。
気になる両開きの扉があります。

開くと、こんな収納庫となっていました

わずかなスペースも有効に
こんなちょっとしたことで、かなり便利になるものですよね
そして、こちらが右側の洋室。


5.81帖。

お隣の洋室は5.86帖です。

2つの洋室の間は、このように3枚の引き戸で仕切られていて、成長に合わせて部屋をつないでおくことも、区切ることも出来ます。
そして、思春期にはたまーに

パパが「買い物いく?」と話しかけてきたり

ママに突然「何してんの?」と扉をあけられて、慌てて何かを隠したり隠さなかったり(笑)
以上、12号地のほどよくゆったり。そして、嬉しい機能満載なモデルハウスでした

お次はこちら。
19号地 4LDK+ガレージ2台付


ガレージはお家の横にあります。
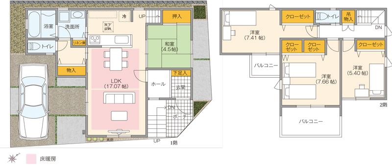
↓ 間取りはこちら

それでは、さっそく玄関を開けて入ってみましょう!

ドアを開けると、目の前にふろ(@ひらつー)。
もう一度。
ドアを開けると、目の前にふろ(@ひらつー)。

分かったかなぁ〜?
つまり・・・
ドアを開けると、目の前に風呂!

そうなんです

玄関のドアを開けて正面に、洗面所とバスルーム。
なんなら、玄関入ってスライディングしても行けそうです
(洗面所のドアさえ開けていれば)
そんな滑り込み可能なお風呂はこちら。
レオグランデコージーの給湯器は、少ないガス使用量で熱効率のよいエコジョーズなんです
家計にも環境にも嬉しいですね

そして、お手洗いはお風呂の手前にありました。
続いて、LDKはこちら



12号地同様、機能的なキッチンの向こうに見える勝手口を開けると・・・

目の前に桜の木
外大の学研都市キャンパスの通りに面しているので、桜並木になっています。
春が楽しみですね〜

キッチンのカウンターは飾り棚にもなります。

「あちらの方からです」という、”バーで知り合った”ごっこ。
それよりカトゥー@ひらつー、ナイス角度
ナイスフィット

和室はこちら。
収納がとっても広いんです

そして、2階へ上がるとホールにこんなスペースが!

これは、ブックシェルフ

家族の本はもちろん、おもちゃや、ランドセル・教科書置き場なんかにも使えそう!

ブックシェルフの正面にあるのは、主寝室。


収納がこれまた広いんです

棚もあるので、かさばるカバンや帽子なんかも十分収納できますね

そして、この19号地ならではのバルコニーがこちら。

なんと屋根付き!

照明付き


バルコニーにわざわざ雨よけの屋根を付けなくても、洗濯物が濡れる心配もありません。
水栓も付いているので、キャンプに使ったテントや寝袋なんかもここで干せてしまえそうです

そのほか、2つの洋室からは


桜並木が眺められるようになっています。

夏には葉桜としても楽しめそうですね
最後にご紹介するのはこちらの建売住宅。
7号地 4LDK+ガレージ2台

7号地です。
↓ 間取りはこちら


玄関を開けると、こちらにも大容量のシューズクローゼット。
LDKはこちら。

7号地はこれまで見たモデルハウスよりも深めなブラウン色。
艶感が際立ってます。

反対側から。

和室はこのようになっています。
引き戸があるので、もちろん仕切れます。

キッチンはこちら。
もちろん先にご紹介したモデルハウス同様、充実した機能はバッチリ

そして、キッチンの向こうには洗面所・バスルームと続いていますが、ちょっと回り道したいと思います。

その入口がこちら。リビングの大きな窓の横にある引き戸。

入ってみると、左側面にこんな大きな収納庫。
私なら下の方に、扇風機や加湿器などの季節もので重い物を入れておきたい!
ファンヒーターなんかも収納しておきたい!!
そして、この収納庫の前のドアを開けると、

洗面所があります。

洗面台の正面には、たっぷり入るリネン庫。
そして、正面に見える扉の向こうが、先ほどご紹介したキッチンとなっているので、洗面所への入り口は先ほどの収納庫側と合わせて2箇所ということです

そして、こちらがバスルーム。
ダークブラウンの壁が目を惹きます。高級感もありますね〜
続いて、2階へ上がってみます



2階には、洋室が2つ・主寝室・お手洗いがあります。

左手前の洋室。

お隣は主寝室。

収納もたっぷり。片方に季節の布団や、客布団なんかも収納していけそう。

こちらのバルコニー。

圧迫感がなくて、気持ちよく布団も干せそうです

そして、この主寝室の前にあるのが、

両開きの収納と、引き戸になっているお手洗い。
そして、一番奥にある洋室へ入ってみると・・・

ちょっと、通路になっている。通称「壁ドン」に最適通路
右側には大きなクローゼット収納があります。
(※壁ドンとは・・・男性が女性を壁際に追い詰めて手を壁にドンと突く行為の名称で2014年ユーキャン新語・流行語大賞のトップテンに選ばれました。)

入って振り返ってみると、こんな感じの収納。
すごい!主寝室並みのクローゼット

こちらも主寝室として使えそう!
子ども部屋にするには勿体無いくらいです


こちらの部屋にも小さめなバルコニーがありました

以上、宗谷にあるレオグランデコージーのモデルハウスと建売住宅をご紹介しましたが、いかがでしたか?
ここから車で数分、徒歩でも十分行ける距離に、10月に収穫祭で賑わうコスモス畑があります。
【枚方フォト】にも、毎年コスモス畑の開花をたくさんご投稿いただいていますが、本当にキレイです。
実は、収穫祭にはふろ@ひらつーも何度も行っていて、めっちゃおいしい黒枝豆をたくさん収穫しに行っていますよ〜


子どもたちも毎年楽しみにしている行事です

春には桜、秋にはコスモス。四季を楽しめる自然に囲まれながらの生活に憧れの方。自然もほしいけど、充実した機能も欲しいというちょっと欲張りな方。ミストサウナと音響設備のあるお風呂で気持ちよく「あったかいんだからぁ♪」と熱唱してみたい方!是非お問い合わせ下さい

▶スタッフさんからのメッセージ
枚方市宗谷にあるレオグランデコージーは、建売住宅が多いので、
様々なタイプの間取りを実際にご覧いただく事が出来ます。
さらに、こちらの分譲地の一番の特徴は価格の安さです!!
全区画30坪超え、土地+建物で1,990万円から!!
もちろん床暖房・食洗器・エコジョーズ・長期優良住宅仕様などなど
標準設備も充実しています(^-^)
また、現地を見て頂ければわかりますが、すでに建っている住宅が多いので
街並も分かりやすくなっております。
即入居可能な物件も多数ございますので、ご興味のある方や
お早目の引っ越し、3月末までのご入居をお考えの方などは
ぜひレオグランデコージーを一度ご見学へいらして下さいませ☆
スタッフ一同、お待ちしております。
※現地にスタッフ不在の場合がございます。
お手数ですが、事前に販売センターまでご連絡下さいますようよろしくお願い致します。 ■物件概要
| 名称 | レオグランデコージー |
| 所在地 | 枚方市山田池東町1831番1、他 大阪府枚方市宗谷1丁目1034他 |
| 交通 | JR学研都市線「津田」駅からバスで約22分「穂谷口」下車 「穂谷口」バス停より徒歩約5分 |
| 総区画数 | 22区画 |
| 開発総面積 | 3455.96㎡ |
| 用途地域 | 第一種中高層住居専用地域/第二種中高層住居専用地域 |
| 地域・地区 | 第二種高度地区/宅地造成等規制法/防砂法/準防火地域 |
| 地目 | 宅地 |
| 敷地面積 | 100.01㎡〜118.58㎡ |
| 建ぺい率 | 60% |
| 容積率 | 200% |
| 道路幅員 | 4.3m〜5.7m |
| 私道負担 | なし |
| 開発許可番号 | 枚方市指令 都査第121-49号 |
| 宅地造成許可番号 | 枚方市指令 都査第126-16号 |
| 設備 | 電気(関西電力)、ガス(大阪ガス)、水道(公営水道)、汚水・雨水(公共下水) |
| 売主 | 高橋開発株式会社 〒573-1171 大阪府枚方市三栗1丁目1番24号 TEL072−840−5000 |
| 宅地建物取引業免許番号 | 84区画 大阪都事(10)20196号建設業許可番号/大阪都事(般-23)50658号 一般社団法人 全国住宅産業協会、(社)全日本不動産協会会員、(社)不動産保証協会会員 |
営業時間/AM10:00〜PM8:00(毎週水曜日定休)
「ひらつーで"レオグランデコージー"のモデルハウスの記事を見た」とお伝えいただくと話が早いと思います!
(すでに販売が終了している場合もありますのでご了承ください)
■「レオグランデコージー」公式サイト
■ 高橋開発株式会社 公式サイト
----------
【ひらつー不動産】についてのお問い合わせはこちらから!
(ふろ@ひらつー)
カテゴリ : ひらつー不動産(分譲) ひらつー不動産(戸建て)
コメント投稿欄閉鎖のお知らせ







