今回紹介するのは、茄子作に新たに誕生したミハマホーム株式会社さんの新築土地付き一戸建て住宅「プラリア枚方南」![]()
↓地図ではここ
ひらつー不動産マップで見る

左に見えてる緑・白・黄のミハマホームのノボリが立ってるところが「プラリア枚方南」。
あっちに行くと、春日小学校や府道18号線のカーテンじゅうたん王国のところに出ます。
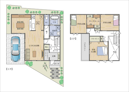
▶モデルハウス2号地(4LDK)
完成間もないモデルハウスを紹介します!
こちら!
今回からひらつー不動産では新たなカメラレンズを導入したので、お部屋全体のイメージがよりつかみやすくなるはず!…です(笑)
この玄関を新レンズで撮影すると…
こんな感じです。少し丸みを帯びてしまいますが、全体の様子がしっかり見えます。

ダイニング横には何かと便利なカウンターが。宿題を広げっぱなしでゴハンが食べれます。

収納スペースのあるちょっとした廊下が。
この収納と向かい合わせにあるのが…

実はこの洗面室、玄関側の廊下からも入れるんです!
汗だくドロドロになって帰ってきても、直接お風呂へGOできます。

ミハマホームが採用している制震構造「ジーバ」も確認できますよ。

階段を上がるとこんな感じ。
左右に1部屋ずつ、奥に1部屋あります。

クローゼットかと思いきや、こんな勉強スペースまで確保されています。

しかも2人分。遊び部屋と分かれていて集中できそうな空間です。

そしてなんと奥の洋室とつながっています!兄妹で別々の部屋もありながら、共同スペースもあるという、楽しい造りになっています。

2つの洋室の位置関係はこう。奥の洋室へは廊下側からももちろん行けます。
▶周辺環境も充実!天然温泉も徒歩圏内!
目の前には小学校、郵便局、病院があり、府道18号線・148号線に出れば飲食店やお店がいっぱい!(→詳しくはコチラ)

天然温泉、東香里湯元「水春」も1km圏内にあります。特別な時じゃなくても気軽に行ける距離!
▶営業担当さんからのメッセージ
分譲地の前に春日小学校、郵便局、スーパー、バス停が揃っており生活しやすい立地となっており価格は2,835万円~となっております。
現地には見どころが多いモデルハウスも出来上がっておりますので是非、ご見学にいらしてください。心よりお待ちしております。
参考までに、実際に御浜住宅さんで家を建てられた方の声もチェックしてみてください![]()
■物件概要
| 所在地 | 枚方市茄子作3丁目866-1他 |
| 交通 | 京阪本線『香里園』駅 バス約15分 バス停『野口』より徒歩1分 JR学研都市線『星田』駅 バス約10分 バス停『野口』より徒歩1分 |
| 地域・地区 | 第1種・第2種中高層住居専用地域 |
| 地目 | 宅地 |
| 建ペイ率 | 60% |
| 容積率 | 200% |
| 私道負担 | なし |
| 道路幅員 | 5.0m |
| 総区画数 | 11区画 |
| 販売区画数 | 11区画 |
| 土地面積 | 約95.83㎡ ~ 約101.63㎡ |
| 建物 | 木造スレート葺2階建て |
| 価格 | 2,835万円~ |
| 設備 | 関西電力・枚方市上水道・公共下水・都市ガス |
| 事業主(売主) | 御浜住宅株式会社 |
| 販売代理 | ミハマホーム株式会社 |
| 備考 | – |
この物件についてのお問い合わせは御浜住宅株式会社/ミハマホーム株式会社へ!
![]()
072-868-0036
「ひらつーでプラリア枚方南の記事を見た」とお伝えいただくと話が早いと思います!
(※すでに販売が終了している場合もありますのでご了承ください)
■「プラリア枚方南」公式サイト
———-
【ひらつーパートナーズ】【ひらつー不動産】についてのお問い合わせはこちらから!









































