雑誌に載ってるようなオシャレな家にうちもなる!新築そっくりさんのリフォーム実例ビフォーアフターを見て妄想モワモワ〜その3【ひらつー不動産】
おはようございます、おさや@ひらつーです!
住友不動産新築そっくりさんのバツグン実例で妄想モワモワ〜シリーズも、早くも第3弾です(*゚∀゚)っ
今回もひらつースタッフが登場してちょいちょい妄想を挟んでいきます
今回は、ばばっち@ひらつー&おさや@ひらつー(=゚ω゚)人(゚ω゚=)ぃょぅ!
ー3月某日、今日も平和なひらつー事務所。

ですが、ばばっちが何か気になっている様子・・・

うーーーーん・・・・
ばばっちの視線の先にはおさや。

ばばっち:ずっと気になっててんけど、おさやの机モノ多すぎちゃうー?
住友不動産新築そっくりさんのバツグン実例で妄想モワモワ〜シリーズも、早くも第3弾です(*゚∀゚)っ
今回もひらつースタッフが登場してちょいちょい妄想を挟んでいきます
今回は、ばばっち@ひらつー&おさや@ひらつー(=゚ω゚)人(゚ω゚=)ぃょぅ!
ー3月某日、今日も平和なひらつー事務所。

ですが、ばばっちが何か気になっている様子・・・

うーーーーん・・・・
ばばっちの視線の先にはおさや。

ばばっち:ずっと気になっててんけど、おさやの机モノ多すぎちゃうー?

ばばっち:ほんでその左側にいっぱい立てて隠し持ってる本なに〜?

おさや:え?そんな気になる??(スクっ)
昔から古い建物とか変わった建物とかに興味あってんけど、ひらつー入ってからますます不動産に興味がわき出して、ついつい、こういうのおしゃれ〜な雑誌を見つけたら買ってまうんですよねぇー・・・
ばばっち心の声:(やはり、サブカル系こじらせ女子だったな)

ほんの一部よ

いやぁ〜、もうねぇ、オシャレな素敵物件のこと考えたら妄想がとまらない!!ニヤニヤ

ばばっち:でもおさや、妄想だけではオシャレな家に住めへんで
おさや:・・・
そんなあなたの選択肢の一つとして加えていただけたらと思うのが、住友不動産の新築そっくりさんのリフォームです!

と、ここで唐突に現れたのはいつも登場していただいてる住友不動産の武田さん。
今日もよろしくお願いします!
武田さん:それでは今回は、
「都市型住宅〜限られたスペースを有効活用」
をテーマに、「和風・デザイン」にしぼって2軒ご紹介します!
今回も学び要素をはさんでいきますよ
事例1、『城下町をイメージして焼き板を貼り、壁を櫛引き』
BEFORE 和室が並んでいて使いにくい間取り

おさや:うちの近所にも似てる家あるなー・・・っていうか私も昔何年かこんな感じの細長くてほぼ和室の家に住んでたことがありました。絶妙に不便な間取りなんですよね〜
武田さん:さてこの物件がどう変わるのか・・・!?
きっと驚きますよー!
AFTER 明るい2階にLDKを移して快適空間
どーん

おさや:「BRUTUSリノベーション特集号(仮)」に載ってそうな、まさに憧れデザイン!!
武田さん:でしょう?
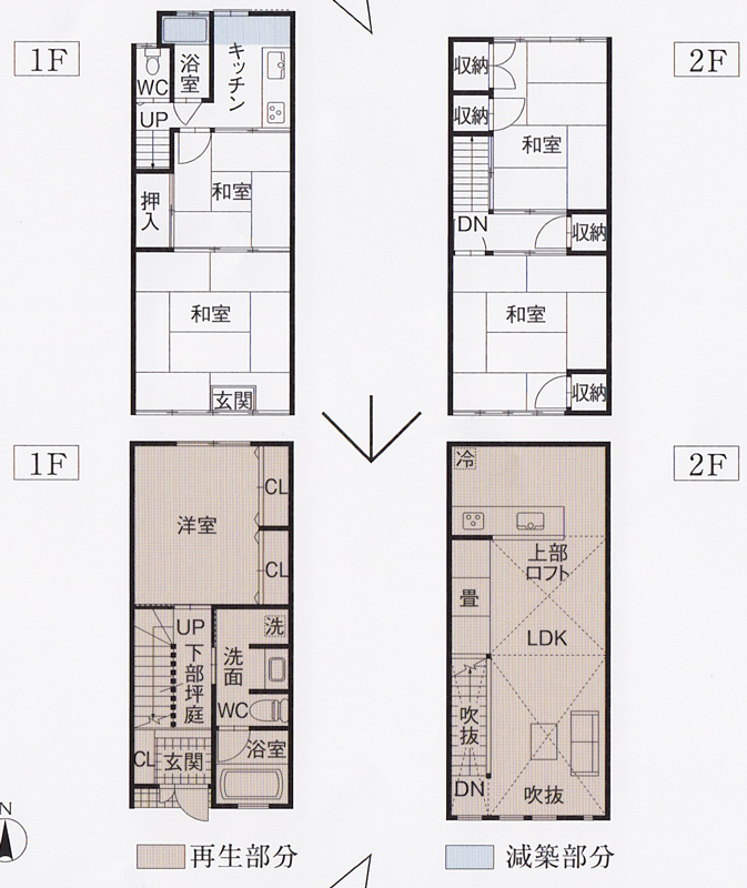
まずは、間取り図から。(※クリックで拡大)

武田さん:北側の土地を売却して減築し、東側を増築する大規模な再生となりました。
家主さんのご希望が「故郷の城下町を感じさせる外観」!
ということで、増築部分に焼き板を貼り、他の部分は左官工事で櫛引上げに。屋根は切妻から片流れに架け替えました。
ばばっち:え?え?え?なになに??
さっそくわからん!!
左官工事って?
櫛引上げって?
切妻から片流れって?
何のことやぁー!!??
おさや:武田さん、素人の私たちに専門用語レンパツは厳しいですー
まだ外観しか見てへんけど(笑)いつものアレ、お願いします!
建物の壁や床、土塀などをこてを使って塗り、仕上げる職種のこと。

左官工事の壁仕上げの種類の一つで、櫛で引いて模様を付けたものを言います。
モルタルや漆喰等が半乾きの間に、櫛形の定規でなぞって筋目を付けた左官の仕上げ方のことです。
コンクリートで仕上げた傾斜路などに、滑り止めとして施工されることもあります。

下は「屋根の形」のことです!

武田さん:わかっていただけました?早速息切れさせてくれますねぇ
おさや:いやいや、我々ド素人は専門用語なんて全然わかってないんですよ〜!(笑)
お手柔らかにお願いしまーす!

どれどれ〜?
それではお待ちかね、内装のご紹介〜!

キッチンを1階から2階に移して、大空間のLDKを実現!
白が基調で清潔感がありますね。外からの光がたくさん入るように工夫されています。

す・て・き!!
斜めのラインが広く、奥行きを感じさせるバルコニー!あったかい木の色も素敵
おさや:ここでヨガやりたいー!やったことないけどー!

明るく開放的な吹き抜け!フローリングはなんと竹製!高級感がありますね。
琉球畳との組み合わせ方がなんともおしゃれ

おー、おしゃれやん〜♫いいねいいねー!アノ、近所にもよくある雰囲気の古いおうちがこんなに近代的でオシャレなおうちに様変わりするとは!!
ばばっち:ちなみにどんな家が好きなん?
おさや:小さくてかわいらしい家
ばばっち心の声:(意外とありきたり・・・)
〜お客さまの声〜
LDKには琉球畳と掘り炬燵(こたつ)を置いてもらいました。上を見ると吹き抜けにロフトで開放感があります。キッチン横のバルコニーは広くて、扉を全開にすれば、リビングの続きとして使えそうです。
LDKには琉球畳と掘り炬燵(こたつ)を置いてもらいました。上を見ると吹き抜けにロフトで開放感があります。キッチン横のバルコニーは広くて、扉を全開にすれば、リビングの続きとして使えそうです。
武田さん:おうちをまるごと新築そっくりにリフォームしても、建替え費用の50%〜70%で済みます!(当社新築比)
ばばっち:Before写真とは全く想像もつかないくらい素敵なお家やったね〜!こんなんできるなんてビックリ・・・
武田さん:では、次の事例いきますね。次はねー、築年数がもっとすごいんですよ。
事例2、『坪庭、ホテル風の水まわり、デザインにこだわった家』
BEFORE 和室で細かく仕切られた間取り

ばばっち:築年数81年!?めっちゃふるい!!

っていうか・・・

ほこりかなんかわからんけど、いろいろ写り込んで心霊写真みたいになってる!
おさや:ほんまや(笑)
武田さん:ほんまや(笑)
きっと、日当りが悪くて窓も小さくて暗かったんですね。
さてこの物件がどう変わるのか・・・!?
AFTER 吹き抜けのある明るい2階リビング

なななんと(つд⊂)ゴシゴシ!!
かわいぃ〜〜〜オオーw(*゚o゚*)w!!
武田さん:印象的な青に玄関ドア部分のみが白のタイル張り。窓から光を採りいれながら視線よけに縦格子を採用しています。

ばばっち:こんなレストランとかカフェあるよねぇ〜〜。お店みたいでめっちゃかわいい〜〜!
おさや:あるある!!「甘いホットカフェオレにチョコブラウニー」とか、「スパークリングワインにキッシュ」とか出てくる感じ!!
ばばっち:こじんまりした狭い土地を有効的に使って、大満足のクオリティー

ご近所さんたちもこの変わりようはびっくりするな。

なんと、玄関を入ると日本庭園のような黒白の石を敷き詰めた坪庭が登場!粋!!

まずは、間取り図から。(※クリックで拡大)

1階と2階で和室が4部屋もあったこちらのお宅。2階の天井をほぼ吹き抜けにして広〜い空間を創出
洗面所→トイレ→お風呂の取り方がなんともスマート

梁が見える吹き抜けのリビング!

2階はまるごとLDK!なんと写真の右端の畳下部分は床下収納も!

大きな窓と大空間のロフト!

先ほども書きましたが、スペースに全く無駄なし!のお風呂・トイレ・水道!
ばばっち:ホテルみたい〜!
〜お客さまの声〜
憧れだった対面式のオープンキッチン。明るく開放感があり、より使いやすいキッチンになりました。洗面、トイレ、浴室とオープンに並んだホテル風のサニタリーも気に入っています。
憧れだった対面式のオープンキッチン。明るく開放感があり、より使いやすいキッチンになりました。洗面、トイレ、浴室とオープンに並んだホテル風のサニタリーも気に入っています。
武田さん:おうちをまるごと新築そっくりにリフォームしても、建替え費用の50%〜70%で済みます!(当社新築比)
ばばっち:愛しのBRUTUSに載ってたのと比べてどう?
おさや:いやぁ、雑誌に載ってるのって、新築で一から注文住宅でものすごいお金と手間と労力をかけてるから、リフォームでこんなに素敵なのが出来るなんて思いもせんかった〜
ばばっち、決めた。あたし、ここに住む!!
ばばっち&武田さん:いやいや(笑)
Q : 狭小な土地を有効活用するためにはどうすればいいですか?
長年住んでいるうちに生活環境やご家族構成などが建築(購入)当初と変化してしまい、住みづらい家になってしまうことがあります。
限られたスペースをいかに有効活用できるかがポイントになると思います。
2階建て木造住宅の場合は、適正な補強を行ったうえで間取りを変更できる可能性が高いです。
お家のお悩みをお持ちの方はスペース活用のノウハウを持った技術営業担当にお気軽にご相談ください!
おさや:今まで妄想モワモワシリーズで紹介してきたおうちは豪邸が多くて、「庶民の私には…」って思ってしまうところがあったけど(実際にそのようなコメントもいただいてましたね)、でも今回の事例はほんとによくある庶民的なおうちが大変身する!っていう内容やったので、身近に感じました
ばばっち:うちでも新築そっくりさんできるやん!って私も思いました
ー仕事後。

今日もいい事例見れた
建て替えなくても、建て替えよりも割安に、
そして建て替え以上の満足を得られたら…。

〜ビフォーアフター妄想モワモワシリーズ〜
思い切った減築で暮らしやすく!住友不動産「新築そっくりさん」リフォーム実例ビフォーアフターを見て妄想モワモワ〜(その1)
やっぱり、ちょうどいい距離感が大事。住友不動産「新築そっくりさん」リフォーム実例ビフォーアフターを見て妄想モワモワ〜(その2)



実例集は無料でもらえます。
資料のご請求は、こちらから
(※このフォームの「お問い合わせ内容」の部分に、「ひらつー見た」と入力してください。)
★次回は「平屋住宅」がテーマで、
①南欧の田園を感じさせる開放感のある住まい
②安心で快適に暮らせる性能と伝統家屋の味わいを融合
をご紹介したいと思います!お楽しみに!
【お問い合わせ】

0120-093-138受付時間:10:00~18:00
定休日:水曜日
(おさや@ひらつー)
カテゴリ : ひらつー不動産(リフォーム)
コメント投稿欄閉鎖のお知らせ


)






