広い〜!!
ビュイーーン!
パイン@ひらつーが走っているここは、

エヌ・ケイ興産の
全22区画!セラフィーコート京阪寝屋川です!
地図ではこちら↓
どこやねーんっていうと、
この場所は、以前ボウルバロンというボウリング場がありました。バッティングセンター、釣り堀などがあったので知っている人も多いのでは?
ひらつーでも何度か紹介していて、スポーツ練習場と住宅が建設予定と記事にしました。

(ボウリング好きのパイン@ひらつー)
現在、モデルハウスが建設中なので、中はまだ見れません!
が、一足お先に「セラフィーコートシリーズ」と「セラフィーコート京阪寝屋川」についてご紹介していきます。
今回ご紹介する分譲地で、今週末10/20(土),21(日)に見学会が開催されます!
予約不要で見学できます。現地まで直接お越しください。

(セラフィーコートシリーズの街並み)
今回ご紹介するセラフィーコート京阪寝屋川は、エヌ・ケイ興産のセラフィーコートシリーズのひとつです。

セラフィーコートシリーズは高品質で高性能な住宅で、耐震性や断熱性、耐久性などに優れた2×4工法を採用している、エヌ・ケイ興産の人気シリーズ!
今回、ひらつー不動産に初登場!エヌ・ケイ興産の施工事例はこんな感じ。

明るく、白色を基調とした外観、内装が特徴的です。
さっきしれっと出てきた、「2×4工法」って何がいいの?と思ったあなたに2×4工法について少し説明しましょう!ちなみに、「2×4」は『2かける4』じゃなくて『ツーバイフォー』って読みますよ。
①耐震性
2×4工法は、床・壁・天井の6面体で構成されているので、地震の揺れを6面で抑制しながら全体で均一に吸収します。そして、変形・倒壊を防ぎ、水平面でねじれを防止します。
②断熱性
外壁内・天井・床下には断熱性の高いグラスウールを敷き詰め、複層ガラスを使用しています。それにより、断熱性が高まり、省エネ効果を発揮します。
③耐火性
壁構造の2×4工法は、構造材によって火の通り道を遮断する「ファイヤーストップ構造」になっています。
④耐久性
外壁内部にも通気を設け換気機能を高め、高い断熱性が外気の冷気を遮断、また、複層ガラス、24時間換気システムを併用することで、より湿気やカビの発生を抑え、結露や木材の侵食を防ぎ構造品質を維持します。

外からの力をを面で分散・吸収するので、強風に対して優れた抵抗力を発揮します。そして、独自の補強金具「ハリケーンタイ」を70カ所以上に使用し、台風のような極めて強い風でも屋根が吹き上がらない頑丈な構造を実現しました。
2×4工法のセラフィーコートシリーズついてわかっていただけましたか?
②気軽に利用できる広場
遊具やベンチがある国松第9公園ちびっこ老人憩いの広場があります。

(気軽に遊具で遊ぶパイン@ひらつー)
ママ友同士で集まれば気軽に子育て相談ができそうです。
③自然がいっぱい
草木や花のコントラストが街を彩る植栽計画で、美しい景観を目指しています。

それでは、現在建築中のモデルハウスについて、ご紹介しましょう!
ちなみにエヌ・ケイ興産では、フリー・プラン(自由設計)もあります。つまり、理想のお家をプロの設計士と一緒に作ることもできます!

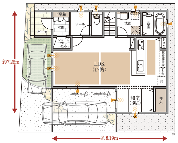
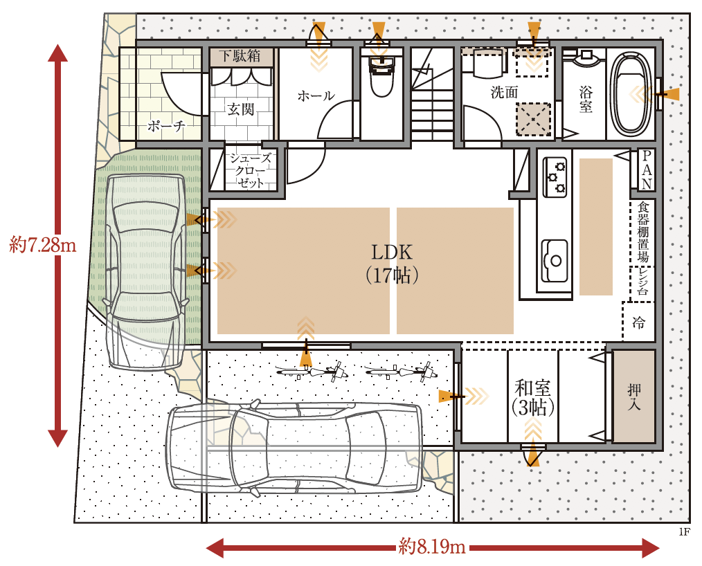
1階がこちら。標準装備で床暖房と浴室暖房乾燥機が付いています。
19帖のLDKに2.8帖の和室が隣接していて、広い空間になっています。

続いて2階。吹き抜けがあるので、明るい廊下になります。
各部屋に大容量のクローゼットがあり、採光も良好です。

1階がこちら。水回りが集約されていて、使いやすい家事動線です。

(お風呂イメージ写真)
続いて2階。全部屋が採光をしっかりとれます。通風も考えられているので、夏場も風が通りそうです。

1階がこちら。こちらも、水回りが集約されていて、使いやすい家事動線です。
そして、来客やちょっとしたお茶会などに使える約3帖の便利な和室があります。

続いて2階。全部屋が2面採光で明るく、主寝室にはウォーキングクローゼットがあります。
1階がこちら。お客さんや洗車にも便利な2台分の駐車スペースが確保されています。
そして、LDKは南側にあり、3面採光なので明るく、和室もあるので家族が自然に集まりそうです。

続いて2階。
各部屋のクローゼットはもちろん、廊下にも収納がある抜群の収納力です。
以上の他にもいくつかのモデルハウスもう直ぐできる予定ですので、完成したらぜひ現地で体感してみてはいかがでしょうか!

セラフィーコート京阪寝屋川は国道170号線から少し入ったところにあります。
最寄駅は京阪寝屋川市駅で約1,500m(徒歩19分)です。平坦な道なので実際に歩いてみると思っていたより近いと感じるのでは。

国道沿いには、インドアのテニス&ゴルフスクール「ラスティ寝屋川」が2019年1月にオープン予定です!徒歩0分で本格的なスポーツ施設を利用できるなんてなかなかない環境!健康的で充実した日々が送れそうですね。
また、近くには大きな公園がたくさんあります。
徒歩4分のところにある国松中池治水公園や、(→地図)

徒歩8分のところにある打上川治水緑地。(→地図)

徒歩34分のところには寝屋川公園も。(→地図)
自転車で巡るのもいいですね。
休日にスポーツなどを楽しむ場所がたくさん!充実した生活が過ごせること間違いなし。
そして、気になる小学校は、
徒歩8分のところにある寝屋川市立国松緑丘小学校。(→地図)

中学校は、徒歩19分のところにある寝屋川市立第六中学校になります。(→地図)
日々のお買い物は、
徒歩17分のところにあるマルシゲや(→地図)

寝屋川市駅前のアドバンス寝屋川1号館(徒歩19分)があります。(→地図)
そして、休日のショッピングには、
ホームセンターやスーパーマーケット、ユニクロなど大型商業施設のビバモール寝屋川(徒歩29分)がオススメです。(→地図)
そして、公園が多く自然豊かな環境。
モデルハウスが完成したらまた改めてご紹介予定です!
今回ご紹介した分譲地で、今週末10/20(土),21(日)に見学会が開催されます!
予約不要で見学できます。現地まで直接お越しください。
物件概要
セラフィーコート京阪寝屋川
| 物件種別 | 建築条件付宅地分譲 |
| 広告区分 | 新規分譲 |
| 価格帯 | 建築条件付土地価格 1,550万円~ |
| 地目 | 宅地 |
| 土地面積 | 95.00㎡~109.12㎡ |
| 建物面積 | 80.00㎡~102.57㎡ |
| 販売戸数・区画数 | 9区画 |
| 総戸数・総区画数 | 22区画 |
| 構造 | 木造スレート葺き2階建て(2×4工法) |
| 建ぺい率 / 容積率 | 建ぺい率60% / 容積率200% |
| 用途地域 | 第一種中高層住居専用地域 |
| 道路付け | ■ |
| 駐車場 | 1~2台 |
| 設備 | 関西電力・公営水道・公共下水 |
| 都市計画 | 市街化区域 |
| 土地権利 | 所有権 |
| 販売予定 | ■ |
| 完成予定 | 契約後4ヵ月 |
| 入居可能時期 | 契約後4ヵ月 |
| 建築確認番号 (開発許可番号) |
■ |
| 取引形態 | 事業主(売主) |
| 施工 | 株式会社エヌ・ケイ興産 |
| 問い合わせ先 | 株式会社エヌ・ケイ興産 0120-2323-12 |
〒572-0081 寝屋川市東香里園町11番27号
0120-2323-12
営業時間:10:00〜17:00(水・年末年始は除く)
「ひらつーで”エヌ・ケイ興産”の記事を見た」とお伝えいただくとスムーズかと思います!
▷お問い合わせ & 見学会予約、資料請求はこちら。
❏エヌ・ケイ興産公式HP
❏エヌ・ケイ興産Facebookページ








