みなさんこんにちは!!
今回はひらつー不動産では初めましてのスマイルホームズさんからスマイルタウン楠葉面取町第Ⅰ期・第Ⅱ期のご紹介です
まず第Ⅰ期2号地モデルハウスから行ってきました

こちらーーー!!!
なんと現役ママさんの女性設計士の方が設計されたお家なんです
主婦目線で作られたお家、早く中が見たーい
まずは場所について。
地図ではここ↓
ひらつー不動産マップで見る
それではお家の外観に戻りまして。

駐車スペースは2台分あります。

土台が少し高くなっているので、家の中が見えにくくなっています。プライバシーも守られていますね
とても素敵な周辺環境だったので、動画で撮ってみました!
竹林が向かいにあってとても落ち着いたロケーションなんです!

では、お邪魔しますー( ´∀`)つガチャ・・・ん?見覚えのある黄色いのがいるぞ??

ぼ、ぼ、ぼしひこーーーーー!!!先に入ってたん?!
ぼしひこくん「なーなーLINEせーへん?今度あそぼうやー
」
おりひめちゃんとの恋を諦めたぼしひこくん。モデルハウスのワンちゃん(多分メス)をナンパ中。
コラコラ
ということで、今回ぼしひこくんも一緒にご紹介します!!
ぼしひこくん「あーアカン。緊張するわ。」

なんとウォークインシューズクローゼット
たっぷり家族全員分収納できます!!
扉が無いので、ベビーカーなどもスムーズに置けますね。
ばばっち「コラ!!ぼしひこ!仕事中にナンパしたらアカンやろ
」
ぼしひこくん「ご、ごめん。カズマ編集長には言わんといてくれる?オレ、クビになりたくないねん
」
ばばっち「も~しょうがないなぁ
」

今のは見なかったことにして、先程チラリと見えていたリビング・ダイニングへ。
リビングにはどーんと大きな窓があります。まるで絵画
両サイドから開く形になっているので、窓枠が真ん中にきて景色の邪魔になることはありません!!
なんといって目の前が竹林になっているので、眺めが最高です![]()


ダイニング。すぐ横がカウンターキッチンになっているので、お料理の配膳もスムーズですね

なんと蛇口が浄水器一体型になっているんです!!美味しい水がいつでも飲めます

キッチン横にはパントリーがあるので、買い置きのお米やお菓子・たまにしか使わない調理器具もしまえます

洗い物をしながらリビングにいる家族の様子が見れる
さらには、外の景色も見られる
お母さんの特等席!!!!

キッチン上にも小窓があるので光が差し込み、特等席を照らします

キッチンの奥には・・・洗面室にいるばばっち&ぼしひこくんが!!(ぼしひこくんは反省した模様)
そうなんです。キッチンからも洗面室に行けるようになっているので、家事動線がかなりいいんです
朝ごはんを作りながら洗濯機をまわして~・・という忙しいお母さんにぴったり

洗面台のうしろ側に階段下収納があります。タオルや洗剤のストックを置くのに便利。
ぼしひこくんはここで頭を冷やします。

外からの光が差し込み、かなり明るいです
お子さんの遊び場としても最適ですね

和室=押入れというイメージですが、こちらはクローゼットになっています。使い勝手がよさそうですね
白を基調としているので、畳ともマッチしていて違和感がありません。

玄関前の階段。2階へ行きましょう( ´_ゝ`)ノ
ぼしひこくん「遠慮せんとあがってあがってー。」
ばばっち「あんたの家ちゃうやろー
」

窓のデザインがおしゃれー
ぼしひこくんも日に当たり気持ちよさそう

こちらもクローゼット付き。幅が広めなので、なかに収納ボックスも入りそう!!

さきほどの8帖の洋室と同じベランダに出ることができます。これだと各部屋のお布団を干すのもスムーズですね

ゴツン
「痛ーーーっ(泣)」
窓際でくつろいでいたぼしひこくんには予想外だったようですが、この部屋の窓はこのように真ん中から開けられるようになっています。(普通に下からガラっと開けることも可能)これだとお隣さんから家の中が見えにくいですよね
最後にぼしひこくんにはバチが当たったようですね!!
ぼしひこくん「オレ結局仕事らしいことしてへん・・・(シュン
)けどここのモデルハウスめちゃよかった
」
ばばっち「ほんまによかったー
私もここに住みたいくらい
」
2人も満足のモデルハウスいかがでしたか?どのお部屋も窓が2つあり、南向きでとても明るい室内でしたよ
角地で前の道幅は5m以上あります!!自然に囲まれていてとっても良い雰囲気です
なんといっても生活動線を熟知しているママさんが設計しているのが一番のポイントだと思います
是非一度見に来てくださいね(*・ω・)ノ
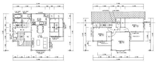
↓間取り図はこちら。
■物件概要
| 名称 | スマイルタウン楠葉面取町第Ⅰ期(2号地) |
| 所在地 | 枚方市楠葉面取町1丁目1-593 |
| 交通 | 京阪「樟葉駅」よりバス10分「長谷」徒歩4分 |
| 地目 | 宅地 |
| 用途地域 | 第一種低層住居地域 |
| 建ぺい率 | 60% |
| 容積率 | 100% |
| 総区画数 | 6区画 |
| 販売区画数 | 1区画 |
| 敷地面積 | 115.00㎡ |
| 建物面積 | 99.99㎡ |
| 販売価格 | 3,180万円 |
| 構造 | 木造2階建(軸組工法) |
| 設備 | 公営水道、本下水、都市ガス |
| 取引態様 | 売主 |
| 売主(事業主) | Smile Home’s(株)さくらハウジング |
まだまだ下に続きますよっ〜![]()
スマイルホームズ楠葉面取町第Ⅰ期からもう一つ、4号地も建築予定です。

こちらー( ´_ゝ`)ノ
4号地はフリープランになっているので、間取りや仕上げは自由に決めていただけます!!
宅地面積が118.62㎡、前の公道は5mとかなり広々としています
■宅地概要
| 名称 | スマイルタウン楠葉面取町第Ⅰ期(4号地) |
| 所在地 | 枚方市楠葉面取町1丁目1-593 |
| 交通 | 京阪「樟葉駅」よりバス10分「長谷」徒歩4分 |
| 地目 | 宅地 |
| 用途地域 | 第一種低層住居地域 |
| 建ぺい率 | 50% |
| 容積率 | 100% |
| 総区画数 | 6区画 |
| 販売区画数 | 1区画 |
| 敷地面積 | 118.62㎡ |
| 建物面積 | 99.18㎡ |
| 販売価格 | 2,980万円 |
| 構造 | 木造2階建(軸組工法) |
| 設備 | 公営水道、本下水、都市ガス |
| 取引態様 | 売主 |
| 売主(事業主) | Smile Home’s(株)さくらハウジング |
では続いて、スマイルタウン第Ⅱ期全10区画にいってみましょー


先ほどのモデルハウスから自然いっぱいの道を抜けていくと・・・
このように区画分けされています。
↓動画はこちら!

一番奥の5号地はこの上に家が建ちます!大きな車でも悠々と2台はとめられそうなしっかりしたガレージがあります![]()
![]()
こちらはな、なんと!!
建築条件無しの宅地分譲となっております
・・・ということは、ご希望のハウスメーカーや工務店で思い通りのお家を建てることが可能なんですっ
もし、特に希望するハウスメーカーがなくても提携している「サンヨーホームズ」さんにおまかせすることもできます。
サンヨーホームズさんでは只今、展示場で設計相談会と資金相談会を同時開催中です
facebookページに詳しい場所や開催中の他のイベント情報が載っているのでチェックしてみてくださいね
【宅地概要】
| 所在地 | 枚方市楠葉面取町1丁目589 |
| 交通 | 京阪本線 樟葉駅 バス10分 徒歩4分 |
| 価格 | 1,480万円〜2,270万円 |
| 土地面積 | 100.06㎡〜122.68㎡ |
| 物件種別 | 売地 |
| 土地権利 | 所有権 |
| 地目 | 宅地 |
| 建ぺい率容積率 | 50% 60%・100% |
| 私道負担 | – |
| 都市計画/用途地域 | 市街化区域 / 第一種低層住居専用 |
| 取引態様 | 専属 |
| 引渡時期 | 即時 |
| 設備 | 都市ガス |
| 備考 | 全10区画のビッグタウンが登場!!建築条件はありませんので、お好きな住宅メーカーで建築が出来ます。角地やBOXガレージのある区画などバリエーションに富んでいます。 |
最後に周辺のご紹介です(●´ω`●)

徒歩4分の所に京阪バス停「長谷」があります。

京阪「樟葉」駅までバスで10分。くずはモールへお買い物にも行きやすいですね


スーパー「ニッコー」と隣にあるパン屋さん「ブーランジュリーシュシュ」
以上、スマイルタウン楠葉面取町第Ⅰ期・Ⅱ期のご紹介でした!
それでは営業担当の小林さん、コメントお願いします![]()
![]()
![]()
つづいて設計担当の田中さん、コメントお願いします![]()
![]()
![]()
「ひらつーで”スマイルタウン楠葉面取町Ⅰ”のモデルハウス・“スマイルタウン楠葉面取町Ⅱ“の宅地を見た」とお伝えいただくと話が早いと思います!
(すでに販売が終了している場合もありますのでご了承ください)
■Smile Home’s(スマイルホームズ)公式サイト





























