いよいよ待ちに待った
ゴールデンウィークがやってきますね!
「どこ行こうかな〜?」
「混んでるところは嫌やしな〜」
なんて迷っているファミリーに朗報です!

今年も株式会社 野村工務店さんが、家族みんなで楽しめる
GWスペシャルイベントを開催しますよー!
イベント受付は2か所!
【①星田駅から徒歩4分:オーベルジュコート星田4丁目3期のモデルハウス前】
【②河内磐船駅徒歩5分:リザードパーク森北の販売センター】
豪華賞品がもらえるスタンプラリーや、ペットと一緒に来ていただける内覧会(リザードパーク森北のみ)など、ワクワクのイベントが盛りだくさん!
その中でも4月18日にオープンしたばかりの、

JR星田駅から徒歩4分という超好立地にある分譲地、
オーベルジュコート星田4丁目3期は必見です!

しかもラスト1邸、即入居可!
これは急いで見に行くしかない!

GW中、家族でどこに行こうか悩んでてんなぁ〜!
最新のモデルハウスも気になる!
家族みんなで楽しめそうやし、行ってみよかな♪
どんなイベントなのか教えて〜!
ということで、イベント情報と新モデルハウスの見どころをたっぷりお届けしますよー♪
GWスペシャルイベント開催!
今回のGWイベントは、

4月29日(水祝)と、5月2日(土) 〜 6日(水祝)の計6日間で開催されます!
家族で一緒に楽しめる目玉イベントが盛りだくさんですよ♪
さっそく見ていきましょー!
【リザードパーク森北限定】
ペットと一緒に内覧会
リザードパーク森北限定で、

普段はなかなかできない、ワンちゃん・ネコちゃん同伴でのモデルハウス見学ができちゃいます!






お庭も室内もOK!
広々としたお庭はもちろん、ケージ等を利用すればモデルハウスの中も一緒に見学可能です。

さらにモデルハウスのお庭でペットと写真を撮ってInstagramに投稿すると、かわいいワンちゃんデザインの有名コーヒーチェーン店のギフトカードがもらえます!

リザードパーク森北には個性豊かなデザインのモデルハウスがなんと6つも!
全部まわって、一番の映えモデルハウスを見つけてくださいね♪
【注意事項】
※事前予約制
※プレゼントのお渡しは1家族様につき1つとなります。
※他のお客様のご迷惑にならないよう、ご配慮のうえご見学をお願いいたします。
※Instagramの投稿はその場での確認となります。
※皆さまに気持ちよくご見学いただけますよう、ペットとご一緒の際はお庭ではリードの着用、室内ではペットバッグやケージのご利用をお願いいたします。
【交野市の4分譲地で開催】
モデルハウスぶらりスタンプラリー
さらに交野市内にある野村工務店の4つの分譲地のうちどれか3邸を見てまわる、

モデルハウスぶらりスタンプラリーを開催!
各分譲地をまわって、クイズに答えてスタンプを集めよう!




モデルハウスは、リザードパーク森北、オーベルジュコート星田4丁目3期、オーベルジュコート河内磐船8期、グランヴィジョン私部南の4ヶ所にある11邸。

リザードパーク森北とオーベルジュコート星田4丁目3期の2会場が受付場所になっています。
会場でクイズに正解してスタンプを集めると、Amazonギフトカード3,000円分などがもらえますよ!
家族みんなで参加して豪華賞品をGETしてくださいね♪
【ご参加方法】
①ご参加を事前にご予約
②イベント受付場所へ
リザードパーク森北販売センター / オーベルジュコート星田4丁目3期
③LINEで友だち追加して、LINEでスタンプをあつめよう!
お好きなモデルハウスをご見学&クイズに回答しクーポンをGET!
④受付場所でクーポンを表示してプレゼントをもらおう!
【注意事項】
※1家族様ごとに1回ご参加可能。
※プレゼントのお渡しにつきましても1家族様につき1つとなります。
※プレゼントの内容は予告なく変更になる場合がございます。
※プレゼントは後日のお渡しになる場合がございます。
※ご自身のLINEにGWイベントLINE公式アカウントを友だち追加いただける方が参加条件となります。
※デバイスの不具合により参加できない場合等につきましては弊社でのご対応はできない旨ご了承くださいませ。
※事前ご予約の方優先。
※混み合う場合はお待ちいただく場合がございます。
【キャンペーン主催:株式会社野村工務店】
【Amazonは、Amazon.com,Inc.またはその関連会社の商標です。】

ワンちゃんと一緒に見学できるって、ありそうでなかった!
スタンプラリーも子どもが喜びそうやし豪華賞品までもらえるんや!
これは家族みんなで遊びに行こっと♪
【ラスト1邸!即入居可】
オーベルジュコート星田4丁目3期
ゴールデンウィークで大注目なのはイベントだけではありません。

JR星田駅から徒歩4分の超好立地にある分譲地、
オーベルジュコート星田4丁目3期にモデルハウスが2邸完成したんです!

しかもなんとその内1邸はすでにご成約済!
ラスト1邸の販売になっています!

全8区画のうち、モデルハウスを含む7区画がご成約済!
成約済のモデルハウスは5月末までのご見学となりますので、2邸同時に見ることができるのは今だけ!
でもなんといっても最大の魅力は、

JR学研都市線「星田駅」から徒歩4分という近さ!
通勤通学にめーっちゃ便利な場所にあるんです!

さらに最寄りの交野市立旭小学校までは徒歩2分!
取材中、チャイムが聞こえてくるぐらいの近さ!


駅&小学校もめっちゃ近くて、周辺にはトップワールド星田店やトナリエ星田などの商業施設もたくさん。
暮らしに必要なものが分譲地のそばに全部そろっているんです。

え、周辺環境が神すぎひん!?
もうすでに暮らしやすそう!
ここにできたモデルハウスってどんなん?気になる〜!
◆ 薪ストーブ×家事ラク動線
5号地のモデルハウス
ということでアンドゥがやってきたのは5号地のモデルハウス。

4/18にオープンしたばかりの出来立てホヤホヤです!

おぉ〜、天然石タイルが貼られてて重厚感あるなぁ〜!
なんか煙突みたいなものが見えるけど…アレはなんやろ?

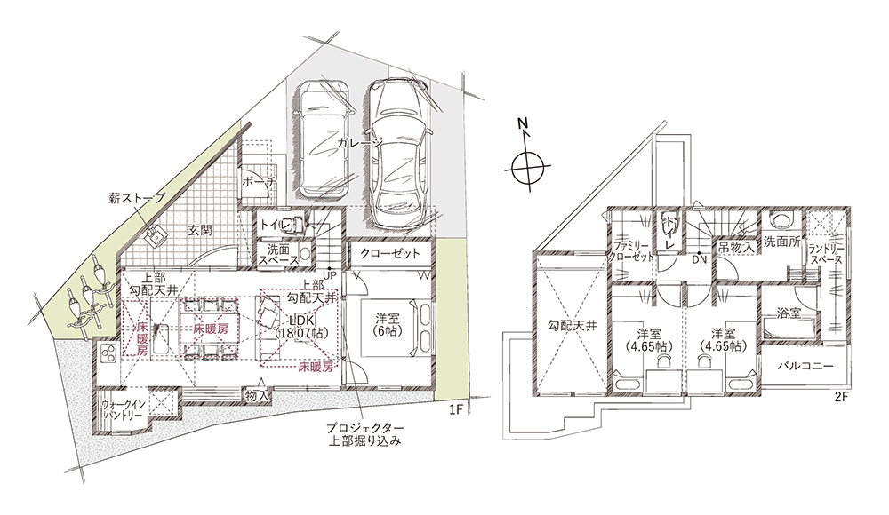
5号地の間取りはこちら

玄関を入ると、まず目に飛び込んでくるのが広い土間!
石タイルの床と壁が重厚感があります。
そして何やら気になるものが…


あれ?これってもしかして…薪ストーブ!?
さっきの煙突はコレやったんや!
玄関開けてこれが出てきたら、友達に自慢したくなる!
薪ストーブの火を眺めながらくつろげるとか、最高すぎるや〜ん!
薪の火を眺めながらシックで高級感のある空間で過ごすひとときは、まさに大人の隠れ家的な雰囲気。

そして黒いガラス戸を開けた先に広がるのは、
18帖の広々としたLDK!

南側に大きな窓を配置しているので十分な光が入ってきます。
しかも隣には建物がないので開放感もバツグン。

心地いい空間やなぁ…!
お部屋全体が落ち着いた色合いやからなんかホテルにでも来たみたい。
窓の外は緑がいっぱいやし、駅近物件ってことを忘れちゃいそう…💦

ダイニングには存在感バツグンの一枚板テーブル!
こちらは野村工務店の家具事業『木の物語工房』で制作された一点もの。
世界に一つだけの重厚な一枚板のテーブルとなっています!


このオシャレな空間にこの一枚板テーブルは反則!
カッコよすぎる〜!一枚板って憧れやねんな〜!

キッチンは収納力とデザイン性を両立したアイランド型。

遮るものがないので圧迫感がなく、さらに吹き抜け天井で開放的な空間になっています。


冷蔵庫は奥のパントリーに隠せるので、生活感を感じさせません。

吹き抜けから明るい光が入って開放的!
回遊型で動線も考えられててさすがやなぁ〜!
ここなら毎日のお料理が楽しくなりそう♪

そしてリビングの壁の向こうには黒いガラス戸が2つ。

リビングの奥にドアがあるけど、あの向こうは何があるんやろ?

扉の向こうはなんと主寝室!

おぉ〜!リビングの隣に主寝室があるんや!
子どもが小さいうちは家族で一緒に寝るお部屋としてちょうどいいし、子どもの遊び部屋にしとくのもいいかも♪

壁一面の大容量のクローゼットも備え付け。
夫婦の洋服もしっかり収納できます。

しかも2か所にドアがあるので、リビングと主寝室をぐるぐる回遊できちゃいますよ。
続いては2階へ!

階段を上がってスグの場所には約9帖の洋室。
こちらは真ん中で区切ることができるので、お子さんが大きくなったら2部屋に分けることができます。


しかも扉もクローゼットもぜんぶ左右対称やから、兄弟でどっちの部屋にするかケンカにならへんくていいやん。
そして2階は、家事ラクを追求したスペースになっているんです!

まずこちらは子ども部屋のとなりにある大容量のファミリークローゼット。
家族全員の服をまとめて収納しておくことができますし、アウトドア用品などもしっかり収納できます!
そして奥には、



洗面、ランドリースペース、バスルームを集約。
さらにガス衣類乾燥機 乾太くんも備え付け!
洗濯→乾燥→そのまま隣のクローゼットへ収納!
室内干しもバルコニー干しもできる、最高の家事ラク動線になっています。

乾太くんめ〜っちゃ欲しい!
約1時間で洗濯物が乾いてくれてフワッフワに仕上がるとか神!
動線もちゃんと考えられてるし、家事がめちゃくちゃラクになりそう♪


駅近で周辺環境も充実してて、家事ラク動線まで考えられてるお家…最高やな!
しかもラスト1邸やから早いもの勝ちですよ!
このモデルハウスがこんなに良いんやったら、もう1邸のスグに売れちゃったモデルハウスはどんなお家やったんやろ…?
ちょっとだけ見せてもらおうかな?
ということで、公開後スグにご成約したもう1邸の4号地のモデルハウスもちょっとだけご紹介!
◆ スケルトン階段の大空間
4号地のモデルハウス

こちらが4号地のモデルハウス。

こっちのお家も天然石タイルとブラックのアクセントがカッコイイなぁ〜!
さっそく中をみせてもらおう♪
じゃーん✨

明るい光がたっぷり降り注ぐ、開放感バツグンのLDK!

大きな吹き抜けと両側の大きな窓からたっぷりの光が差し込む大空間。

めっちゃ明るいし、めっちゃ広々!
スケルトン階段も存在感バツグンやし、天井が吹き抜けやからより部屋全体がめっちゃ広く感じるわぁ。

こちらのモデルハウスもキッチンは開放感のあるアイランド型。
コンロが背面にあるので、作業スペースも広々使えますよ!

そしてダイニングには『木の物語工房』の一枚板テーブル。

やっぱり一枚板のテーブルはいいなぁ〜!
重厚やし、この大空間やからこそめっちゃ馴染んでるわぁ〜!

そしてなんといってもこのスケルトンの丸太階段!
存在感バツグンなのに圧迫感がありません。

こんなデザインの階段初めて見た!
ここで写真撮ったらめっちゃ映えそう♪

なんと樹齢70年の奈良産の杉の丸太をそのまま使用したスケルトン階段!
ほんのりと香る檜の踏み板と黒のアイアン手すりを合わせたオリジナルの階段がめちゃくちゃカッコいいです!

そして吹き抜け空間には、これまた存在感バツグンの渡り廊下!

吹き抜けを横切る渡り廊下が、まるでお店とかギャラリーにいるみたいでテンション上がるわ〜!
リビングにいても2階にいる家族の気配を感じられるつくりなのがイイね♪


はぁ〜、こっちのお家もめっちゃオシャレやったなぁ〜!
そりゃすぐに売れちゃうわ(納得)
ここはすでに成約済みやけど、野村工務店さんならこうしたコダワリを詰め込んだお家を一緒につくることができるんやって!
モデルハウスを参考にして自分だけの理想のお家を作ってもらうのもいいよね♪
野村工務店さんではどんなお家が建てられるの??
そして野村工務店のつくるお家の特徴は、家の中のデザインだけじゃないんです!
野村工務店のお家は全部屋に漆喰の壁・天井を採用。
一般的に使われているビニールクロスに比べて、抗ウイルスにも効果が期待できて、身体にも優しいので小さいお子さまにも安心です。
空気を清らかにする効果や、防火、汚れに強いというメリットもあります。
漆喰(しっくい)とは?

☆抗ウイルス効果が期待でき、安心して過ごせます。
★天然素材からできているので身体に優しい!!「シックハウス症候群」を心配される方、アレルギーの方にオススメ。
☆調湿効果があり、カラッと過ごせる!!
★しっくいの主成分は無機質で不燃性物質なので燃焼による有害ガスや蒸気は発生しません。なので火災に強い!!そして丈夫!!
☆静電気が発生しにくく、ほこりやハウスダストを寄せ付けにくい素材なので汚れに強く掃除しやすい!
★手作業で塗っていくのでコテでムラをつけたり、磨いたり、独自の陰影を表現したり…いろんな表現が可能。ビニルクロスではまねできない美しい風合いを醸し出すことが出来ます。

漆喰は色の変更も可能で、カラー漆喰の壁はアクセントになってお部屋がグッと引き締まりますよ!

野村工務店さんといえば、室内の壁・天井に採用されている漆喰!
質感がめっちゃいいねんなぁ〜。
色替えや塗り方を変えてるとこがあって、こんなデザインもできるんや〜って見てて楽しい♪
さらに野村工務店の建てるお家は見た目だけじゃなく、目に見えない部分もしっかりとこだわっているんです!
地震対策として住友ゴムの制震ユニットMIRAIE(ミライエ)を標準装備!

高減衰ゴムを装着したダンパーで、地震のたびに最大95%の揺れを吸収・低減し、家の損傷を抑える設備で耐震等級3相当。
2016年に震度7を2度も記録した熊本地震の際にも、高い効果を発揮しました。
ミライエを装着した熊本のご家庭にはほとんど被害がなかったことが報告されています。


おぉ〜!目に見える部分のデザインだけじゃなくて、見えへん部分でもしっかり安心安全のことを考えて設計されてるのは嬉しいなぁ〜!





どっちのお家も個性的でめっちゃステキやったな〜!
GWイベントもあるから、家族でいろんなモデルハウスをまわって、自分たちにピッタリのお家を見つけよっ♪


リザードパーク森北では、6邸のこだわり抜かれたモデルハウスが一度に見れちゃうんです!
バレルサウナのあるお家や、グラフテクトのキッチンや、ドッグランのある家、大型ウッドデッキのあるお家など、個性あふれるモデルハウスが揃っています。

リザードパーク森北は全部で67区画もあるひろーい分譲地で、全区画180㎡超の広々とした敷地!
すでに48区画が成約済みです。(4月23日時点)
そして分譲地内には防犯カメラを設置!
街全体の安全をしっかりと守ってくれます。




そして学研都市線「河内磐船」駅(徒歩5〜8分)、京阪交野線「河内森」駅(徒歩9〜12分)!
さらに分譲地の目の前には交野市立岩船小学校があり、道路を一本渡るだけなので登下校も安心。
小学校は、災害時に地域の避難場所でもあるので、家族にとっても安心です。
分譲地内には広い公園があり、街の名前にもなった「トカゲの滑り台」やブランコなどの遊具があって、街の中で思いっきり遊べるのも嬉しいポイント。
しかも今回のイベントで会場となる4つの分譲地の中で唯一自由設計ができるんです!

リザードパーク森北は『庭』をテーマにした広い街。
今回のGWイベントでは、ワンちゃん・ネコちゃんと一緒にお家も見学できます!

嬉しい有名コーヒーチェーン店のギフトカードももらえるのでぜひお越しくださいね♪
さらにオーベルジュコート河内磐船8期では3月末にオープンしたばかりのモデルハウスが2邸、グランヴィジョン私部南では別荘風の家と、2世帯住宅の展示場もあるので、そちらもぜひ見学してくださいね〜!

どっちの会場から始めるか迷いますね!
イベント受付場所は星田駅徒歩4分と河内磐船駅5分と、どちらも駅近。
駐車場もご案内できます!
見たいモデルハウスを選んだら、事前予約でぜひ参加してくださいね~♪
ご来場おまちしてま〜す!
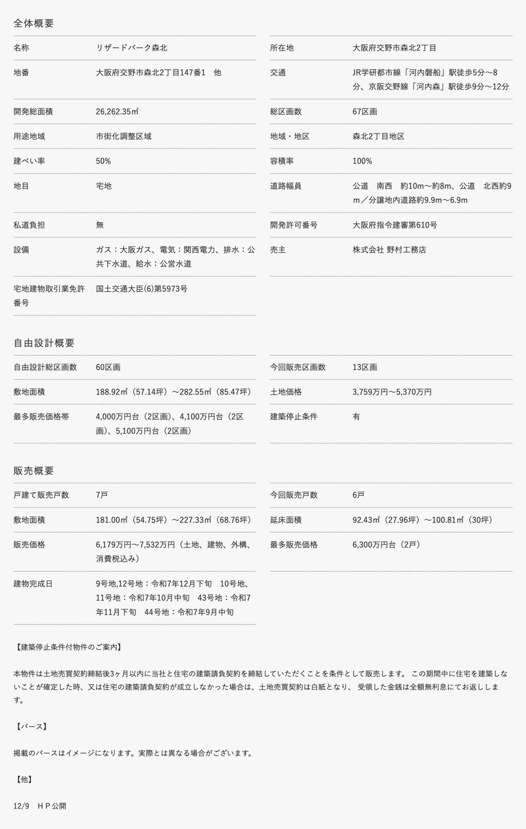
●物件概要●
【オーベルジュコート星田4丁目3期】

※徒歩分数は80mを1分、自転車分数は250mを1分、車分数は400mを1分として算出(端数切り上げ)したもので、距離は地図上の概測です。
【リザードパーク森北】

※徒歩分数は80mを1分、自転車分数は250mを1分、車分数は400mを1分として算出(端数切り上げ)したもので、距離は地図上の概測です。
Sponsored by株式会社 野村工務店
★【ひらつーパートナーズ】【ひらつー不動産】についてのお問い合わせはこちらから!

