
玄関にひろーい収納!

上着を掛けてすぐに手洗いできる『ただいま動線』!

しかも、
めっちゃ「シュッ」としてる!

もうこれは
塩顔ハウスですね!

確かに(笑)
ここは…

高橋開発株式会社の
Design Class(デザインクラス)
レオグランデ枚方藤阪
のモデルハウスです!
地図ではここ↓
住所は大阪府枚方市藤阪南町2丁目156番付近です。
藤阪駅やフレッシュバザール、飲食店や保育園もあって生活環境バッチリ。
後ほど詳しく紹介します!
シュッとした塩顔ハウス潜入!
まずは間取りをチェック
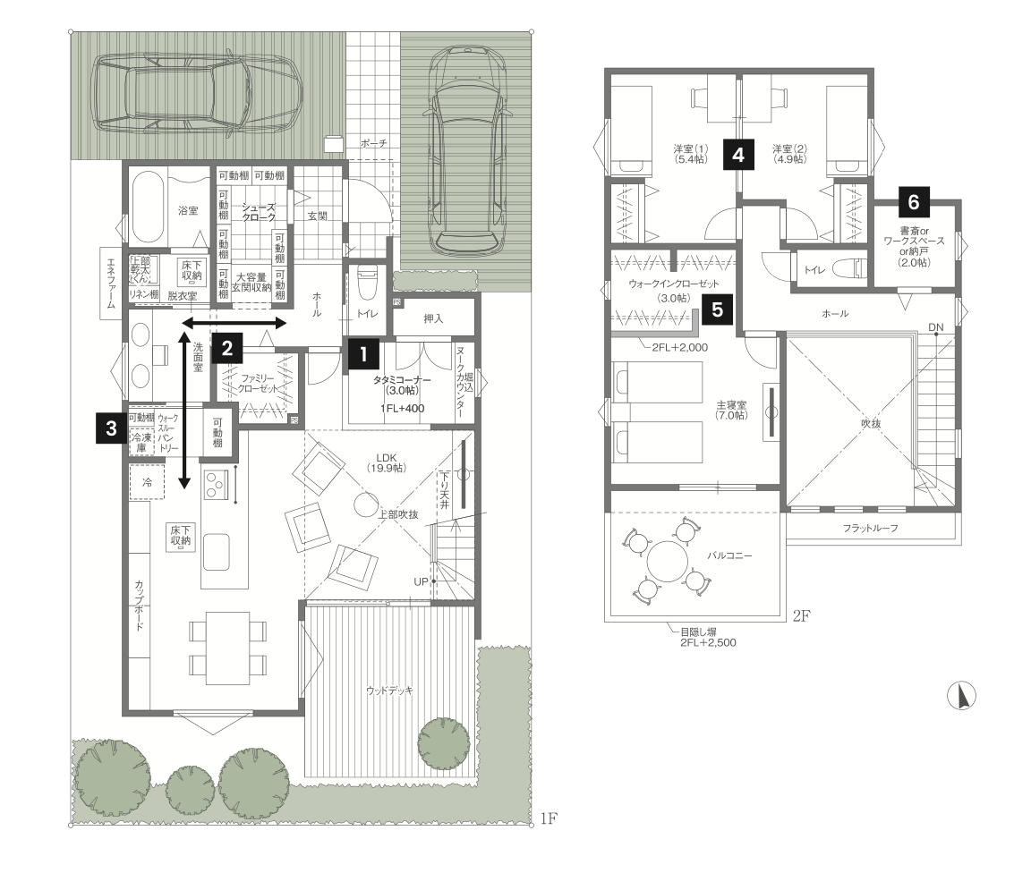
間取り↓


車2台停められて、ウッドデッキもある!
早く中が見たい〜♪
フク@ひらつーが巡る動画バージョンもどうぞ↓
玄関収納&帰宅動線◎


まずは玄関から。
お客様はこちらから入ってもらい、右側にある扉から入ると…


じゃん!
ご家族の普段の生活ではこちらから通りぬけてもらうことができます!
靴だけでなく、レインコートや傘なども掛けられるので帰宅後の動作がスムーズになりますよ。

これありがたい!
帰宅後って買い物した荷物とか、人によっては子どもとか犬とか抱えてたりするんですよね…。
そういう時に玄関にとりあえず荷物置きがちやけど、玄関収納があれば手前の玄関はスッキリを保つことができる!


そして玄関を上がった先にはファミリークローゼット、となりに洗面室があります!

ここにも収納!
カバンやコートはここにイン→手洗いできて、帰宅動線バッチリすぎます!
神がかってる〜。


広い洗面室!
2つあると、朝に家族で取り合い…なんてことも防げそう〜!


その奥には脱衣所があり、ガス乾燥機「乾太くん」が標準で付いています!

雨の日の洗濯も怖くない!
洗面室があれだけ広いのに、脱衣室があるって贅沢〜。


反対側はキッチンにつながっているんですが…

途中にパントリーとセカンド冷凍庫を置けるスペースがあるんです。
その名も『ウォークスルーパントリー』!

これいい!
帰宅後、通り抜けながら買ったものをすぐストックできて「いったんここに置いとこ」を防ぐこともできますね〜。
スッキリ使いやすいキッチン


そしてこちらがキッチンとダイニングです。
テーブルを横並びで置けるので、スッキリ見せることができますよ!

配膳も片付けもしやすそうで一石二鳥!
うしろのカップボードも統一感ばっちりで絵になる…(うっとり)


そして、この眺め!
毎日ここで料理してご飯食べられるって…最高。
家族の様子が見やすいのもありがたい。


キッチンの表側にもこういった収納が全面にあるので、食器以外にも細々したものを収めることができますよ。

リビングに面しているから、普段よく使うものを入れても取り出しやすくて便利!
「これどこに仕舞おう…」って物も一旦ここに収められるし、いつでもスッキリなリビングを保てそう!
プライバシー面も安心&ウッドデッキも!


そして、ここは南側に位置しているので、外から光が入ってとても明るいんですよ!

確かに!そして、この外は…


広めのウッドデッキ!
子どものプール遊びとか、いろんな使い方ができそう〜。


しかも、この分譲地は『プライバシーコード』を設定していて、裏に面しているお家同士の「見合い」を避けられるように工夫してあるんですよ!

本当ですね!
1階部分は壁になってる〜。
これなら「今、お隣さんが窓際にいるから出るのやめとこ…」ってこともないですね。
丸見えを防いでプライバシー面でも安心

Design Classレオグランデ枚方藤阪は窓を開けてもお隣と顔を合わせることがない、そんなプライバシーと開放性を両立した住環境にデザインされています。


このタタミコーナーはスタイリッシュで新鮮!
収納やカウンターがあるのもいいですね。

カラータタミなのでお手入れがしやすく、手軽に部屋の印象を変えることができるんです。
いろんな色があるのでお好みで選んでもらえますよ!
吹き抜けで繋がりを感じるリビング


そして、この吹き抜け!
開放感がすごーい!!

吹き抜けがあると、2階に上がっても家族とのつながりを感じることができますよ!


こんな感じで!

あ、いつの間に(笑)
確かに「ご飯まだ〜?」とか、いちいち降りなくても気軽に聞くことができそうです。


階段の手すりはアイアン調になっているので、さらに「シュッ」とした感じを出しています。

こういうアイアン調の手すりって黒が多いイメージなんですが、白はやさしい雰囲気がいいですね!
2階もチェック!


では、2階を見ていきましょう!


階段上がってすぐのところには2.0帖の多目的室があります!
書斎・ワークスペース・納戸など、いろんな使い方ができますよ。

窓があって明るいせいかもっと広く感じますね!
程よいこもり感でリモートワークも捗りそう。


寝室も素敵♡
あの奥に見えるのはもしかして…


ウォークインクローゼットです!

服やカバンをしっかり収納できそう!
完全に区切られているんじゃなくて上の部分が抜けている分、明るくて閉塞感がないですね。


さらに2階には、5.4帖と4.9帖に引き戸を閉めて仕切ることができる洋室もあります。
収納と窓もそれぞれあるので、分けることができますよ!

子ども部屋にいいですね。
シンプルだから男の子でも女の子でも使いやすそう!


いや〜さすが!
シュッとしてるだけじゃなく、収納とか機能面もバッチリ。
周辺環境もついでにチェックしちゃお〜!
子育てにぴったりな周辺環境
分譲地内に公園あり!


小さい子も遊べそうな公園が分譲地内にあると助かる!
赤ちゃんブランコもある♪
フレッシュバザール徒歩1分


最近オープンしたスーパー「フレッシュバザール藤阪駅前店」は徒歩1分。
イートインコーナーやATMもあるんですよ!
明善めぐみ園 徒歩1分


明善めぐみ園も徒歩1分。
家から遠いと送迎だけでグッタリやけど、この距離なら余裕♪
藤阪小学校 徒歩1分(区画によっては秒)


藤阪小学校も徒歩1分です。
区画によっては10秒くらいかもしれません!
お子さんの通学もラクラクですよ〜。
JR藤阪駅 徒歩4分


JR藤阪駅は徒歩4分なんですね。
電車通勤・通学の人は間違いなく助かる!
帰りもすぐに帰れるってうれしい。
山田池公園 徒歩8分





水遊びができたり、楽しい遊具がある山田池公園が徒歩8分!
季節の自然も楽しめて、手ぶらで行けるBBQ場もあるので家族で1日過ごせますよ。
王仁公園 徒歩7分





王仁公園も徒歩7分で近い!
プールやバスケットゴール、テニスコートやカフェもあるし、スケートボード広場も最近できたんですよね♪
この他にも、モデルハウス公開中

いかがでしたか?
玄関から収納たっぷり、帰宅動線も◎な塩顔でシュッとしたお家。
子育てしやすい周辺環境にも注目ですよ!
気になる方はぜひ、資料請求してみてくださいね♪

レオグランデ藤阪にはモデルハウスがいくつかあるので、ぜひ見比べてお好みのデザイン・間取りを見つけてくださいね!

こんなに駅近でゆとりがあるお家って、枚方だとめずらしい!
これは見逃せない〜!!

物件概要はこちら↓


近隣にも分譲地があります。
こちらからチェックしてみてくださいね♪
▶高橋開発で家を購入されたお客様の声
▶高橋開発みんなのブログ

072-866-1138
営業時間/10:00〜19:00
「ひらつーの記事を見た」とお伝えいただくと話が早いと思います!(すでに販売が終了している場合もありますのでご了承ください。)
■ 高橋開発株式会社 公式サイト
■高橋開発の注文住宅 公式サイト
Sponsored by 高橋開発株式会社
【ひらつー不動産】についてのお問い合わせはこちらから!


