小さい家でも開放的な暮らし。「ここにしかない」ハイセンスなデザイナーズ賃貸物件が光善寺に誕生【ひらつー賃貸】
ここは光善寺駅から徒歩9分、枚方市走谷2丁目。
ハイセンスなデザイナーズ賃貸物件が枚方に誕生しました。
↓ 地図ではこちら。
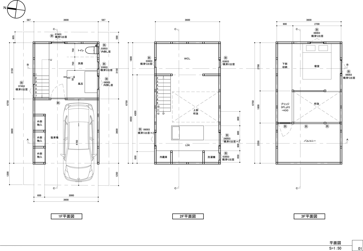
↓ 間取りはこちら。(※クリックで拡大)

それでは、早速ご紹介いたします。

無駄が一切ない、洗練された1階の駐車スペース。

斜めから。玄関は角の少し光沢がある茶色い部分。でもカギ穴もドアノブもありません。

室内からの玄関。重厚感のあるしっかりした黒い鉄のドアです。
なんと、スマホや横のボタンで暗証番号を押して解錠するキーレスシステム。カギはありません。
玄関を入ったらこんな感じ。1階は24.30平米。

壁も床もモルタル仕上げですが、優しい色の間接照明で心が落ち着きます。
上の写真の右側。なんといきなりのサニタリースペース!

トイレ・洗面台・お風呂があります。

広くはないけれど、間に壁がないので開放感があります。

仕切りはすべてブラインド!自由にあげたり下げたりして高さも調整できます。冬は少し寒いですが、暖房器具を設置してカバー。

洗面台。観葉植物がのぞいている採光窓が粋!
お風呂の周辺をご紹介。




トイレはこんな感じ。

電源もあって、サイドの棚のオーディオから音楽が流れていました。

トイレの壁にはトイレットペーパーなどを収納できる大きな棚もあります。

反対側。ここで靴を脱ぎます。右の壁には大きな姿見の鏡!お出かけ前にしっかりチェックできます。
それでは、先ほどの階段を上っていきます。

階段の黒い素材はまちなかでもよく見かける、鉄の平板を加工したもの!オシャレです。
守口市にあるKANAMONO工房さんで特注されたそうです。
この工房で作られた箇所がこれから先もたくさん出てきますので要チェックです。

ちなみに階段下スペースは掃除道具や靴などが置けます。

顔を上げると自然光が!!!

階段の上から。ひもを外すと、階段の部分が閉まります。

見上げると、吹き抜けの高い天井と大きな窓!自然光が大胆に差し込んでまぶしい!
2階は、LDK!2階は24.30平米です。

右下が先ほどの階段。床は杉の無垢のフローリング。
まずはキッチンから。

両サイドの小窓と、間接照明であったかい光に包まれているキッチン。

真ん中の白い光沢のある部分がIH。調理スペースも広いです。

大きな換気扇。真ん中の間接照明の下は、鏡になっています。

キッチン上の収納。幅広で使いやすそう。

こちらがIH。2口あります。光の加減でグラデーションに見えますが、実物は真っ白。

深めの引き出しにはお鍋や食器をたくさん収納できます。奥にはコンセントもあります!

水道。シンプルでかっこいいです。

水道の隣に食卓。もちろん調理台としても使えます。みんなで囲んでお料理パーティーも出来ますね。

食卓の下にはこれまたおしゃれないす。こちらも先ほどのKANAMONO工房さんによる製作だそう!

キッチンから3階が見えます!

キッチンの左側の収納には、なんと洗濯機が入っていました!どうしても生活感が出てしまうものは隠してしまう、という発想!右側の収納には冷蔵庫が入っています。

こちらの縦長の細い収納にも隠されていました。生活感あふれてしまうアレらが・・・

上から、来客用インターホン、ガス給湯の電源と調整ボタン、電気スイッチ。
ちなみに電気スイッチは、ここで家中の電気をつけ消しできます。キッチン上の電気は明るさ調整も可。

下にも間接照明が!さりげないぬくもりが下から伝わってきます。
続いて、リビング!



クーラーも使わないときは隠せるようになっています。
オーディオ機器もぴったり収まっています。(※こちらのオーディオ機器はついてきません)

こちらも下に間接照明が。あたたかい・・・

もちろん下は収納になっています。

ここに腰掛けてゆったりテレビを見られます。ライトもオシャレ。

肘おきかと思いきやこちらも収納。テレビのリモコンなどを入れておけます。

横からも間接照明!
続いて、その奥は・・・

本棚や趣味のものなど好きなものを置いたり、いろいろ活用できそうなお部屋。

あえて壁を作らず、薄い布で仕切るようになっています。
奥の壁は全面鏡になっていて、部屋がとても広く感じられます。

洋服もたくさん掛けられるようになっています。上にも収納。
ここは「ウォークインクローゼット」!みたいに決めつけないで家主が好きに使えるところがいいですね。

向かいは・・・
シンプルな書斎!


壁いっぱいの本は、本物に見えるかもしれませんが壁紙です。
そしてここにも小さな窓。ほどよい自然光が目に優しい。

机もしまえるようになっています。細かいところまで抜かりありません。

それでは3階へ行きましょう!

?!
なんと、この階段。
(左足)鉄→(右足)木→(左足)鉄→(右足)木→(左足)鉄→(右足)木…
と言うふうにのぼっていくんです!!

抜かりなしや。一番下は収納!!
ではゆっくりのぼってみましょう。

初めてのときはおそるおそる、ゆっくりゆっくり・・・
でも、このドキドキ感と、一段一段丁寧に上っていく過程が楽しい・・・!

上から見るとこんな感じ。3日もあれば走って上り下りできるようになるそうです(笑)
それにしてもめっちゃしゃれてます。そしてあの鉄!こんな細部まで!
3階からの2階の眺望。

3階はこんな感じ!どーんと!3階は11.34平米。


みんなで囲んで団らんできるリビング。

そして、茶色いソファーをずらすとベッドになって、寝室に変身!

目覚めると大きな窓から見える空がこの上なく気持ちいいでしょうね。
このテーブルは寝るとき、背が高い人はさっきの茶色いベッド(ソファー)にこれを足して長さを補えます。

腰掛けいすの下には、ふとんなどを収納できるスペースが!
そして、腰掛けいすの奥の壁の手前にちょこっと何かが芽を出していました。

いっぱい穴が。

なるほど。腰掛けいすの下の収納の中にコンセントがあって、この穴からコードが出せるようになっている訳ですね。コード類は部屋がごちゃごちゃするので悩みのタネの一つ。ここにも隠す発想あり!

こちらも天井に沿った明るい間接照明。

大きな窓から、明るい青空が見えました。
それでは、バルコニーへ!

先ほどの収納がある腰掛けいすから行けます。

上から見ても圧倒的な開放感!!

出ました!もちろん、直接、空!!!!きもち〜!!開放的な気持ちになります。

四方を壁に囲まれているので、完璧なプライバシー空間!
晴れた日はここでおいしいお料理を食べたい。夜はしっぽりお酒片手に鍋だってできます。
他人からの視線を気にせず楽しめる贅沢な空間。私だけの空。

水道もあります。

これは窓かな?

開きました!

お客さんが来たらここから顔を出して、
「はーい、ちょっとまっててやー!すぐ行くから!」と声をかけられます。
いっぱい人を招いて、自慢したい。
とっておきの家。
ここにしかない家。
今回の取材の中で、たくさんの観葉植物がさりげなく登場しましたがこちらのお店のご協力でした!

cafe Sally(カフェ サリー)
open9:00-18:30
枚方市山之上4−30−1竹本ビル1階(宮ノ前橋バス停前)
tel 072-844-0011
URL http://cafesally.exblog.jp/
▽貸主さんからのコメント
■物件概要(賃貸)
※上記において、図面および面積表示が現状と異なる場合には、現状を優先するものとします。
▽この物件についてのお問い合わせは、大阪R不動産へお願いします!
■「無反省にオリジナルな小さい家【賃貸編】」(大阪R不動産)
【ひらつーパートナーズ】【ひらつー不動産】についてのお問い合わせはこちらから!
ハイセンスなデザイナーズ賃貸物件が枚方に誕生しました。
↓ 地図ではこちら。
↓ 間取りはこちら。(※クリックで拡大)

それでは、早速ご紹介いたします。

無駄が一切ない、洗練された1階の駐車スペース。

斜めから。玄関は角の少し光沢がある茶色い部分。でもカギ穴もドアノブもありません。

室内からの玄関。重厚感のあるしっかりした黒い鉄のドアです。
なんと、スマホや横のボタンで暗証番号を押して解錠するキーレスシステム。カギはありません。
玄関を入ったらこんな感じ。1階は24.30平米。

壁も床もモルタル仕上げですが、優しい色の間接照明で心が落ち着きます。
上の写真の右側。なんといきなりのサニタリースペース!

トイレ・洗面台・お風呂があります。

広くはないけれど、間に壁がないので開放感があります。

仕切りはすべてブラインド!自由にあげたり下げたりして高さも調整できます。冬は少し寒いですが、暖房器具を設置してカバー。

洗面台。観葉植物がのぞいている採光窓が粋!
お風呂の周辺をご紹介。




トイレはこんな感じ。

電源もあって、サイドの棚のオーディオから音楽が流れていました。

トイレの壁にはトイレットペーパーなどを収納できる大きな棚もあります。

反対側。ここで靴を脱ぎます。右の壁には大きな姿見の鏡!お出かけ前にしっかりチェックできます。
それでは、先ほどの階段を上っていきます。

階段の黒い素材はまちなかでもよく見かける、鉄の平板を加工したもの!オシャレです。
守口市にあるKANAMONO工房さんで特注されたそうです。
この工房で作られた箇所がこれから先もたくさん出てきますので要チェックです。

ちなみに階段下スペースは掃除道具や靴などが置けます。

顔を上げると自然光が!!!

階段の上から。ひもを外すと、階段の部分が閉まります。

見上げると、吹き抜けの高い天井と大きな窓!自然光が大胆に差し込んでまぶしい!
2階は、LDK!2階は24.30平米です。

右下が先ほどの階段。床は杉の無垢のフローリング。
まずはキッチンから。

両サイドの小窓と、間接照明であったかい光に包まれているキッチン。

真ん中の白い光沢のある部分がIH。調理スペースも広いです。

大きな換気扇。真ん中の間接照明の下は、鏡になっています。

キッチン上の収納。幅広で使いやすそう。

こちらがIH。2口あります。光の加減でグラデーションに見えますが、実物は真っ白。

深めの引き出しにはお鍋や食器をたくさん収納できます。奥にはコンセントもあります!

水道。シンプルでかっこいいです。

水道の隣に食卓。もちろん調理台としても使えます。みんなで囲んでお料理パーティーも出来ますね。

食卓の下にはこれまたおしゃれないす。こちらも先ほどのKANAMONO工房さんによる製作だそう!

キッチンから3階が見えます!

キッチンの左側の収納には、なんと洗濯機が入っていました!どうしても生活感が出てしまうものは隠してしまう、という発想!右側の収納には冷蔵庫が入っています。

こちらの縦長の細い収納にも隠されていました。生活感あふれてしまうアレらが・・・

上から、来客用インターホン、ガス給湯の電源と調整ボタン、電気スイッチ。
ちなみに電気スイッチは、ここで家中の電気をつけ消しできます。キッチン上の電気は明るさ調整も可。

下にも間接照明が!さりげないぬくもりが下から伝わってきます。
続いて、リビング!



クーラーも使わないときは隠せるようになっています。
オーディオ機器もぴったり収まっています。(※こちらのオーディオ機器はついてきません)

こちらも下に間接照明が。あたたかい・・・

もちろん下は収納になっています。

ここに腰掛けてゆったりテレビを見られます。ライトもオシャレ。

肘おきかと思いきやこちらも収納。テレビのリモコンなどを入れておけます。

横からも間接照明!
続いて、その奥は・・・

本棚や趣味のものなど好きなものを置いたり、いろいろ活用できそうなお部屋。

あえて壁を作らず、薄い布で仕切るようになっています。
奥の壁は全面鏡になっていて、部屋がとても広く感じられます。

洋服もたくさん掛けられるようになっています。上にも収納。
ここは「ウォークインクローゼット」!みたいに決めつけないで家主が好きに使えるところがいいですね。

向かいは・・・
シンプルな書斎!


壁いっぱいの本は、本物に見えるかもしれませんが壁紙です。
そしてここにも小さな窓。ほどよい自然光が目に優しい。

机もしまえるようになっています。細かいところまで抜かりありません。

それでは3階へ行きましょう!

?!
なんと、この階段。
(左足)鉄→(右足)木→(左足)鉄→(右足)木→(左足)鉄→(右足)木…
と言うふうにのぼっていくんです!!

抜かりなしや。一番下は収納!!
ではゆっくりのぼってみましょう。

初めてのときはおそるおそる、ゆっくりゆっくり・・・
でも、このドキドキ感と、一段一段丁寧に上っていく過程が楽しい・・・!

上から見るとこんな感じ。3日もあれば走って上り下りできるようになるそうです(笑)
それにしてもめっちゃしゃれてます。そしてあの鉄!こんな細部まで!
3階からの2階の眺望。

3階はこんな感じ!どーんと!3階は11.34平米。


みんなで囲んで団らんできるリビング。

そして、茶色いソファーをずらすとベッドになって、寝室に変身!

目覚めると大きな窓から見える空がこの上なく気持ちいいでしょうね。
このテーブルは寝るとき、背が高い人はさっきの茶色いベッド(ソファー)にこれを足して長さを補えます。

腰掛けいすの下には、ふとんなどを収納できるスペースが!
そして、腰掛けいすの奥の壁の手前にちょこっと何かが芽を出していました。

いっぱい穴が。

なるほど。腰掛けいすの下の収納の中にコンセントがあって、この穴からコードが出せるようになっている訳ですね。コード類は部屋がごちゃごちゃするので悩みのタネの一つ。ここにも隠す発想あり!

こちらも天井に沿った明るい間接照明。

大きな窓から、明るい青空が見えました。
それでは、バルコニーへ!

先ほどの収納がある腰掛けいすから行けます。

上から見ても圧倒的な開放感!!

出ました!もちろん、直接、空!!!!きもち〜!!開放的な気持ちになります。

四方を壁に囲まれているので、完璧なプライバシー空間!
晴れた日はここでおいしいお料理を食べたい。夜はしっぽりお酒片手に鍋だってできます。
他人からの視線を気にせず楽しめる贅沢な空間。私だけの空。

水道もあります。

これは窓かな?

開きました!

お客さんが来たらここから顔を出して、
「はーい、ちょっとまっててやー!すぐ行くから!」と声をかけられます。
いっぱい人を招いて、自慢したい。
とっておきの家。
ここにしかない家。
今回の取材の中で、たくさんの観葉植物がさりげなく登場しましたがこちらのお店のご協力でした!

cafe Sally(カフェ サリー)
open9:00-18:30
枚方市山之上4−30−1竹本ビル1階(宮ノ前橋バス停前)
tel 072-844-0011
URL http://cafesally.exblog.jp/
▽貸主さんからのコメント
大きな窓を作っても住宅街の中の家だとどうせカーテンで締切ってしまうから部屋が暗くなってしまうでしょ。だから、思い切って外から見える場所は通気性を確保するための小さな窓を作るだけにして、外から見られない場所に大きな窓を作って、プライバシー確保に力をいれました。
デザインは重視しましたが、収納をいっぱい作り、使いやすさも考えぬいてつくりました。家具や家電もほぼこのままにしておきますので、カバン一つでふらっと引っ越して来ていただけます。
駐車場代は不要。車やバイク好きにはもってこいの家です。バルコニーにハンモック用のフックもつけています。是非この家で生活を楽しんでください!
デザインは重視しましたが、収納をいっぱい作り、使いやすさも考えぬいてつくりました。家具や家電もほぼこのままにしておきますので、カバン一つでふらっと引っ越して来ていただけます。
駐車場代は不要。車やバイク好きにはもってこいの家です。バルコニーにハンモック用のフックもつけています。是非この家で生活を楽しんでください!
【内覧会開催】
2月28日(土)14時〜16時
*予約制
*大阪R不動産の問い合わせフォームより、参加人数、当日連絡のつく電話番号を記載の上お申込みください。お車でお越しの方は駐車場をご用意いたします。
■物件概要(賃貸)
| 住所 | 枚方市走谷2丁目40-8 | |||
| 交通 | 京阪本線光善寺/徒歩9分 | |||
| 賃料 | 10万円 | |||
| 敷金 | 賃料の1ヶ月 | |||
| 礼金 | 賃料の1ヶ月 | |||
| 建築構造 | 木造3階建て | |||
| 保証金 | ー | |||
| 敷引き(解約引) | ー | |||
| 築年 | 2014年 | |||
| 取引態様 | 仲介(大阪R不動産) | |||
| 共益費 | ー | |||
| 所在階 | 1-3階(1棟) | |||
| 契約区分 | 賃貸借保証委託契約 | |||
| 各階面積 | 1階:24.30平米、2階:24.30平米、3階:11.34平米 (59.94 平米) | |||
| 設備・備考 | 電気、都市ガス、上下水道、玄関ドア(キーレス、オートロック)、IH2口クッキングヒーター、洗浄機能付便座、エアコン2基、冷蔵庫、ドラム式洗濯機(家具、家電付き) *ペット可(種類、匹数要確認。賃料3,000円アップ) *2人入居可 *駐輪場有 *駐車場有 *バイク置場有 *指定火災保険必須 *賃貸借保証委託契約必須 *設計:スタイルユニット建築設計事務所 |
■「無反省にオリジナルな小さい家【賃貸編】」(大阪R不動産)
【ひらつーパートナーズ】【ひらつー不動産】についてのお問い合わせはこちらから!
(おさや@ひらつー)
カテゴリ : ひらつー不動産(分譲) ひらつー不動産(賃貸)
コメント投稿欄閉鎖のお知らせ









