みなさん、株式会社トラスティ飛鳥の『家なし子』の記事を覚えていますか??
またまたこの家なし子コンビ(営業部の山中さんとばばっち@ひらつー)の登場です(笑)

「ばばっちです!」
「トラスティ飛鳥の山中です!」
「トラスティアスカ、説明してね!この家の人てど〜思てますのん?」
「説明〜しろと言われましても、実際に聞かなわかりませ〜ん!」
…ということで(めっちゃ無理やりですが)今回は、
『トラスティ飛鳥で家を建てたご家族とかかわった人にお話を聞いてきた!』
の巻でーす![]()

枚方市内某所のお宅におじゃましました!!
さっき2人がいたのが、このおうちの屋上です。
・実際に住んでいる人はどういう思いだったの?
・営業さん以外にどんな人が携わっているの?
・正直、トラスティ飛鳥の山中さんのことどーおもてるん?(失礼)
めっちゃ気になる(*´Д`*)
ということで、今回は自由設計でこの家を建てられたO様とご家族、建築に携わった沖田工務店の藤岡監督・一級建築士の渡邉先生にお話をうかがいました!
間にトラスティ飛鳥の山中さん&ばばっちのおふざけ写真が入りますが、気にせず最後までご覧くださーい
(笑)
ばばっち「では、お話聞かせてください。よろしくお願いします!」

左から沖田工務店の藤岡監督と一級建築士の渡邉先生、そして・・・??

山中さんに抱かれているのは、O様のお子さん![]()
お腹のなかにいるときから、山中さんの声を聞いているせいかすごくリラックスしています。
お子さんも一緒に参加です!!
今回、O様のお写真はご希望により載せてませんがお話はしっかり聞いてきましたよー!!
O様の奥さん(以下奥さん)「2〜3年前くらいからですかね。マンションも含めて検討していました。色々みてきて、一度別の会社に戸建ての設計までしてもらったんですが何かピンとこなくて…結局それ以上進まなかったんです。」
ばばっち「え〜他の会社で設計までしてたんですか?」
山中さん「それ初耳(笑)」
奥さん「あ、ゆってなかったね(笑)」
O様「そんな中、たまたまネットでここの自由設計の物件を見つけて、次の日には見に行って即決でした。2〜3年もいろいろ悩んでいたのに。駅からも徒歩圏内で通勤にも便利なのがよかったですね。」
奥さん「一旦戻って、すぐ印鑑とお金取りに帰ったんだよね(笑)」
ばばっち「グッドタイミング!!」
山中さん「縁ですよね。」
奥さん「あと、山中さんならちゃんとやってくれそうだし、任せても大丈夫かなって。あ、気のせいかもしれないけどね(笑)」
山中さん「気のせいです!なんちゃって(笑)」
O様「正直、トラスティ飛鳥さん知らなかったんですよ。大手の不動産会社が沢山あるなか、はじめはどうやろ〜って思ったんですよ。でもやっぱり人ですね。不動産の営業さんによくある、変に値打ちつけて「今すぐ来ないと売れちゃいますよ〜。」っていうのもなかったしね。」
ばばっち「自由設計ということは間取りも変えることも可能だったんですか?」
山中さん「そうです。ここも3LDKから2LDKに変更しました。」
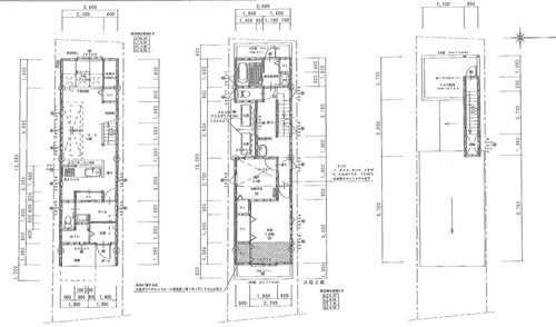
モデルプラン
(※クリックで拡大)
はじめのモデルプランがこちら。
ごくごく一般的な形。
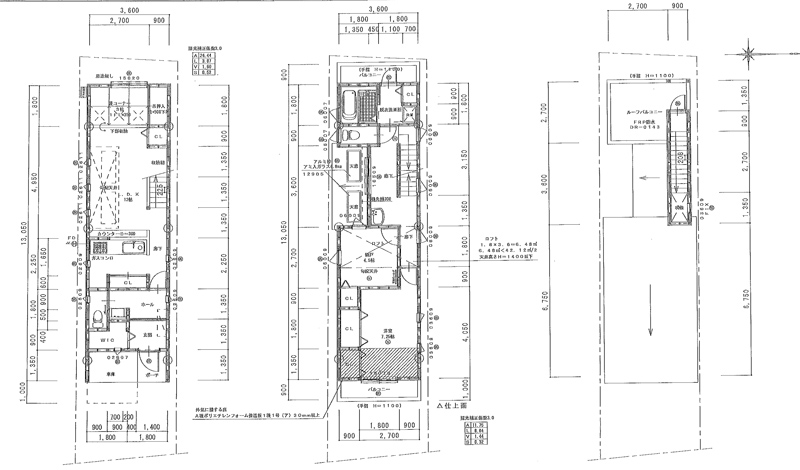
↓要望によりこう変わった!!

(※クリックで拡大)
こちらが要望により、実際に作られた図面。
よーくよく見てみると畳コーナーができていたり、浴室や洗面室が1階から2階に変わっています。

洗濯機置場(写真右)と2階のベランダが直結しているので、干すのもスムーズ。

同じく2階には部屋干しがラクラクできる『ホシ姫様』が。
2人みたいにぶら下がろうとしてはいけません。(笑)
奥さん「要望が多かったんで、渡邉先生に合う前に山中さんが伝えてくれたんだよね。その時(息子さんを妊娠中で)お腹も大きかったんで、なるべく早めに済ましたくって。お陰でスムーズにいきました。」
山中さん「できるだけ、事前にどんなお客様でどういう思いがあるかを設計士や工務店に伝えるんですよ。」
奥さん「要望も渡邉先生がキチンと答えてくれて。これがこうなったんでこうなります。っていう説明もちゃんとしてくれたしね。前向きに検討してもらえるんで、安心してお任せできましたよ。」
一同「すばらしい!!」
山中さん「気のせいとかちゃいますよね(笑)」
渡邉先生「いやいや!!」
一同「あははは〜(爆笑)」

もう笑いすぎてお腹が痛いばばっちと息子さんとの安定感がハンパないトラスティ飛鳥の山中さん。
ばばっち「例えばどんな要望をされましたか?」
奥さん「キッチンのカウンターとか・・・あ、柱もそうよね。ほんとはキッチンの横に柱を付けないといけないんだけど、間口が狭くて閉塞感があったんです。でも、構造上問題無いように、階段横に付けてもらったんです。あと、キッチン上の収納もとってもらいました。」

赤丸が柱、青丸が収納が出来る予定だったところ。
ばばっち「確かにこの方が広く見える!」
奥さん「キッチンの後ろの棚は隠す収納にしたかったんで、この棚の扉は藤岡監督にお願いしてわがまま言って作ってもらって。提案してもらった3枚扉で正解でした!」
扉をガラリと開け「どや!!」と言わんばかりの笑顔の藤岡監督。
藤岡監督「これなら引き戸になっているので、限られたスペースでも動線を邪魔せずキッチンに立つことができますよ!!あと、こだわったのがこちらのスペース。」
ばばっち「そうそう!!気になったのが階段横が壁になっていないこと!これだと閉塞感もないし空間が広くかんじました!!」
奥さん「でしょ〜
」

こちらも入居前の写真。
階段を昇り降りしながら、リビングの様子が見れます。
山中さ〜ん![]()

出してくれー!!
動物園ごっこもできます。
(キケンなので手はふれないで。)
ばばっち「ここテレビめちゃぴったりですね〜。」
奥さん「そうなんです。実はこのうしろ、実は収納棚を隠せるようになっているんですよ。テレビ台にキャスターが付いているので、前に移動させると…」
奥さん「どう?いいでしょう
これなら子どもにイタズラもされないし。私が考えたんで、今後作り付けでいかがですか?プロデュース料とろうかしら(冗談)!!」
一同「アカン!お金や〜(笑)でも確かにめっちゃいいアイデア!!」
O様「あとは3階のルーフバルコニーを作ってもらいました。」
奥さん「あなたの一服スペースね(笑)」
奥さん「あとは天窓は南向きなんで、季節に合わせて開閉ができるようにしてもらいました。」
山中さん「日差しが暑くなってきたらピッと閉めることができます!!」
ばばっち「かっこいい〜
…さて、そろそろお時間が来たので最後に一言おねがいしまーす。」
渡邉先生「心遣い!!」
山中さん「そして信頼、だから安心!!!」
O様・奥さん「それいる〜?!(笑)」
ばばっち「皆さんチームワークほんま良すぎ!色んな意味で(笑)」
O様・奥さん・息子さん、お忙しい中ありがとうございました![]()
改めてトラスティ飛鳥とお客様との愛と絆が見えてくるぐらい、みなさんのチームワークの良さが伺えました。
これって、自由設計で家を建てたりお家を購入するうえで一番大事なことなんじゃないかな〜と思います。
話しやすくて相談しやすい。そして冗談だって言い合える![]()
なんだか家族みたいな存在(山中さんに抱っこされて一切泣かない息子さんをみてよけい思いました。笑)ですね。
☆こんな感じで楽しく、お家探しをしたい!!
☆トラスティ飛鳥さんにいろいろ相談したい!!
という方は、ぜひトラスティ飛鳥にお問い合わせください![]()

トラスティ飛鳥を代表して山中さんより
「よろしくお願いします!!」














