

「おしゃれなベッドルーム!」


「グレーで統一されたお部屋!」


「あ〜やっぱり旅行に来たからには、こんなおしゃれなホテルがいいよね〜!
ルームサービスは何にしようかな…」
・・・いやいや実はここ、
ホテルじゃないんです。

出口5丁目にある、ミハマホーム株式会社の分譲地
『光ゲートシティ』
です!
地図ではここ↓
大阪府枚方市出口5丁目13-3
京阪「光善寺」駅徒歩12分。
保育園・小学校・中学校が徒歩4分圏内という子どもにうれしい立地。
詳しい周辺情報は記事の後半で!

「毎日の登園・登下校はもちろん、行事の時に近いと親としても助かる。
部活とかで遅くなりがちな中学生もすぐ家に帰れるのは安心!」
\ここでお知らせ!/
3/19(土)20(日)21(月・祝)
来場予約特典付き
イベント開催!


「星野リゾート泊まってみたい♡」
来場予約はこちらから!
事前予約で
★5,000円分のデジタルギフト券★
★ポムポムプリンコラボグッズ★
がもらえます♪

こちらが区画図。
区画内は住民以外の車は入って来ないので、小さなお子さんにも安全!
今回はコンセプトハウスの5号地と6号地を見せてもらいました。
ホテルライクでドラマに出てきそうな家
〜5号地〜


「まずは5号地から。
クールな感じでかっこいい!」



「宅配ボックスがあるから留守がちでも安心やね。
しかも、よーく見たら『HELLO』の文字が!さりげないおしゃれ感がたまらない〜」
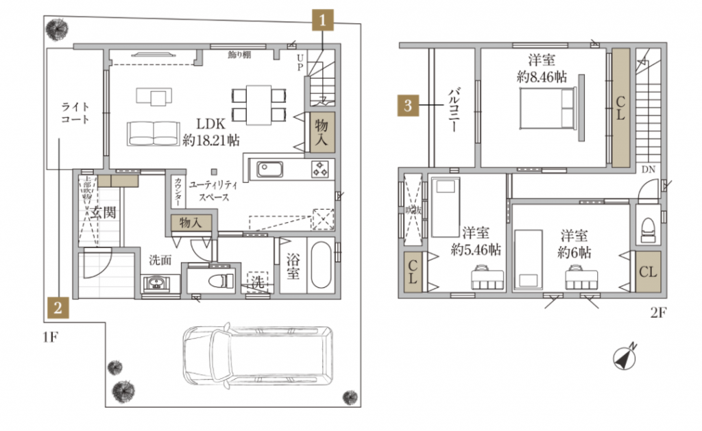
間取り↓



「おじゃましまーす!広っ!!
グレー系で統一されているけど、窓があるから暗さを感じない〜」


「入ってすぐのところに洗面スペースがある〜。
帰ってすぐ手を洗える動線助かるわ!」


「その奥には収納もある!
ここでコートを脱ぎ着できるから、どっかに脱ぎっぱなし…なんてことを防げそう」



「お風呂横の脱衣スペースは洗濯機上に稼働棚があるから、ちょっとした物も置けそう!
洗面台がここになくてもなんか違和感ない!そしてお風呂もシックで素敵〜」


「そしてここが、どどーんとリビングダイニング!
ひょえー、ドラマに出てきそう(笑)」


「リビングの横はウッドデッキ…と思いきや、同じくグレーで統一されててスタイリッシュ!
気候がいいときはここに椅子置いて、夜はワインとか飲んじゃって…(妄想中)」


「キッチンの横には作業やリモートワークができそうなスペースがあるやん。
本当にちょっといいホテルって感じ」


「2階はどんなんやろ?行ってみよー!」


「ここは寝室やね。
ムードめっちゃある♡
ベッドの後ろにも何かある…?覗いちゃお〜」


「ま、ま、まじでー!
まさかのスケルトンなクローゼット。
おしゃれやし、持ってる服を把握しやすいし一石二鳥!
縦長の窓も横にあるから、全体が明るくて見渡しやすい〜」


「この部屋に面しているインナーバルコニーもグレーで統一されていて、まるで部屋の一部のよう!
現実的なことを言うと、少しくらい雨が降っても洗濯物がビショビショになりにくいのが助かる〜」



「他の2部屋もアクセントカラーの壁がいい感じ♪
子ども部屋としても、男の子でも女の子でも使いやすい雰囲気やね!」
ナチュラル可愛い♡
でもそれだけじゃない家
〜6号地〜


「次は隣の6号地!」



「広めの駐車場で車が停めやすそう♪
しかも、よーく見たらこっちは『bonjour』って書いてる!
他の区画はあえて『こんにちは』とかにしても面白そう(笑)」
間取り↓



「では玄関から。
L字の玄関が広々してていい感じ!
ベビーカーでそのまま入っても余裕ありそう〜」


「玄関の左側にはこんなに大きな土間収納が!
靴だけでなく、ベビーカーやアウトドアグッズもしっかり入りそう〜」


「リビングダイニングは5号地と違って、白くてやわらかいイメージ♡」


「キッチンと横並びでテーブルを置けて、料理を並べる・片付ける動線がばっちり!」


「キッチン前の扉からも玄関に繋がっているから、ご飯作りながら『おかえり〜』って言えそう!」


「その横から洗面・お風呂につながってるから、ここも帰ってからの手洗いがしやすい配置。
お風呂もすぐやから、寒い日はすぐ湯船にドボンやな(笑)」


「階段下収納が2つに分かれているのって地味にありがたい…!!
右側は掃除用具、左は書類系とかって分類できそう」


「では2階に行ってみよ〜」


「ここは寝室やね。
明り取りの窓が2つもあるから、朝の陽で気持ちよく起きられそう!」


「その横にはオープンになっている収納スペースが!
普段使いの服もお出かけ着もまとめて収めることができそう〜」



「残りの2部屋もナチュラルで可愛らしい雰囲気♡」
「ばばっちさーーーん!」

「1階からなにやら声が…」


「お家が素敵なだけじゃないんですよ!
この分譲地は外壁の汚れをセルフクリーニングしてくれる光触媒コートの壁(サイディング)『光セラ』を使用しているので、年月が経っても劣化しにくくなっています。
そして、エネファームと太陽光パネルが合わさった『ダブル発電』が標準仕様。
実はとってもお財布に優しいんですよ〜♪」

「わぉ、見た目がおしゃれなだけじゃないんですね!
それにしても、今ちゃんの雰囲気とお家の可愛さがマッチしてて素敵です♡」
周辺をチェック!

★蹉跎中学校★
徒歩3分

「正門までほとんど曲がり角がなく、ほぼまっすぐ歩くだけで到着!
部活の朝練や遅くまで活動するときも、家から近いほうが安心」

★蹉跎西小学校★
徒歩4分

「小学校もめっちゃ近い!
運動会や懇談など、親が出向くことが多いからこの距離はありがたい〜。
同じ道沿いにある光善寺保育園も徒歩4分で、ずーっと近距離通園&通学が叶う♪」

★すこやか小児科さだ・出口薬局★
徒歩6分

「急な発熱や予防接種なんかで行くことが多い小児科。
すぐ近くにあると助かる!
薬局も隣にあるから薬をすぐに受け取れるのも◎」

★光善寺駅・駅周辺★
徒歩9分

「『ナカガワ』や『マツモトキヨシ』などのスーパー・ドラッグストアがあったり、飲食店やケーキ屋さんなどがある光善寺駅前。
数年後に駅前再開発が予定されているので、新しい商業施設などができるかも!」
3/19(土)20(日)21(月・祝)イベント開催
3/19(土)20(日)21(月・祝)
来場予約特典付き
イベント開催!


「星野リゾート泊まってみたい♡」
来場予約はこちらから!
事前予約で
★5,000円分のデジタルギフト券★
★ポムポムプリンコラボグッズ★
がもらえます♪
物件概要

ひらつーを見てミハマのお家をご契約された方に特典!

ひらつーの記事を読んでミハマホームのお家をこれから購入する方に特典ご用意しました!
ひらつーの記事を読んで現地に行き、アンケートに「枚方つーしん」を見てと回答していただいたあとに実際にお家を購入された方にひらつーから選べるプレゼント♪
ここからお選びください♪
親子で楽しみたい人はこちら!
ひらかたパーク入園+フリーパス
年間パスポート親子ペア
ナチュラルなインテリアやグッズが好きな人はこちら!
無印良品ギフトカード
30,000円分
たまには家事をお休みしたい人はこちら!
ダスキンギフトカード
30,000円分
Amazonでお買い物を楽しみたい人はこちら!
Amazonギフトカード
30,000円分
↓ひらつーを見てミハマホームでお家を契約・購入した方はこちらのフォームからお知らせください!

※初回来場時にアンケートにて「枚方つーしん」を見たと必ず回答してください!
※その後ミハマホームでの新築物件(今回ご紹介の物件以外でも可)ご成約後にこちらのフォームから申請してください。
※なんらかの理由でご契約が解除された場合、プレゼントの権利は失効いたします。
※ご契約いただいたお家へお引っ越し後、プレゼントを送付いたします。
※ミハマホームのご契約特典との併用も可能です。
※2021年1月以降にご成約された方に限ります。
他にもここに分譲中!

ミハマホームでは2,000〜4,000万円台の分譲地がたくさん!
枚方市内や枚方近隣で探されている方は、ぜひ参考にしてみてくださいね。
公式サイトの分譲地一覧と最新情報はこちら。



072-868-0036
営業時間 9:00〜18:00 定休日/水曜日
「ひらつーで『光ゲートシティ』の記事を見た」とお伝えいただくと話が早いと思います!
▷公式Instagram
ストーリーズも更新しています♡
▷公式LINE
▷公式Facebook
▷公式YouTube
【ひらつーパートナーズ】【ひらつー不動産】についてのお問い合わせはこちらから!
Sponsored byミハマホーム
