今回ご紹介するのは、
こちらのお家!!

キャー、なんてオシャレ・・・!!![]()
![]()
さてこちらは、ひらつーでも完成を待ちわびて何度かご紹介してきました
株式会社 野村工務店の
オーベルジュコート香里園末広町

取材に行くと、出来たてホヤホヤにもかかわらず、完成しているおうちの半数以上がすでに入居されていてびっくり!!取材中も何組かのご家族が見学に来られていて「こんな家住みたいわ〜」「ええな〜」と聞こえてきました![]()
こちらは京阪沿線でも人気の高い「香里園」駅から徒歩12分の立地![]()
・最寄りは香里園駅!お店も病院も、成田山もすぐそこにある、展望開けた高台の街へ行ってきた
・建つ前からオシャレ感がにじみ出てる!香里園に新しくできるまちの進捗状況を見て来た
・香里園の街にできた大注目のニュータウンはその後どうなった?!更地だった2月と今を徹底比較してきた
▽場所はこちら
▽ランドプランはこちら
全19区画が30坪〜39坪あり、立地の良さだけではなく広さまで兼ね備えた分譲地です。では、早速今回完成したモデルハウス5号地を見て行きましょう!

白を基調としたシンプルな外観。ポストの下にお花を植えるスペースがあったり、石づかいに和の雰囲気もあったりと隅々までこだわりが見えます。2階の茶色の壁面が全体を引き締めていてスタイリッシュ!
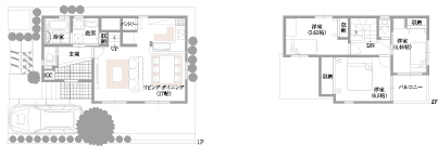
■延床面積/91.42㎡(27.65坪)

車が縦に1台入るエントランスガレージで、雨に濡れずに屋内に入ることが出来ます。自転車も奥に数台とめられる広さがあるので、自転車も雨に濡れずに置いておけます!
向かって右側に横向きでもう1台車を駐車することも出来ます。

リビングの窓から出入り出来るように作られた縁側風スロープ。例えば寝ている子どもを起こさずに家の中に入れたり、重たい荷物の搬入にも便利◎緩やかな勾配になっているので、小さな子どもさんも安心です。
では、おじゃまいたしまーす!!

玄関に入るとすぐに大きなシューズボックスがドンと構えています!めっちゃ入りそう!

シューズクローゼットとは別で、お出かけ時によく使うものや買い物してきたものをさっと入れられる収納スペースがあるのも嬉しいですね!

玄関をあがって振り返るとこんな感じ。ベビーカーや子どもの三輪車なども余裕で置ける広い土間スペース!
玄関ホールを左手側に進むと、こちらにもどんと大きなクローゼットがあります。

丈夫な木の板ががっしりはまっているので、上から下まで重たいアウトドアグッズやスポーツ用品・かさばるふとんなど、何でもたっぷり入れられます!

突き当たりはトイレ。中に手を洗う水道があって、広い空間になっています。窓があり換気ができるのも嬉しいですね!

手前には高さをかえられる備え付けの収納もあるので、予備のトイレットペーパーを入れる場所も困りませんね〜。よく考えられています!!
それではお待ちかね・・・
こちらがLDKでーーーす!!(17.3帖)

おっしゃれーーー!!映画で観たことあるヨーロッパの館に来たみたい!!
そして・・・
食卓の上を見上げれば・・・
開放感あふれるこの吹抜け大空間〜!!

めっちゃ贅沢で大胆な間取りや〜〜!!
思わず大阪弁が出てしまいましたっ!

対面式キッチンからの景色。部屋全面を見渡せるので、子どもが遊んでいるのを確認しながら料理ができます。

冷蔵庫や食器棚を壁側に並べても悠々と料理が出来る広いキッチンになっています。奥の窓は換気でも採光でも大活躍!

たっぷり入るキッチンパントリーと床収納もあります。保存食や非常食がたっぷり貯蓄できます。

使用感はこんな感じ!私おさやは身長170cmで余裕で一番上の段まで届く高さだったので、小柄な女性でも使いやすいと思います。

対面キッチンの表側も重厚感のある木で被われているので、とても普通のお家とは思えないような高級感があります。
↓ 生活感が出てしまうものは食卓横の奥行きがある備え付けの壁面収納に入れられます!

このような備え付けの壁面収納がたくさん用意されているので、新たに家具を買わなくてもお部屋の雰囲気をそのままで保つことが出来ます。↑ちなみに高さを変えられる便利棚。
落ち着くわ〜〜!!

このリビングでくつろぐためならば、寄り道しないで早くおうちに帰りたくなります![]()

コンセントもお部屋の雰囲気に合わせた高級感溢れる凝ったもの。
|
|
それぞれ個性があるのに調和している、インテリアもすてきです・・・![]()

味がある濃いめのパイン材の腰壁が何とも言えない重厚感と高級感を出していてオシャレ![]()

壁は野村工務店の標準仕様の「全面しっくい」で、壁紙では出せないふんわりなじむやさしい雰囲気です。

このアイアン手すりもまたオシャレなんですよね。圧迫感がなく抜け感があるので、広く感じられます。

吹抜けのトップライト(天窓)から光がたっぷり降り注ぎ、さらにその奥の南側のバルコニーの大きな窓からも光が入るので、昼間は自然光だけで充分明るく電灯要らず!

絶妙なやさしい茶色の階段手すりは「オーク材」という耐久性のある丈夫な木材を使用しています。
↓ さてさて2階に上がりましたが、扉がずらっと並んでいます。

では廊下を進んで、奥から順番に見て行きますね。
突き当たり左手のお部屋がこちら!(4.98帖)

お子さんがいらっしゃったら、子ども部屋と言うところでしょうか。旦那さんの書斎でもいいかもしれません!真っ白で使いやすいお部屋になっています。
↓ 続いて、一番奥右手のお部屋。 こちらは主寝室です。(6.37帖)

どーんと壁全面・天井までめいっぱい使った、びっくりするくらい大きなクローゼットがあります!
さりげない天井の黒い二重ラインが空間をキリっと引き締めてくれています。

真ん中で分けて、ご夫婦一緒に使用できますね。身長約170cmのおさやもしゃがまずに入れる大きさでした!

ちなみに反対側にも収納があります。タンス要らず!真ん中にどどんとベッドと置いちゃってください!

奥行きがある広いバルコニーもあります。家族みんなのふとんがたっぷり干せます!
↓ 続いてそのお隣のお部屋(5.14帖)

こちらのお部屋、上から明るい光が差していますが、電気がついてるんじゃないですよ〜
トップライト(天窓)があるんです〜!あっかるーい!

収納もありますので子ども部屋にもいいですし、奥さんの趣味のお部屋にしてもいいですね〜!

その横にはトイレがあります。1階にも2階にもあるので家族が多くても安心![]()

そして一番手前の右手にあったドアがお風呂&洗面スペース&洗濯機スペースなんですが、なんとこちらにも1階と同じ木がふんだんに使われているんです!ここでも高級感!

洗面スペースに木を使ってるって珍しいですよね〜!収納スペースもばっちり。
お風呂も広々〜!オモッきり足を伸ばせます!!

腰かけられる段差があるのでゆっくり半身浴も出来ます![]()
ところで、バルコニーに出る扉って重たくて狭い開き戸タイプが多いと思いませんか?

ですが、こちらの扉は引き戸タイプなんです!(網戸つきなのも嬉しい!)
つまり、先ほどの洗濯機スペースからこの引き戸を開けてすぐにバルコニーに出られます。重たい開き戸をいちいち開けたり閉めたりする必要がなく、家事動線がよく考えられたオシャレだけじゃない!ママに優しいおうちなんですねー
!

サイドの壁が高くなっているので、洗濯物が外から見えちゃう心配もなく安心してたっぷり干せます!
以上、オシャレで家事導線が考えられたママ想いな5号地をご紹介しました!
いかがだったでしょうか?
こちらの分譲地は自由設計あり!!

野村工務店の自由設計プランでは専任の設計士とインテリアコーディネーターと相談しながら自分の好みの家を建てられます!
▼例えばこんなプラン
(クリックでページへとびます。)

「尖ってるゼ!三角形・三階建て・三方道路の個性的なおうち」より
明るい自然光が降り注ぐ・・・
その2、大開放の吹き抜け!
交野にできた北欧のまち、早くも残り1邸!自然光だけで明るいおうち見てきたより
その3、スキップフロア
交野に北欧の街、ついに完成!かわいいタイルに吹き抜け窓、宝塚風の階段などできたて5邸を大公開より
※全て野村工務店施工のお家です。
ちなみに、本日9/23には3号地もNEWオープンするんです!!
今なら5号地と3号地を2軒見学できますので、プランの参考にしてみてはいかがでしょうか。
そして、タイトルにもあった「姫」とは何かと言うと、こちらの分譲地はバス通り側に、寝屋川に古くから伝わる民話「鉢かづき姫」の物語と絵が描かれています。


(じっくり読みたい方はクリックして拡大して読んでみてください)
続いてオーベルジュコート香里園末広町は、徒歩でも車でも便利な街なので周辺環境もご紹介します!

向こう側へ坂を上って行くと、香里ヶ丘方面・東香里など茄子作方面へ。
この道沿いには、

100円ショップのFLET’S(公式サイト)
すし政 (食べログ)
▷ドイツ菓子ハイデ(公式サイト・ 食べログ)
(最近グリーンにリニューアルしました!)
そしてさらに進んで行くと、
季節ごとに色を変える、けやき通りのある香里ヶ丘へ到着です。
この近辺にもスーパーやカフェは大充実していて、車でも移動しやすいので嬉しいですね
さて、今度は反対方面「香里園」駅へ。
写真奥に見えているのは、香里園駅前にある「ザ・香里園タワー」です。
この道沿いにあるのは、
ランチも食べられる「中華食堂 熊猫(パンダ)軒」
▷中華食堂 熊猫軒 (公式サイト)
フレッシュベルギーチョコレートが食べられるLeonidas(レオニダス)と cerro(シェロ)。
▷Leonidas(レオニダス公式サイト)
▷Relaxation Salon cerro (シェロ公式サイト)
そして、香里園駅前には、銀行やヘアサロン、クリニックなどが多数入っている 「かほりまちテラス」商会、フレスト香里園店、ライフ香里園店もあり買い物にも困りません!
そして、子どもが通う学校区はこちら。
1年生から6年生まで茶道体験を毎年行ったり、英語の授業にゲストティーチャーが来るなど教育に力を入れている寝屋川市立第五小学校(公式サイト)
小中一貫教育『香里かほりまち学園』にも取り組まれていている寝屋川市立第六中学校(公式サイト)
出来たてなのに全19区画中残り8区画となっている大人気の香里園の分譲地!
「こんなにステキなおうちに住んでみたい!」
と気になる方はお早めに・・・
物件についてのお問い合わせは株式会社野村工務店へ!
営業時間/AM9:00〜PM9:00
「ひらつーで”オーベルジュコート香里園末広町“の記事を見た」とお伝えいただくと話が早いと思います!
(すでに販売が終了している場合もありますのでご了承ください)
■「オーベルジュコート香里園末広町」公式サイト
■ 株式会社野村工務店 公式サイト
———-
【ひらつーパートナーズ】【ひらつー不動産】についてのお問い合わせはこちらから!







